O Lofos (la collina) è una casa di 280 metri quadrati situata nella parte orientale di Creta, dove il paesaggio cresce selvaggio e la natura è una fonte di ispirazione in continua evoluzione. Le influenze dell’architettura locale si uniscono qui con la sensibilità scandinava e il minimalismo giapponese che caratterizzano il metodo progettuale di Block722, studio di architettura con sede ad Atene, fondato nel 2009 dall’architetto Sotiris Tsergas e dall’interior designer Katja Margaritoglou.

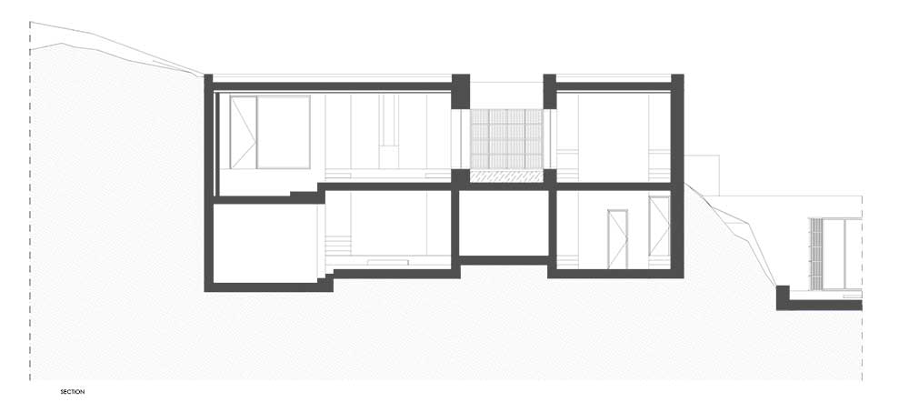
L’architettura è stata guidata dal desiderio di creare una casa moderna, discreta e rispettosa dell’ambiente naturale circostante, che combina viste sulle montagne, sulle pianure e sul Mar Mediterraneo. Anche la gestione dell’angolo del sito attraverso i livelli anziché i gradini è stata fondamentale per plasmare un ambiente rilassante che abbracciasse il contesto.

Un sentiero in discesa dalla strada principale conduce i visitatori all’ingresso della residenza. Le dimensioni del complesso sono suddivise in volumi più piccoli, collegati tra loro attraverso percorsi di circolazione e spazi intermedi, alcuni interni e altri all’aperto. L’abitazione principale è suddivisa in due edifici bassi collegati da un’area semichiusa con un elemento d’acqua.

Ogni sezione e percorso sono stati attentamente pianificati per supportare la funzionalità e incorniciare le viste, per unire l’interno e l’esterno, il naturale e l’umano. Il progetto cerca di valorizzare lo slow living, prendendo spunto dallo stile di vita dell’isola.

Il progetto utilizza materiali di provenienza locale, naturali e terrosi, come il legno e la pietra. La luce solare aiuta a definire le forme e le superfici, giocando con i materiali strutturati, mentre gli architetti si sono ispirati alla sensazione e al ritmo del contesto sia per gli interni sia per gli esterni.

Block722 ha collaborato con artigiani locali per tutto il processo di costruzione sia per i dettagli architettonici sia per gli arredi, la maggior parte dei quali sono stati realizzati su misura e creati appositamente per questo progetto, utilizzando marmo, legno, pietra e terrazzo. Tutti i pezzi insieme formano la collezione di mobili Anata di Block722.

Si nota inoltre un richiamo al Giappone che si manifesta attraverso la semplicità del design, con linee pulite e quasi austere che bilanciano la natura naturale e tattile dei materiali e l’approccio generale ricco di artigianato.

Anche l’arte è importante nella composizione complessiva della residenza. Post-Landscape, una scultura-rilievo dell’artista greco Pantelis Chandris appositamente commissionata, si trova nel soggiorno ed è stata sviluppata in parallelo al progetto architettonico.




