Realizzata nella tranquilla zona residenziale Obermais a Merano, Villa M si distacca nettamente dalla tradizionale architettura “di montagna” fatta di pietra, legno e tetti spioventi. L’impostazione progettuale ideata dallo studio Monovolume di Bolzano si ispira all’architettura moderna con volumi lineari e grandi aperture vetrate che permettono di vivere senza soluzione di continuità spazi interni ed esterni. Ed è proprio il particolare clima mite di Merano, antica meta di villeggiatura frequentata da personaggi illustri come Franz Kafka o l´imperatrice Sissi, ad avere suggerito un’alternanza di spazi chiusi e aperti in continuità formale e funzionale con il giardino e l’area relax della piscina. Per ottimizzare le performance energetiche, l’edificio è stato realizzato come un volume compatto distribuito su due piani fuori terra e uno interrato con una struttura in cemento armato dotato di uno strato tecnico isolante.

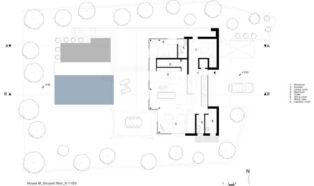
Pianta piano terra
Inoltre, le grandi aperture in vetro delle facciate sono state realizzate con pannelli triplo vetro per garantire un alto grado di isolamento termico e permettere il raggiungimento della classe A CasaClima. Seguendo la graduale pendenza del terreno, il piano terra della zona living grazie alle pareti vetrate e scorrevoli a tutta altezza trova un naturale collegamento con l’area relax della piscina e con il prato che circonda l’abitazione. L’orizzontalità e la trasparenza delle aperture scorrevoli è intervallata dai candidi volumi aggettanti del primo piano e della copertura, dove una grande apertura rettangolare accresce l´apporto di luce naturale alle stanze superiori e sembra inquadrare una porzione di cielo. Gli interni sono dominati anch’essi dal bianco ottico delle pareti, degli arredi e delle superfici lucide in marmo che amplifica la vastità degli spazi. La struttura in cemento armato ha permesso infatti di evitare divisioni murarie interne sostituendole con pareti in vetro opaco e trasparente e un sistema di tende mobili che permette di ottenere gradi diversi di separazione e di privacy.

Sezione longitudinale