Collegamenti e spazio pubblico, a Parigi la riqualificazione del Passage du Vieux Pont de Sèvres
Collegamenti e spazio pubblico, a Parigi la riqualificazione del Passage du Vieux Pont de Sèvres
Collegamenti e spazio pubblico, a Parigi la riqualificazione del Passage du Vieux Pont de Sèvres
Costruito negli anni Settanta, il Pont de Sèvres a Boulogne-Billancourt è il quartiere della Grand Paris progettato da Daniel Badani e Pierre Roux-Dorlut caratterizzato da un’elevata densità abitativa. Il piano di riqualificazione iniziato nel 2008 ha dato priorità alla rinascita dello spazio pubblico, in particolare del Passage du Vieux Pont de Sèvres.
Le due gallerie – Vieux Pont de Sèvres e Aquitaine – rappresentano il collegamento più diretto tra la stazione della metropolitana e il quartiere Le Trapèze costruito sul sito degli ex-stabilimenti Renault. Ricollegare queste due parti della città è stato fondamentale per integrare al meglio un’area rimasta slegata dal tessuto urbano circostante.
Scavare nel vecchio parcheggio fuori terra, tagliare il cemento e riscoprire la luce del giorno: questi i requisiti secondo Atelier du Pont per creare un nuovo spazio pubblico degno del quartiere. Il vecchio passaggio Vieux Pont de Sèvres, che si apre sulla strada omonima e si trova sotto due edifici con 798 appartamenti costruiti nel 1976 da Daniel Badani e Pierre Roux-Dorlu, era solo una galleria di collegamento e un punto di accesso, non certo un piacevole e sicuro percorso pedonale.

Sono stati creati un ascensore e una scala più ampia e ariosa. Rifinito in cemento lucidato, il nuovo e più luminoso passaggio offre un percorso piacevole, sicuro e fluido.

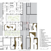
Quelli che erano i tre piani di un garage sono stati aperti creando un ambiente molto alto, con pareti adatte alle arrampicate indoor. Per riunire i due lati opposti del passaggio è stato scavato un tunnel dove sono stati collocati spazi pubblici come un ristorante, un bar, un mercato, un centro fitness, una sala yoga, oltre a giardini pensili.
Atelier du Pont ha realizzato tutti gli allestimenti interni con mobili usati, materiali naturali lasciati allo stato grezzo, impianti a vista e pareti di cemento su cui gli elementi possono essere agganciati, appesi o fissati.

La ristrutturazione dei passaggi pubblici è stata pensata in continuità con la riqualificazione del parcheggio dell’Espace Forum, progetto realizzato dallo studio parigino nel 2013.





