Come una grande tenda, Hara House è un’abitazione insieme pubblica e privata
Come una grande tenda, Hara House è un’abitazione insieme pubblica e privata
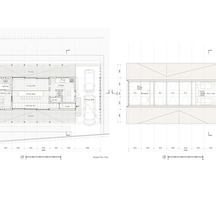
Nel centro agricolo Tsurugasone, nella prefettura giapponese di Niigata, lo studio Takeru Shoji Architects ha progettato e realizzato una casa ‘pubblica’ che diventa un luogo di condivisione tra gli abitanti e i cittadini. Il progetto ha ridato nuova vita a una struttura preesistente abbandonata emulando l’ambiente circostante, caratterizzato da serre e capannoni.

Da un punto di vista strutturale e tecnico la casa non si allontana dalla tradizione: il design minimalista e l’abbondante uso di legno sono tipici della regione. Ciò che differenzia Hara House dalle abitazioni circostanti è la sua forma a tenda e soprattutto l’intento di creare uno spazio privato che favorisca la vita collettiva dell’intero villaggio.

Da fuori, la presenza di un grande porticato invoglia gli abitanti del paese ad avvicinarsi e a far visita alla famiglia; mentre dentro lo spazio è stato pensato come un’enorme stanza senza pareti o divisori.
L’edificio si distingue dall’idea comune di casa perché non è un’abitazione autosufficiente, al suo interno per esempio mancano le camere da letto. Poco distante dall’abitazione principale dotata di tutti i servizi canonici, il grande spazio aperto di cui si compone Hara House può essere utilizzato per diverse attività. Ma non si può fare a meno di appoggiarsi al supporto degli altri edifici che lo circondano, promuovendo così un uso attivo dell’architettura. L’edificio riprende infatti la tradizione dei villaggi giapponesi, in cui una singola proprietà contiene edifici e terreni agricoli interdipendenti l’uno dall’altro.

Questa mancanza di funzioni specifiche incoraggia le persone a inventare modi creativi per utilizzare lo spazio. Come spiegano i progettisti: «L’obiettivo era quello di creare un modo di vivere che non è mai completo all’interno di questa sola struttura, ma piuttosto forma un pezzo dell’architettura più grande. Una casa che è parte di un gruppo di edifici, uno spazio vuoto che invita le persone del villaggio a utilizzarlo».
Hara House è quindi una proposta che mostra un nuovo sistema di gestione di un piccolo centro abitato: un modo per rivitalizzare un villaggio che una volta costituiva un insieme naturale di forti interconnessioni.
