Da semplice elemento stilistico, ricorrente nell’edilizia locale, nel progetto di Botticini l’utilizzo del legno diventa struttura ed uno strumento per riproporre, secondo una chiave inedita, tratti fondamentali dell’architettura vernacolare. Semplicità e chiarezza costruttiva sono le caratteristiche fondamentali di quest’opera che, partendo dalla ricerca di principi architettonici di base, si muove verso un radicamento e un adattamento ai caratteri specifici del luogo. Selvino è una località montana posta in alta Val Seriana nella provincia di Bergamo. Pur presentando l’insediamento caratteri del tutto omologati a qualsiasi espansione recente di pianura, il paesaggio conserva tratti peculiari – come la presenza di segni geografici e la prevalenza di una vegetazione di conifere – che contibuiscono alla definizione di un sostanziale equilibrio visuale ed ambientale, nonostante la presenza massiccia di abitazioni. Selvino non si è formato a partire da insediamenti storici significativi, ma deve la sua origine soprattutto al recente turismo alpino. Il tipo prevalente è una riproposizione banalizzata dello “chalet”, ovvero abitazioni inserite in lotti, talvolta piuttosto ampi, con tetto a due falde, basamento in muratura e parte superiore delle facciate rivestita in legno.
Nell’ambito di questo insieme di condizioni, secondo gli autori, il progetto parte soprattutto dall’idea di proporre un tipo edilizio alternativo, capace di cambiare la scala di rapporto rispetto all’intorno, ma soprattutto di “evocare un carattere alpino riferibile alle abitazioni che preesistevano all’urbanizzazione massiva degli ultimi decenni”. L’impronta architettonica del progetto è chiaramente moderna, con dichiarati richiami alle trame architettonico-strutturali di Terragni o alla nordica ed astratta essenzialità di Arne Jacobsen, ma è una modernità che partendo dalla ricerca dei principi di base dell’architettura vernacolare si muove verso un radicamento ed un adattamento ai caratteri specifici del luogo. La composizione dei fronti e degli spazi riprende in modo evidente l’alternanza di ombre e luce nei portici presenti nelle costruzioni rurali.
La struttura dei fronti mette in evidenza differenti spazi e profondità. Allo stesso tempo viene ridata struttura ad un tratto dell’architettura rurale tanto persistente da essere ripreso, sebbene come sterile richiamo stilistico, negli edifici recenti: la presenza di uno zoccolo in muratura e di una struttura soprastante completamente (struttura e tamponamenti) in legno. Oltre che per l’architettura, l’edificio presenta tratti interessanti anche dal punto di vista tecnologico. La struttura, i tamponamenti in legno e un ottimo isolamento dell’involucro permettono il raggiungimento di una Classe A di efficienza energetica calcolata secondo lo standard Casaclima. L’orientamento e l’esposizione favorevole permettono inoltre un importante apporto termico-solare passivo. Vanno infine sottolineati i caratteri di sostenibilità complessiva dell’intervento dove l’intera struttura, in conformità all’innovativo regolamento di Efficienza Energetica (e soprattutto alla qualità ecologica dei materiali) del Comune di Selvino, raggiunge la classificazione “A eco”.
![]() |
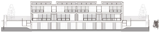
| Prospetto lato ovest |
![]() |
| Sezione |
![]() |
![]() |
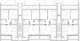
| Pianta piano terra | Pianta piano primo |
![]() |
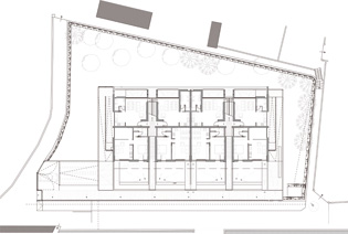
| Planimetria generale dell´intervento |




