Progettata dallo studio SAREA Alain Sarfati Architecture di Parigi, la nuova ambasciata francese a Pechino è caratterizzata da elementi della cultura orientale uniti a soluzioni di elegante rigore europeo. Un insieme ricco di contrasti tra pieni e vuoti, forti impatti e leggerezze, interni ed esterni dove le soluzioni formali sono dettate dalla funzionalità, creando una struttura che assorbe luce d’inverno e diventa oasi naturale d’estate nel giardino interno, vera anima del complesso.
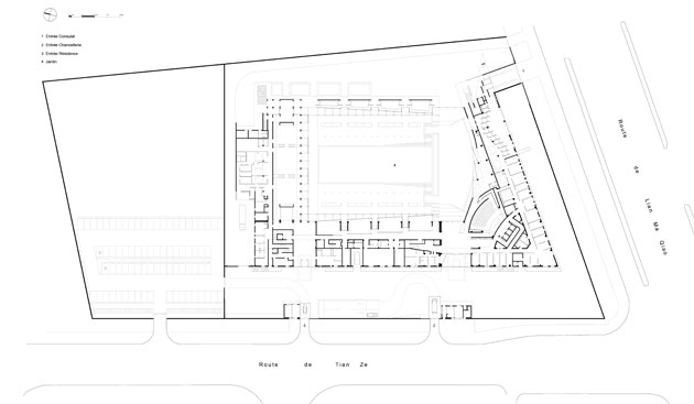
Un complesso di 20mila mq che comprende la Cancelleria, il Consolato, una zona-residence per il personale e gli appartamenti privati dell’ambasciatore. Inaugurata nell’autunno 2011, l’enclave diplomatica è stata costruita in otto anni, concepita come una struttura concentrica formata dalla cinta muraria, che delimita gli edifici e il giardino interno. Il progetto è una fusione di soluzioni razionali in termini di efficienza energetica e regole del Feng Shui, l’antica arte dell’abitare orientale. Le scelte funzionali ed estetiche sono il risultato di un approccio bioclimatico all’architettura che ha tenuto conto delle specificità del luogo e dell’azione degli elementi naturali: l’orientamento degli elementi è stato dunque il punto di partenza del complesso in un processo di progettazione olistico. L’ambasciata funge da “sentinella” al nuovo quartiere diplomatico, situato fuori dal centro di Pechino e in prossimità della terza circonvallazione, in direzione dell’aeroporto. L’enclave francese è circondata da una cinta muraria, elemento simbolico che rimanda alla Città Proibita situata nel cuore della capitale cinese. Come il Palazzo Imperiale, anche il complesso dell’ambasciata ha una struttura concentrica in cui ogni spazio chiuso è controbilanciato da uno spazio aperto. Le caratteristiche della tradizione orientale si riallacciano a elementi della cultura occidentale, come la disposizione degli edifici intorno a un giardino centrale, omaggio alla cultura cartesiana di rigore ed eleganza.
![]() |
| Masterplan del complesso dell´ambasciata francese |
veli di vetro serigrafato
Tre lati del complesso sono occupati dalla Cancelleria, dal Consolato e dalle residenze diplomatiche mentre un quarto fianco accoglie serre, giardini d’inverno e spazi espositivi. L’area delle residenze è situata sopra la reception, mentre la Cancelleria e il Consolato si trovano nella torre di servizio all’angolo sud-ovest di Liangmaqiao Avenue. Le caratteristiche rigorose dell’esterno, come il basamento in cemento con aperture a sguincio e il piazzale in granito, contrastano con il fronte ondulato interno che si affaccia sul giardino e soprattutto con la leggerezza della facciata della torre a otto piani ricoperta da veli di vetro serigrafato dorato, disposti a ventaglio su una struttura metallica sottostante. I pannelli, oltre ad essere un elemento di grande impatto visivo, servono a schermare la luce e mascherare il numero di piani della torre, alterando così la percezione delle sue vere dimensioni in confronto ai palazzi circostanti. Ogni ambiente dell’edificio si apre sul giardino interno situato nel cuore del complesso e diviso in due livelli. Dal piazzale esterno si accede a due distinti ingressi: uno ufficiale, che porta alle sale ricevimento, un altro meno formale alla base della torre di servizio.
ventilazione e illuminazione
Affacciati a sud, gli ambienti delle residenze sfruttano a pieno la luce e il calore soprattutto nei mesi invernali, mentre un sistema di tende ripara dal sole estivo e il patio sul giardino interno assicura una buona ventilazione che aiuta a regolare la temperatura in modo naturale. La ventilazione estiva della torre è data da moti convettivi creati da aperture inferiori e superiori che in inverno vengono chiuse, migliorando l’isolamento. La facciata in vetro serigrafato muta con lo scorrere del tempo e con il movimento del sole: lucente all’alba, riflette i toni del cielo durante l’arco della giornata. Le facciate sui lati sud e ovest dell’edificio presentano un rivestimento in brise-soleil di lamine in alluminio laccate montate su una griglia che lascia solo intravedere la divisione tra i diversi piani, schermando la luce e il calore esterno. La torre dunque condensa nell’estetica le caratteristiche di chiusura e apertura, pesantezza e leggerezza che convivono nel complesso ed è l’elemento in cui il principio primo dettato dall’orientamento è reso in maniera più manifesta. La solida facciata esterna che si erge sopra il bordo della città funge da schermo protettivo alla parete completamente vetrata affacciata sul giardino interno.
![]() |
|
Sezione trasversale e longitudinale del complesso. In evidenza la facciata in vetro dorato della torre di servizio. |
legno pietra e gomma
L’approccio olistico alla progettazione ha integrato in maniera equilibrata i diversi spazi con le loro specifiche funzioni prendendo in considerazione diversi aspetti: dalle interconnessioni fra ambienti esterni e interni alle differenti condizioni climatiche e di luce alle molteplici influenze culturali ed estetiche. Gli spazi interni dell’ambasciata sono caratterizzati da linee pulite, elementi minimali e dall’uso di materiali locali come legno, pietra e gomma. Anche in questi ambienti, come nel disegno complessivo esterno, dominano i contrasti: i diversi materiali utilizzati, dal rovere moro al faggio chiaro, granito nero e marmo, contribuiscono a creare un’atmosfera più o meno luminosa a seconda della quantità di luce lasciata filtrare all’interno dalle imposte e dalle schermature solari. I soffitti delle sale riunioni sono dotati di pozzi di luce e l’intero sistema di finestre e tende regolabili è stato studiato per garantire un isolamento di alta qualità. Strutture divisorie costituite da schermi a doghe in legno contribuiscono alla sensazione aperta e luminosa degli spazi interni. Tutti gli ambienti si aprono sul giardino interno, da cui ricevono luce e apporto termico naturale. Per la zona delle serre esposte a Sud è stata adottata una Trombe Wall, una parete ventilata di argilla nera separata dall’ambiente esterno da una camera d’aria che assorbe il calore apportato dall’irraggiamento diretto giornaliero e lo rilascia verso l’interno durante la notte.
All’ombra del ginko-biloba
La zona verde interna e il complesso delle serre creano un mondo isolato che muta in base alla luce e allo scorrere del tempo. In quest’area continua il gioco dei contrasti: la natura vive al chiuso, mentre il mondo minerale domina il cortile interno. Alberi ad alto fusto, tra cui un tradizionale ginko-biloba, sono stati piantati per modulare l’ombra e la temperatura e contribuire all’atmosfera e al benessere di questa “oasi” interna al complesso.

