Dalla jurta alla casa, soluzioni abitative in prefabbricazione leggera
Dalla jurta alla casa, soluzioni abitative in prefabbricazione leggera
Dalla jurta alla casa, soluzioni abitative in prefabbricazione leggera
Dalla jurta alla casa, soluzioni abitative in prefabbricazione leggera
Dalla jurta alla casa, soluzioni abitative in prefabbricazione leggera
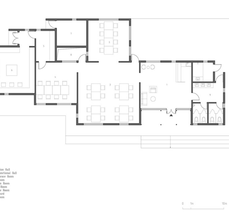
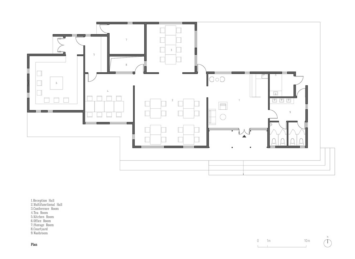
Traendo ispirazione dalle tipiche jurte delle popolazioni nomadi della Mongolia, Ger Atelier ha sviluppato un sistema di prefabbricazione leggera e una serie di schemi insediativi per definire soluzioni abitative adeguate alle moderne esigenze di utilizzo e per forme di turismo culturale e ha realizzato un primo centro di vita comunitaria a Zheng Xiang Baiqi, nella Mongolia interna cinese.

Riflesso del mondo spirituale dei popoli nomadi e ingegnosa risposta al clima e alle esigenze pratiche, lo spazio a forma di cupola della tradizionale jurta viene ereditato da Ger Atelier attraverso una ricostruzione geometrica. I moduli unitari e un meccanismo di espansione combinato sono incorporati nell’organizzazione della pianta per creare uno spazio architettonico più vario e aperto.
La struttura è formata da pali di legno a sezione ridotta integrati e incollati, sovrapposti ortogonalmente, mentre l’involucro tradizionale – realizzato attraverso la legatura di piccoli rami di salice, pelli e corde di cuoio – si evolve in un sistema strutturale assemblato: i ramoscelli di salice e le corde di cuoio sono sostituiti da pali di legno incollati e da componenti prefabbricati in acciaio, che combinati in una logica ortogonale danno vita un sistema strutturale leggero ma stabile.

Calcolando e disponendo scientificamente travi e pilastri, lo studio cinese ha creato un database di modelli strutturali che possono essere liberamente selezionati per rispondere a diversi climi, scale e forme spaziali.
Tutto viene prefabbricato offsite e assemblato in loco. Le sezioni strutturali e il peso complessivo ridotti consentono una rapida costruzione e installazione senza la necessità di grandi attrezzature meccaniche.
Nella progettazione strutturale, l’attenzione si è concentrata su questioni tecniche e pratiche quali l’accoppiamento a più livelli e la tolleranza a eventuali difetti di tenuta che potrebbero presentarsi una volta in loco, per garantire l’ermeticità dell’edificio, l’isolamento termico e l’isolamento termico.
Il sistema di riscaldamento utilizza pellicole elettriche radianti a bassa temperatura e un sistema di controllo intelligente a distanza senza fili per monitorare con precisione e raccogliere dati sul consumo energetico, regolare in modo indipendente la temperatura di ogni singolo modulo, controllare in modo sostanziale il consumo energetico e migliorare il comfort abitativo.
Dopo anni di ricerca e sperimentazione, Ger Atelier questo è uno degli esempi di possibili sistemi insediativi di abitazioni nomadi in grado di rispondere alle esigenze dei tempi incarnando l’eredità della cultura delle praterie.

Zheng Xiang Baiqi Grassland Community Center
- Località Zheng Xiang Baiqi, Xilin Gol League, Inner Mongolia, China
- Sviluppatore Zhengxiangbaiqi Weilisi Industrial Service Co., Ltd
- Concept e architettura Ger Atelier
- Design Guidance Zhang Pengju
- Lead Architect Zalagenbaier, Huhehada
- Design Team Daimurigen, Qu Wenyong, Mengkezhula, Liu Handong (internship), Xie Haodong (internship), Zhao Zhen (internship)
- Progettazione esecutiva Ger Atelier, Inner Mongolian Grand Architecture Design
- Impresa Ger Atelier
- Foto Dou Yujun (german@188.com)
- Completamento Agosto 2023
