+4 Facciate poliedriche per un complesso sportivo. Sotto i pilotis corre un percorso a dossi
Facciate poliedriche per un complesso sportivo. Sotto i pilotis corre un percorso a dossi
Facciate poliedriche per un complesso sportivo. Sotto i pilotis corre un percorso a dossi
Facciate poliedriche per un complesso sportivo. Sotto i pilotis corre un percorso a dossi
Facciate poliedriche per un complesso sportivo. Sotto i pilotis corre un percorso a dossi
Facciate poliedriche per un complesso sportivo. Sotto i pilotis corre un percorso a dossi
Facciate poliedriche per un complesso sportivo. Sotto i pilotis corre un percorso a dossi
A Mennecy, cittadina dell’Île-de-France , circa 40 km a sud di Parigi, Atelier Aconcept ha completato nel 2024 il complesso sportivo Nikola Karabatic (ex atleta di pallamano) per la Communauté de Communes du Val d’Essonne, committente del progetto.

L’edificio, posto al margine sud di un’area commerciale, è riconoscibile per il volume sospeso rivestito in metallo dorato, sviluppato per conferire identità e visibilità all’impianto.

L’organizzazione planimetrica si basa su due volumi rettangolari sfalsati e interconnessi. La disposizione incrementa l’impatto visivo della facciata e riduce l’irraggiamento diretto negli ambienti interni.
Una leggera sporgenza dell’architrave funziona da frangisole, mentre al piano terra il foyer a doppia altezza, vetrato su tre lati, mette in continuità corte d’ingresso e interni, garantendo permeabilità visiva e apporto di luce naturale.

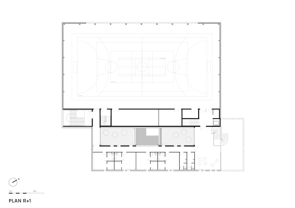
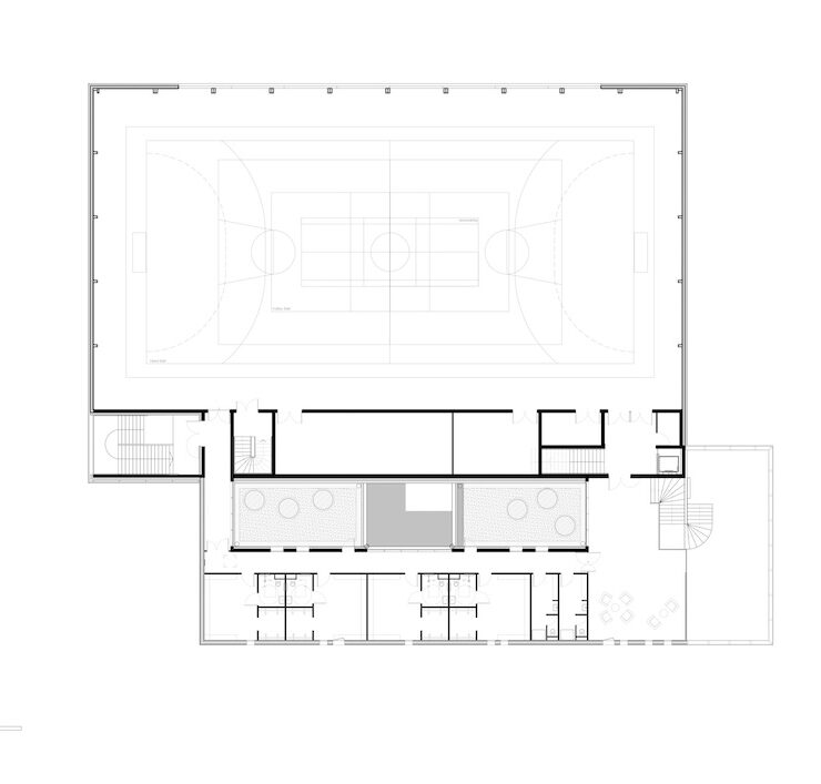
Il volume sospeso ospita la sala polivalente, illuminata da una fascia vetrata a sud e da un lucernario continuo a nord.
Lo spazio, rettangolare e libero da elementi strutturali interni, consente configurazioni multiple e dispone di tribune per 100-150 spettatori.

Al piano terra sono presenti due sale per attività specifiche, di pianta quadrata e con almeno una parete libera per attrezzature o installazioni, collegate direttamente all’esterno e al vicino parco commerciale. Un deposito condiviso adiacente incrementa la flessibilità d’uso.

La distribuzione interna privilegia percorsi ampi e illuminati naturalmente.
Un patio centrale al piano terra porta luce e aria all’interno, proseguendo in un cortile allungato che illumina il soppalco e le passerelle perimetrali.
All’esterno, le aree di sosta e un percorso a dossi sono integrate in un disegno paesaggistico che funge anche da sistema di gestione delle acque meteoriche.

La struttura è in legno con porzioni in aggetto di grande luce. L’intervento copre una superficie di 2.000 metri quadrati e ha ottenuto la certificazione HQE Effinergie+.

Atelier Aconcept

Atelier Aconcept con sede a Évry-Courcouronnes, nella regione dell’Île-de-France, è stato fondato da Frédéric Quevillon, oggi affiancato da Aurélien Tessier.
Lo studio conta venticinque collaboratori e un portfolio che include complessi scolastici, palestre, teatri e residenze, con una quota del 60% di incarichi pubblici. L’attività si caratterizza per l’impegno civico verso la diffusione della cultura architettonica nell’area metropolitana di Parigi.







