+8 Helsinki, Jkmm trasforma vecchie strutture industriali nel campus Uniarts
Helsinki, Jkmm trasforma vecchie strutture industriali nel campus Uniarts
Helsinki, Jkmm trasforma vecchie strutture industriali nel campus Uniarts
Helsinki, Jkmm trasforma vecchie strutture industriali nel campus Uniarts
Helsinki, Jkmm trasforma vecchie strutture industriali nel campus Uniarts
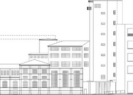
Strutture storiche, tra cui un edificio a silo e una vecchia fabbrica, sono state incorporate nella nuova sede dell’Università delle Arti di Helsinki, progettata dallo studio Jkmm. La nuova architettura rende omaggio alla storia di Sörnäinen, un quartiere post industriale oggi rianimato e riqualificato.

Il campus Uniarts offre nuovi spazi per l’Accademia di Belle Arti e l’Accademia di Teatro oltre a una galleria al piano terra aperta al pubblico. Collegata da un edificio modernista a forma di silo, l’Accademia di Teatro occupa una ex-fabbrica di sapone.
L’Accademia di Belle Arti è ospitata in un nuovo edificio rivestito in mattoni, noto come Mylly o The Mill, in riferimento a un mulino che un tempo sorgeva sul sito.
Anche l’edificio adiacente, un tempo adibito a officina elettrica, è stato riadattato per creare ulteriori spazi.

Il nuovo edificio di cinque piani dell’Accademia di Belle Arti – per un totale di 13.000 metri quadrati – è incentrato su un’ampia corte che riceve luce dall’alto e definita da una scenografica scala in acciaio che taglia lo spazio in diagonale da un livello all’altro. Questa scala collega gli spazi di studio e di insegnamento e culmina in una terrazza sul tetto progettata per essere utilizzata come spazio di lavoro e di esposizione.

L’architettura offre agli studenti di belle arti, lighting e sound design e design per le arti dello spettacolo spazi grezzi, generosi e ben illuminati concepiti per liberare idee e creatività.

Ispirato al mulino che un tempo sorgeva sul sito, l’esterno dell’edificio è sobrio e rifinito in mattoni grezzi, con una serie di finestre incassate in facciata e uno spazio porticato alla base.

È stata utilizzata una semplice struttura in calcestruzzo composta da lastre e colonne per facilitare i futuri cambi di destinazione d’uso. I materiali di finitura sono stati scelti per creare un dialogo con gli edifici industriali esistenti, in contrasto con elementi in legno più caldi.

Le superfici in calcestruzzo a vista e acciaio e le scelte dei materiali sono state pensate per garantire flessibilità, longevità e facilità di manutenzione.












