Holcom, holding delle telecomunicazioni, ha deciso di riunire in un’unica sede più di venti società del gruppo.
L’Holcom Headquarter ha sede nella parte orientale di Beirut, zona oggetto di un’intensa riqualificazione urbanistica. Il progetto del grande centro direzionale porta la firma di L22 (brand del gruppo Lombardini 22) per la progettazione architettonica e di Degw per lo space planning e l’interior design.
Il progetto interpreta l’identità di Holcom con un concept denso e allo stesso tempo diversificato, basato su una serie di layers che ai vari livelli sviluppano diverse funzioni: dalle warehouses agli spazi ufficio avanzati; il tutto avvolto in una doppia pelle che, con gli spazi interni, forma un unico sistema coordinato e coerente.
![]() |
|
L’atrio centrale a piano terra. Il complesso, articolato in due grandi blocchi distinti posti in collegamento da un terzo corpo centrale arretrato, si sviluppa su 7 livelli fuori terra e due piani interrati (foto ©Ieva Saudargaité) |
|
|
|
Una piazza interna dell’edificio. Verde e luce fanno parte integrante del progetto (foto ©Ieva Saudargaité) |
La nuova sede Holcom può accogliere fino a mille persone e diverse organizzazioni contemporaneamente, grazie a un progetto che punta a una virtuosa combinazione di fattori: equilibrio; gestione razionale dei flussi interni ed esterni; ottimizzazione degli aspetti energetici e ambientali; flessibilità degli spazi interni e rappresentatività architettonica.
![]() |
|
una vista degli uffici. Holcom HQ riunisce nello stesso edificio 20 diverse società del gruppo e può ospitare fino a mille dipendenti (foto ©Ieva Saudargaité) |
A pianta quadrangolare con un lato obliquo che si adatta alla pendenza del terreno, l’edificio si sviluppa su un’area di 35 mila metri quadrati e sette piani fuori terra ed è composto di due grandi blocchi distinti, posti in collegamento da un copro centrale arretrato.
![]() |
|
I piani interrati ospitano i parcheggi (foto ©Ieva Saudargaité) |
|
|
|
uno spazio di ricevimento degli ospiti (foto ©Ieva Saudargaité) |
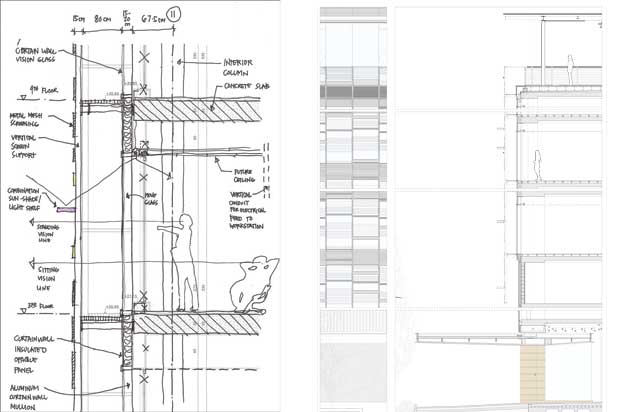
La facciata è il primo forte segno caratterizzante, in cui la schermatura dona unità a tutto l’edificio e il cui carattere è la sua doppia pelle, progettata secondo due sistemi: un curtain wall vetrato e continuo e una schermatura esterna.
![]() |
|
la maglia metallica che scherma la facciata senza impedire la vista dall’interno (foto ©Ieva Saudargaité) |
|
|
|
vista di dettaglio della doppia pelle dell’involucro (foto ©Ieva Saudargaité) |
Flessibilità e tecnologia sono la chiave di volta del business concept. Lo stesso principio di flessibilità nel tempo ha governato lo stacking plan, mirato a valorizzare tutti gli spazi dell’edificio.
Al piano terra un’ampia e accogliente area della lobby è il primo accesso alla società. Le aree ufficio, pensate secondo i criteri del lavoro contemporaneo per flessibilità e comfort, sono prevalentemente organizzate in open space. Al culmine dell’edificio, sono collocate le due aree top managerial, collegate tra loro da una terrazza panoramica.
Il progetto ha disposto le client area nei corpi di collegamento di ciascun livello, connettendole agli spazi ufficio attraverso i nuclei di supporto.
L’involucro dell’edificio è studiato per massimizzare il day-lighting, ridurre l’uso di luce artificiale e proteggere dall’irraggiamento solare. L’impianto fotovoltaico produce 110 KW e copre oltre un quinto delle esigenze energetiche. Per ottimizzare costi e consumi, l’intero edificio è gestito da due sistemi: uno di Building management system e l’altro di Lighting control system.
![]() |
|
schizzo e sezione del sistema di facciata (©L22) |







