A cosa serve l’architettura nelle trasformazioni urbane? Un caso esemplare è rappresentato dalla riqualificazione dell’ex centrale del latte a Barcellona Pozzo di Gotto ad opera dello studio Bodàr_bottega d´architettura.
Ricostruendo attraverso accurati rilievi la storia costruttiva disomogenea della centrale del latte dismessa di Barcellona Pozzo di Gotto, Bodàr ne ha svelato le caratteristiche, recuperando quanto si prestava alle nuove funzioni di centro sociale cittadino e scoprendo nell’anonimità degli spazi una dignità razionalista che ha potuto valorizzare. L’intervento restituisce alla città un pezzo di memoria collettiva, contribuisce alla riqualificazione del quartiere e attribuisce destinazioni d’uso contemporanee, anch’esse funzionali alla ri-connessione di un tessuto sociale, agli spazi un tempo dedicati alla raccolta, produzione e distribuzione del latte.

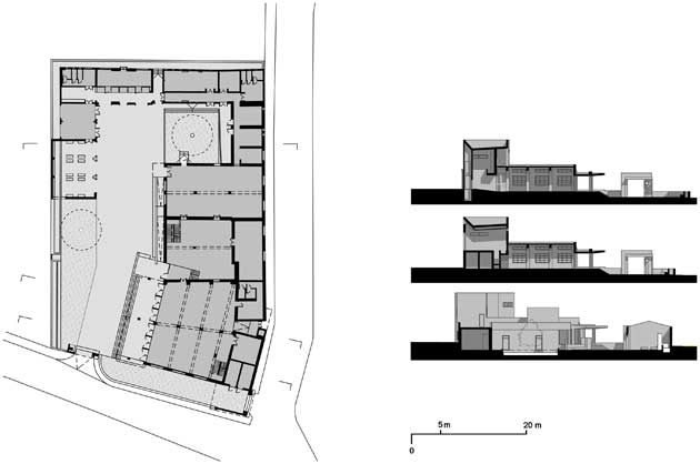
Pianta dell´intervento e alcune sezioni
Il progetto metabolizza il costruito degradato e gli attribuisce nuovo significato: il vuoto della corte su cui si aprono gli edifici manifesta già la sua vocazione di “piazza”; il corpo costruito in cemento armato rivela, nella continuità e nell’articolazione spaziale, una qualità architettonica inattesa, valorizzata con l’abbattimento dei tramezzi; nuove aperture favoriscono il dialogo tra spazi aperti e chiusi; laddove mancano le coperture nasce un “giardino segreto”, luogo di incontri protetto a cielo aperto; le irresolutezze vengono trasformate in momenti di astrazione figurativa, favorendo la lettura del complesso per corpi primari; la creazione di nuovi sistemi di connessione e l’aggiunta di alcuni elementi architettonici completano la fruibilità sociale del luogo, pensato per adattarsi alle diverse esigenze dei cittadini, evitando cioè la determinazione aprioristica di una specifica funzione (biblioteca, teatro, centro di formazione) ma prestandosi a molteplici possibilità. La pulizia geometrica infine trasforma l’edificio un tempo industriale in perno in un più ampio quadro di riqualificazione urbana di cui il progetto fa parte. Progetto primo classificato al Premio internazionale Abitare il Mediterraneo e al XXI Seminario internazionale e Premio di Architettura e Cultura Urbana Costruire nel costruito di Camerino nel 2011.