+4 Volumi dai colori vivaci e forme angolari caratterizzano una scuola materna nella Repubblica Ceca, progettata dallo studio Architektura per richiamare la giocosità dell’infanzia.
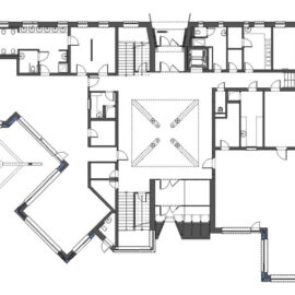
Situato a Říčany, cittadina della Boemia Centrale, l’asilo Větrník dispone di una palestra, un giardino, aule e un parco giochi, distribuiti in blocchi colorati distinti che si diramano da una struttura centrale.

Prima di definire la proposta progettuale si sono svolti numerosi incontri con gli insegnanti, i rappresentanti delle società sportive e l’amministrazione comunale.
Anche i bambini sono stati fondamentali: alcune delle loro caratteristiche – spontaneità, creatività, imprevedibilità, purezza, curiosità, ottimismo – hanno influenzato il progetto. E così la pianta frastagliata dell’edificio e le soluzioni architettoniche e di interior design rispecchiano questo approccio.

Attraverso l’ingresso, i visitatori e gli studenti sono accolti da un atrio nella struttura centrale bianca dove si trovano uffici e servizi. Qui si trova una grande rete, un’area giochi accessibile da tutte le aule, sostenuta da tronchi d’albero.
L’area sottostante allo spazio di gioco libero funziona come luogo comunitario pensato per ospitare musica, teatro e mostre.

Ciascuno dei blocchi colorati ospita un’aula, mentre il resto delle strutture è contenuto nel cubo bianco principale. Dall’atrio si diramano le aule, collegate al giardino e sormontate da lucernari di forma quadrata.

Le aule, definite dai progettisti mondi liberi con cui giocare, si caratterizzano anche per le finestre triangolari, alcune delle quali sono delimitate da cornici colorate. Le colonne angolate e i pavimenti dai colori vivaci contribuiscono a esprimere un design giocoso anche all’interno dell’edificio.

Attualmente in costruzione, il parco giochi esterno con strutture per l’arrampicata e altre attrezzature è stato progettato per imitare un parco divertimenti, una sorta di paesaggio della fantasia dei bambini.








