Il 6 giugno 1944 in Normandia l’operazione Overlord diede avvio alla liberazione dell’Europa. Delle cinque spiagge dello sbarco alleato, quella che va da Asnelles a Ver-sur-Mer, nome in codice ‘Gold’, era di competenza delle truppe inglesi, che per la particolare conformazione del suolo scelsero il tratto di mare di fronte a Arromanches-les-Bains per costruire il porto artificiale ‘Mulberry B’ (nome in codice ‘Port Winston’).
Qui, in cento giorni, su banchine galleggianti protette da una rada di cassoni in cemento dei quali restano le vestigia, sbarcarono 400.000 soldati, 4 milioni di tonnellate di materiale e 500.000 veicoli.
Sito, porto e topografia del luogo ricostruiti nei modelli e diorama esposti insieme a cimeli di guerra nel nuovo museo inaugurato da poco a Arromanches.

Parte di un più vasto sistema museale, il progetto dello studio francese Projectiles considera l’edificio e l’adiacente Place du 6 juin 1944, risistemata con alberature e tribune, come parte integrante del paesaggio.
Della piazza stessa, molto ampia per accogliere commemorazioni partecipate e punto ideale per osservare lo spettacolo delle maree, l’edificio appare come elemento complementare e saldatura tra la scogliera dello sbarco e le vie urbane.

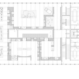
Molto luminoso, con viste dall’interno verso la Manica che diventano parte dell’esperienza di visita, l’architettura sviluppa una volumetria semplice e rigorosa con un piano terra che, attraverso un portico colonnato alto 8 metri e profondo 4, si collega allo spazio pubblico della piazza e delle vie cittadine. Le colonne, in calcestruzzo chiaro prefabbricato, richiamano il genio ingegneristico dei cassoni di cemento impiegati per realizzare il porto artificiale dello sbarco. L’involucro dell’edificio. Sui quattro lati, l’involucro è completamente vetrato.

L’interno è caratterizzato da un vuoto centrale lungo 16 metri e largo 4, al fondo del quale si trovano le strutture della distribuzione verticale, che permettono di raggiungere anche la copertura, calpestabile. Dal vuoto si dipartono, secondo una griglia di 2 metri, travi prefabbricate in calcestruzzo, che a nord e a sud poggiano sui pilastri perimetrali.
Gli ambienti interni, che si sviluppano per l’intera lunghezza dell’edificio, incoraggiano a visitatori a camminare lungo il perimetro, con viste continue sulla piazza o sull’acqua.

Con oggetti d’epoca e ricostruzioni l’allestimento è progettato per ricordare l’intuizione militare di Winston Churchill, l’esperienza dello sbarco e la liberazione di Bayeux (avvenuta il giorno dopo lo sbarco) e del resto dell’Europa. Poco dopo l’ingresso, in un’atmosfera ovattata una zona multi-livello è destinata alla proiezione di pellicole d’epoca mentre un diorama in scala 1:750 riproduce il porto artificiale.

“Quando le vestigia del passato saranno scomparse, erose dagli elementi, il museo rimarrà a memoria della più grande operazione militare di tutti i tempi”, concludono gli architetti.
Projectiles

In dieci anni, lo studio fondato a Parigi da Reza Azard (1972), Daniel Mészáros (1975) e Hervé Bouttet ha realizzato più di 190 progetti, muovendosi lungo una traiettoria in perenne movimento (da cui il nome, dal latino ‘projectus’) tra contenuti museografici e architettonici. Progetti – tra i quali l’Airborne Museum di Sainte-Mère-Eglise (in corso), gli spazi pubblici del Château de Fontainebleau (2019), il museo archeologico di Lodève (2018) o la mostra itinerante dedicata all’orizzonta creativo di Jean Paul Gaultier – che partono dalla ricerca sullo spazio architettonico per sviluppare orizzonti coerenti con l’incarico e capaci di aprire nuovi punti di vista.
Che si tratti di visitatori, residenti o utenti, l’obiettivo di Projectiles è invitarli a vivere un’esperienza seguendo una struttura narrativa che trasmetta un altrove.



