Il progetto di Hermann Kaufmann per un impianto di riscaldamento a biomassa nelle alpi austriache, nei pressi di Zürs nella regione dell’Arlberg/Vorarlberg si inserisce in un logica, peraltro inquadrata dalla Comunità Europea nel “Piano d’azione per la biomassa” (COM(2005) 628 def.), di realizzazione di impianti per la produzione locale di energia. Nel caso specifico, la fiorente industria del legno e del legname da costruzione che si è riaffermata nel Vorarlberg a partire dagli anni ´90, mette a disposizione importanti quantità di scarti delle lavorazioni di segheria e falegnameria, che vengono in questo modo riutilizzate al fine della produzione di energia allungando la catene del valore.




![]() |
|
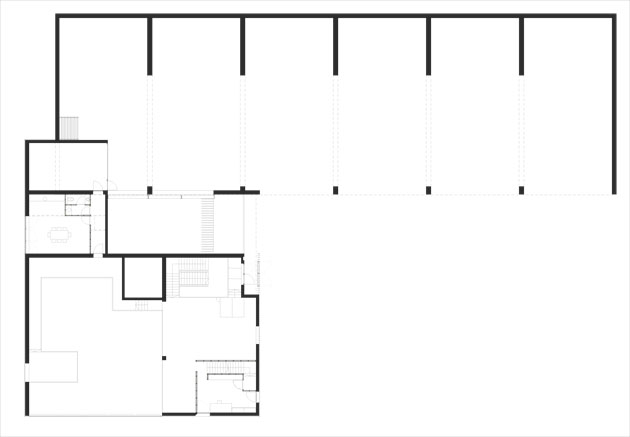
Piante, prospetti e sezione trasversale. Sono chiaramente distinguibili il corpo del magazzino, più alto e semi-interrato e a sinistra, proteso verso la strada, il corpo della centrale termica. |
Nel progetto l’utilizzo del legno domina in ogni sua forma, viene infatti utilizzato sia come materiale da costruzione sia come combustibile primario. L’impianto è stato costruito all’interno di un sito preesistente di estrazione di ghiaia che è stato così recuperato. La particolare topografia dell’area, con un andamento longitudinale e a gradoni, ha favorito l’organizzazione tipologica e funzionale dell’edificio in termini di concatenazione ottimale degli spazi legati alle varie sequenze del processo. Il materiale combustibile (prevalentemente cippato) viene immagazzinato al livello superiore, portato in caldaia, bruciato, e le ceneri vengono raccolte al livello più basso, in corrispondenza della strada.

L’architettura riflette in questo modo la presenza del materiale all’interno dell’edificio, dove la parte in cemento, aperta verso valle, si sviluppa longitudinalmente a diretto contatto del terreno, mentre la caldaia, il fulcro dell’intero impianto, si distingue isolandosi come corpo relativamente autonomo. Nel volume della caldaia, con struttura e rivestimento in legno, un’ampia facciata in vetro presenta, quasi come in un’esposizione, i macchinari e gli impianti tecnici con tubi e silos. Il disegno finale di questi elementi ne mette in risalto la forza evocativa e simbolica dichiarando architettonicamente la funzione dell’edificio. Interessante è infine l’impiego dei materiali dove al cemento, grigio, quasi una prosecuzione geometrica di un terreno prevalentemente roccioso, si affianca il legno di larice che pure, con l’andare del tempo, assumerà il classico colore grigio-argentato.
![]() |
|
Vista della centrale nel paesaggio, con il corpo di fabbrica del magazzino, più in alto e in cemento, e quello della centrale termica, in legno. (Foto© Bruno Klomfar) |

