Ixa, architettura primigenia per il memoriale di tutte le resistenze cecoslovacche
Ixa, architettura primigenia per il memoriale di tutte le resistenze cecoslovacche
Ixa, architettura primigenia per il memoriale di tutte le resistenze cecoslovacche
Ixa, architettura primigenia per il memoriale di tutte le resistenze cecoslovacche
Ixa, architettura primigenia per il memoriale di tutte le resistenze cecoslovacche
Ixa, architettura primigenia per il memoriale di tutte le resistenze cecoslovacche
Prima l’occupazione nazista, poi quella sovietica. La Cecoslovacchia – oggi divisa in due nazioni indipendenti, la Repubblica Ceca e la Slovacchia – cercò di opporsi a tutti i regimi, dapprima con forme di resistenza clandestina negli anni Quaranta del secolo scorso, poi, nel 1968, con la “primavera di Praga” repressa dall’Ursa con i carri armati e infine con la “rivoluzione di velluto” che nel 1989 pose fine all’occupazione sovietica e rese il Paese indipendente.
Trent’anni dopo, nel 2017, rientrata finalmente in possesso della proprietà di suo padre Josef Mašín, ufficiale dell’esercito cecoslovacco e membro della resistenza clandestina contro i nazisti, Zdeňka Mašínová diede vita a un’associazione per trasformare ciò che restava della fattoria a Lošany, in Boemia, nel memoriale delle tre resistenze cecoslovacche.

L’obiettivo era quello di aprirla al pubblico e utilizzarla per preservare l’eredità di Josef Mašín e della sua famiglia per celebrare la lotta per la patria, la libertà e la democrazia.

In particolare, la resistenza ceca è il movimento di resistenza attivo durante la seconda guerra mondiale nel territorio dell’attuale Repubblica Ceca, che al tempo costituiva il protettorato di Boemia e Moravia sotto il controllo tedesco. Si trattò di un movimento di piccole dimensioni e anche per questo scarsamente documentato.

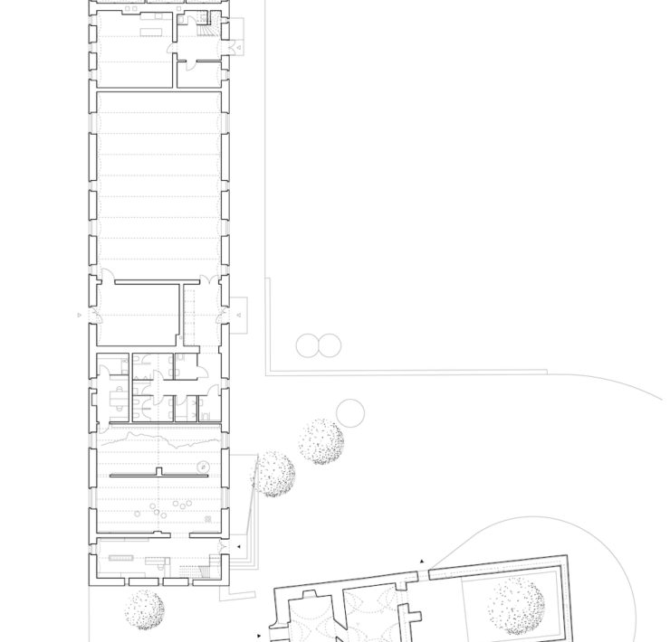
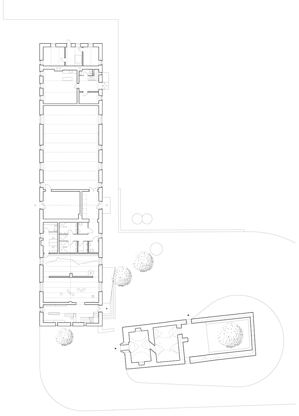
Il memoriale dei tre movimenti di resistenza progettato da Ixa – studio di Praga degli architetti Tomáš Hradečný e Benedikt Markel – offre l’opportunità di osservare la storia moderna della Cecoslovacchia e della Repubblica Ceca attraverso la storia di una famiglia rurale.

Dopo numerose ricostruzioni la casa natale di Josef Mašín aveva perso il suo carattere originario. L’unica traccia di autenticità era rappresentata dagli ambienti in muratura e a volta del piano terra, ora conservati e nascosti sotto un getto di calcestruzzo che li ricopre e li protegge. Altre parti dell’edificio, come finestre e porte non originali, il tetto e il soffitto con travi a vista, sono state rimosse.

In due nicchie contrapposte dell’atrio è installato il testo di una lettera di Josef Mašín in cui saluta la moglie e i figli. Nella seconda sala, tre aperture poste sul soffitto a volta simboleggiano i tre movimenti di resistenza. L’ultimo spazio, senza tetto, è un luogo di riflessione.
Qui cresce un gelso come simbolo della famiglia Mašín, che rappresenta la libertà e la speranza che gradualmente oltrepassa l’orizzonte del memoriale.

L’ampio cortile della fattoria originaria rimane vuoto, pronto ad accogliere gruppi numerosi di visitatori o a fungere da sfondo per eventi. Il granaio al piano superiore è accessibile solo in occasioni speciali e, come la stalla e il fienile in un’altra parte dell’edificio, sarà oggetto dell’ultima fase di ricostruzione.