L’obiettivo era la classe A, il risultato la classe Oro Più. Merito di una progettazione intelligente e di scelte impiantistiche ormai alla portata di tutti. Basta volerlo.
L’Adige nel suo alto corso, fitti meleti, montagne: gli elementi che contraddistinguono gran parte del territorio che unisce fisicamente Merano a Bolzano, caratterizzato da ampi spazi e un’ottima disposizione geografica. Ci troviamo lungo la riva destra del fiume, a quota 635 m slm, in un’area circondata da splendidi alberi da frutta. La villa in oggetto è stata concepita considerando il desiderio della committenza di disporre di un edificio a basso consumo energetico e l’esigenza di inserire la nuova struttura nel paesaggio esistente. Il progetto nasce dalla volontà di realizzare un corpo di fabbrica molto compatto con l’intento di orientare il volume secondo i criteri CasaClima. Per questo il concept ha previsto un volume aperto sul versante sud e di conseguenza protetto sul fronte nord, che corrisponde alla strada consortile di accesso al lotto. Sin dal principio si è pensato di ottenere la classificazione minima di “CasaClima A”; obiettivo raggiunto grazie a determinati accorgimenti tecnico-costruttivi.
![]() |
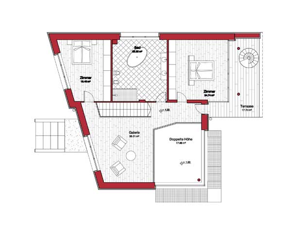
| Pianta del primo piano |
L’efficienza energetica dell’involucro riferito all’ubicazione è di 11,16 kWh/mqa. L’efficienza impiantistica ha poi permesso di elevare la classificazione alla categoria Oro, con un impatto ambientale in termini di emissioni di soli 460 kg di CO2 all’anno. La muratura perimetrale, costituita da mattoni tipo Poroton T8 da 49 cm (λ=0,08 W/mK), è stata rivestita da un ulteriore strato isolante costituito da pannelli in lana di roccia (λ=0,034 W/mK) e un telo protettivo antivento. Lo strato di finitura esterno, scelto anche in funzione del luogo, è costituito da una listellatura in legno di larice che, grazie alla doppia sottostruttura, risulta di fatto una facciata ventilata. Per mantenere le temperature costanti all’interno dell’edificio durante l’intero arco dell’anno ed evitare lo smaltimento delle acque meteoriche, si è optato per un tetto verde praticabile. Le finestre e le vetrate esterne posate in opera sono serramenti a doppia vetrocamera basso emissivi e telaio a taglio termico. L’uso del legno, materiale ecocompatibile dall’aspetto naturale che ben si abbina al concetto complessivo di eco-sostenibilità, e la scelta del tetto verde favoriscono la migliore integrazione dell’edificio nel paesaggio circostante.
![]() |
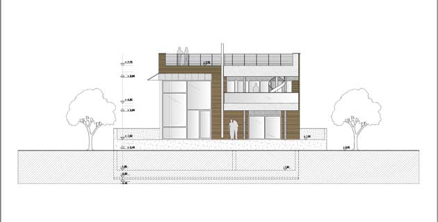
| Prospetto ovest |
Con l’ingegnere Fabio Furlan, della divisione riscaldamento di Daikin Italia, abbiamo approfondito le scelte impiantistiche della costruzione, basate su un sistema integrato in pompa di calore aria/acqua a marchio Rotex da 8 kW termici che fornisce acqua calda a bassa temperatura al sistema radiante di distribuzione del calore a pavimento. Al sistema sono stati integrati tre pannelli solari il cui scopo primario è di fornire acqua calda sanitaria che, per ovviare all’intermittenza della fonte energetica solare, confluisce in un serbatoio di accumulo con capacità di 500 litri. Si tratta però di un serbatoio “tecnico” per la produzione istantanea di ACS caratterizzato dall’elevato grado di coibentazione (isolamento delle pareti di 12 cm) che permette di mantenere per due settimane le elevate temperature dell’acqua. Inoltre, al suo interno passa, attraverso una serpentina metallica, l’acqua riscaldata dalla pompa di calore. La particolare tecnologia del sistema assicura una climatizzazione ottimale con un minore assorbimento di energia elettrica, migliorando il proprio indice di rendimento (più kW termici a parità di kW elettrici assorbiti).
![]() |
| Prospetto sud |
Il secondo aspetto rilevante è la “scalabilità delle fonti energetiche” del sistema. Se oggi l’energia elettrica necessaria al funzionamento della pompa proviene dalla rete, nulla vieta domani di utilizzare energia autoprodotta mediante un impianto fotovoltaico. L’ingegner Furlan prevede anzi che “questa sarà con ogni probabilità la tendenza nei prossimi anni, dal momento che l’immissione in rete di energia elettrica da rinnovabili prodotta in proprio ed eccedente i fabbisogni risulterà penalizzata dal regime di incentivi (IV conto energia e successivi attesi)”. L’aspetto più importante che emerge dalla conversazione tuttavia – e che è facile rilevare osservando lo schema in alto – è che una buona impiantistica va progettata insieme all’edificio. “Finiti i tempi dell’energia a basso costo e dell’assenza di attenzione verso l’ambiente – prosegue Furlan – l’efficienza dipende dall’integrazione. Anche l’accumulo tecnico svolge un ruolo importante, è uno spazio in più – nella villa di Merano misura cm 79 x 79 x 159 – da prevedere in sede di progetto, al pari della distribuzione radiante, fondamentale non solo dal punto di vista del comfort ma perché si tratta della soluzione ottimale per sfruttare le “basse” (40-50° C) temperature operative delle pompe di calore”.
![]() |
|
LA POMPA COL TURBO Per ristrutturare un’abitazione conservando il tradizionale impianto a radiatori, Daikin ha messo a punto una soluzione a marchio Rotex in pompa di calore a doppio stadio di compressione (modelli HT). Il principio è semplice: un primo compressore porta la temperatura da 0° a 30° C (anziché a 50°); è così più facile per il secondo compressore innalzare ancora la temperatura fino a 80° C. Il rendimento complessivo è sempre interessante per l’ambiente e per l’utente, che può portare il costo per il riscaldamento di una casa unifamiliare di 200 mq da 4.000 euro di gasolio a 1.500 euro di elettricità. |
| SCHEDA TECNICA Dati climatici Zona climatica F; giorni di riscaldamento HT: 212; temperatura esterna di progetto: – 4°C; temperatura interna media: 20°C Dati dell’edificio Volume lordo riscaldato: 973,62 mc; superficie netta dei piani: 209,3 mq Involucro edilizio Superficie disperdente dell’involucro: 640,78 mq Rapporto tra superficie lorda disperdente e volume lordo riscaldato: 0,66 l/m Coefficiente medio di trasmittanza dell’involucro dell’edificio: 0,25 W/(mqK) Guadagni e perdite energetiche Perdita di calore per trasmissione durante il periodo di riscaldamento: 11.757 kWht/a Perdita di calore per ventilazione durante il periodo di riscaldamento: 2.047 kWht/a Guadagni per carichi interni durante il periodo di riscaldamento: 3.727 kWht/a Apporti termici solari attraverso superfici vetrate durante il periodo di riscaldamento: 8.932 kWht/a Fabbisogno energetico e potenza termica Fabbisogno di calore per riscaldamento nel periodo di riscaldamento: 2.335 kWht/a Potenza di riscaldamento richiesta dall’edificio: 6,43 kWt Potenza specifica di riscaldamento riferita alla superficie netta: 30,72 Wt/mq Efficienza dell’involucro edilizio 11,16 kWht/mqa Fabbisogno di energia primaria (con 3 pannelli solari termici Rotex) Riscaldamento: 834 kWht/a Acqua calda: 225 kWht/a Raffrescamento: 0 kWht/a Illuminazione: 104 kWht/a Guadagno di energia primaria da produzione elettrica propria (fotovoltaico): -6.903 kWht/a Energia primaria ausiliaria per pompe di circolazione (riscaldamento, ACS e raffrescamento): 5.697 kWht/a Fabbisogno di energia primaria globale – 43 kWht/a Energia rinnovabile e emissioni di CO2 Quota di energia alternativa: 51,51% Emissioni CO2: 0,46 t/a Indice CO2 (emissioni CO2/superficie netta edificio): 2 kg/(mqa) |



