Per la 51esima Coppa del Mondo di Biathlon che si è conclusa di recente ad Anterselva, IDM Alto Adige ha affidato allo studio altoatesino noa* il progetto di interni della Südtirol-Haus, che per dieci giorni è stata il ritrovo di ospiti, campioni e giornalisti. Un edificio temporaneo, che può essere smontato e rimontato facilmente senza deteriorarlo, circostanza che gli architetti hanno considerato anche nel progetto degli interni.
Allestita nelle immediate vicinanze della Medal Plaza, la Südtirol-Home – uno spazio di 260 metri quadrati avvolto in un involucro di legno e vetro – è stata disegnata e realizzata da Rubner Haus, che l’ha costruita in soli 13 giorni lavorativi montando elementi in legno prodotti in stabilimento.
«Quando costruiamo in legno siamo responsabili anche per il nostro futuro – spiega Deborah Zani, Ceo di Rubner Haus. Si stima che ogni albero possa mediamente assorbire fino a 20 kg di CO2 all´anno. In un bosco a gestione sostenibile, come quelli di proprietà di Rubner, gli alberi vengono lasciati crescere fino a poco prima che inizi il loro processo di senescenza, evitando che alla loro morte rilascino nell’atmosfera tutta l’anidride carbonica immagazzinata durante il loro ciclo di vita. Per realizzare la Südtirol Home sono stati utilizzati 60mc di legno, che corrispondono a un deposito e risparmio di CO2 di circa 60 tonnellate».
![]() |
| foto ©Alex Fitz |
Gli interni sono stati progettati da noa*-network of architecture seguendo il concetto del “Miteinander”, ovvero lo “stare insieme” che caratterizza gli usi e la cultura di questa comunità di montagna e che esprime non solo socievolezza e ospitalità ma anche tradizione e associazionismo.
![]() |
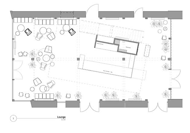
| Pianta del piano terra (©noa*) |
Al piano terra la scena è dominata da un ampio bancone che può facilmente ruotare sul suo asse centrale per essere usato, secondo i momenti, come bar o come cucina a vista. Ricoperto con basalto dell’Alpe di Siusi, una rara pietra sudtirolese, le parti frontali del bancone sono realizzate con traversine di svariati tipi di legno e diverse dimensioni, a rappresentare la ricchezza del paesaggio naturale e dei boschi del Sud Tirolo.
![]() |
| foto ©Alex Fitz |
L´area rivolta verso la Medal Plaza può essere utilizzata in modo flessibile e variabile e le pareti sono attrezzate con scaffalature e nicchie dove sostare, tamponate da pannelli sui quali è stato pressato fieno degli alpeggi della Val Passiria, luminosi pampini di vite, trucioli profumati di pino cembro di Siusi e la simulazione di una parete rocciosa.
Al piano superiore, dove si gode dell´ampia visuale offerta dalla facciata in vetro che espande lo spazio, si trova invece la zona per le interviste e l´attività giornalistica.
Anche qui domina un´atmosfera accogliente e confortevole, mentre l´ospitalità trova la sua massima espressione nella tipica “Stube”, sorta di scatola chiusa al cui interno è stata impiegata un´autentica, antica “Stube” restaurata proveniente da una fattoria.
![]() |
| foto ©Alex Fitz |
All’esterno, le pareti di questo box-in-box sono in legno di abete rosso rivestito dal tipico tessuto verde noto come loden sul quale sono montati in modo sparso pannelli di legno con decori intarsiati ispirati ai tomboli che sostengono le sorgenti luminose.
![]() |
| foto @Alex Fitz |




