+4 Luminosa e ispirata alle strutture portuali della città la nuova scuola di Saint-Malo
Luminosa e ispirata alle strutture portuali della città la nuova scuola di Saint-Malo
Luminosa e ispirata alle strutture portuali della città la nuova scuola di Saint-Malo
Luminosa e ispirata alle strutture portuali della città la nuova scuola di Saint-Malo
Luminosa e ispirata alle strutture portuali della città la nuova scuola di Saint-Malo
Luminosa e ispirata alle strutture portuali della città la nuova scuola di Saint-Malo
Luminosa e ispirata alle strutture portuali della città la nuova scuola di Saint-Malo

L’accento del progetto è stato posto sulla qualità e sulla durata dei materiali. Nella ricerca di uno stile neutro ed elegante, i progettisti hanno voluto limitare la moltiplicazione dei colori e dei materiali. Così, l’unico colore bianco mette in evidenza gli elementi vivi e attivi del luogo: la luce naturale, il verde e soprattutto le persone – studenti e docenti – che frequentano l’edificio.

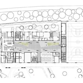
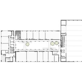
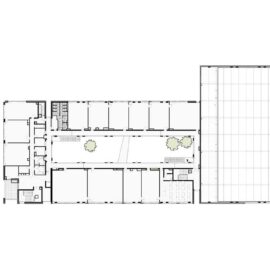
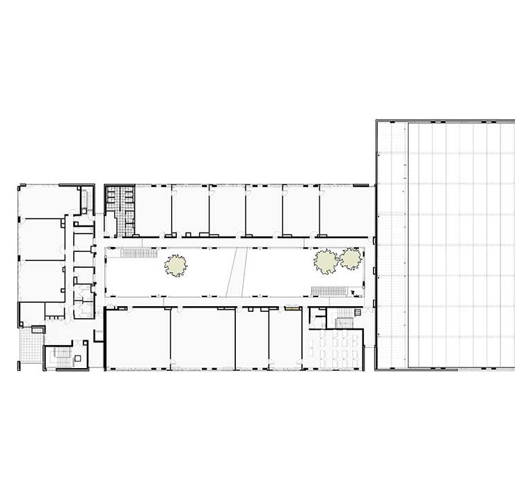
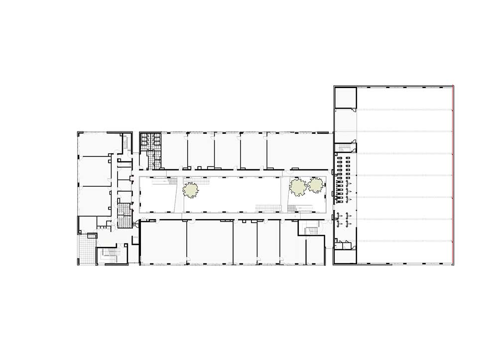
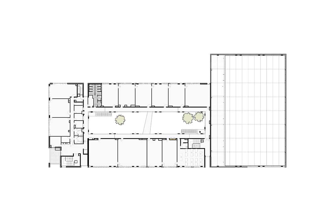
L’istituto è suddiviso in tre entità: una scuola post-maturità con 6 classi per 150 studenti e la mensa-caffetteria al piano terra; un istituto scolastico di secondo grado per 500 studenti con 19 classi, laboratori, una biblioteca scolastica, un auditorium, uffici tecnici e amministrativi; e un palazzetto dello sport.
Queste tre entità, distribuite su due piani, formano un unico edificio che gravita attorno a un atrio coperto da un tetto di vetro. Questo spazio centrale è un riferimento all’atrio vetrato dell’altro importante complesso scolastico cittadino, denominato Intra Muros, autentico luogo di incontro della comunità di Saint-Malo.

La palestra, uno spazio dedicato non solo al complesso scolastico ma anche alla città, ospita al primo piano un’area polisportiva per attività come pallacanestro, pallamano, pallavolo e, al piano superiore, una sala pesi e una parete di arrampicata. Anche questa architettura prosegue il motivo strutturale a forma di W, che permette di sospendere il volume costruito e di liberare una totale trasparenza del campo sportivo verso l’esterno.








