Inaugurato ieri a Mendrisio il Teatro dell’architettura, la nuova struttura dell’università della Svizzera italiana, progettata da Mario Botta. Il teatro dell´architettura nasce per favorire il dibattito culturale sull´architettura e le arti visive.
Il nuovo edificio, che sorge all´interno del campus universitario dell´Accademia di architettura di Mendrisio, sarà luogo di circolazione delle idee: un laboratorio di sperimentazione contemporanea in grado di percepire e trasmettere le tendenze culturali del nostro tempo.
![]() |
|
Interno del Teatro dell´Architettura di Mendrisio (foto Enrico Cano) |
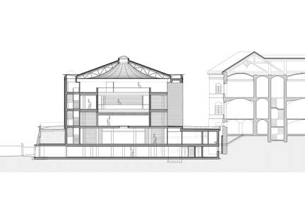
Il nuovo edificio, a pianta centrale circolare di tre piani fuori terra e due interrati, rimanda alla tipologia del teatro anatomico. Unico nel suo genere, il Teatro dell’architettura contribuirà alla nuova immagine identitaria dell’Accademia di architettura di Mendrisio.
![]() |
|
La copertura del Teatro dell´edificio (foto, Enrico Cano) |
L´edificio progettato da Botta sorge accanto a Palazzo Turconi. Ha un diametro di 27 metri e la superficie è di circa 3 mila metri quadrati. Gli spazi si prestano ad una pluralità di utilizzi per eventi sia concomitanti che indipendenti.
Il Teatro dell’architettura dell’università della Svizzera italiana del campus di Mendrisio avrà una gestione programmata in accordo fra la direzione dell’Accademia di architettura e la Fondazione Teatro dell’architettura. Tutti gli eventi culturali saranno aperti al pubblico.
![]() |
|
Un particolare del Teatro progettao da Mario Botta (foto,Enrico Cano) |
Accanto alle attività di didattica e di ricerca, l´iniziativa intende rafforzare l’offerta formativa dell´Accademia in occasione delle iniziative espositive e dare visibilità ai nuovi interessi transdisciplinari che intervengono nel processo progettuale ridefinendo il ruolo sociale dell’architettura.
![]() |
|
La cerimonia di inaugurazione (foto Copyrightfree) |
Dal mese di marzo lo spazio ospiterà una serie di eventi finalizzati a collaudare le potenzialità della struttura. Si partirà con un laboratorio didattico sui lavori degli studenti dell’atelier Blumer, promosso dal direttore uscente dell’Accademia Marc Collomb e intitolato Sette architetture automatiche, che presenta alcune innovative installazioni interattive.
La prima grande mostra ospitata dal Teatro sarà aperta al pubblico giovedì 11 ottobre 2018 e avrà per titolo Louis Kahn e Venezia.
![]() |
|
Il taglio del nastro è avvenuto il 7 febbraio scorso (foto, copyrightfree) |
|
|
![]() |
|
Pianta e sezione del nuovo edificio |






