Completato di recente nel nuovo quartiere Empalot, a sud di Tolosa, il lotto MG3, un progetto di CoBe Architecture et Paysage per 110 appartamenti, 20 dei quali destinati a edilizia sociale.
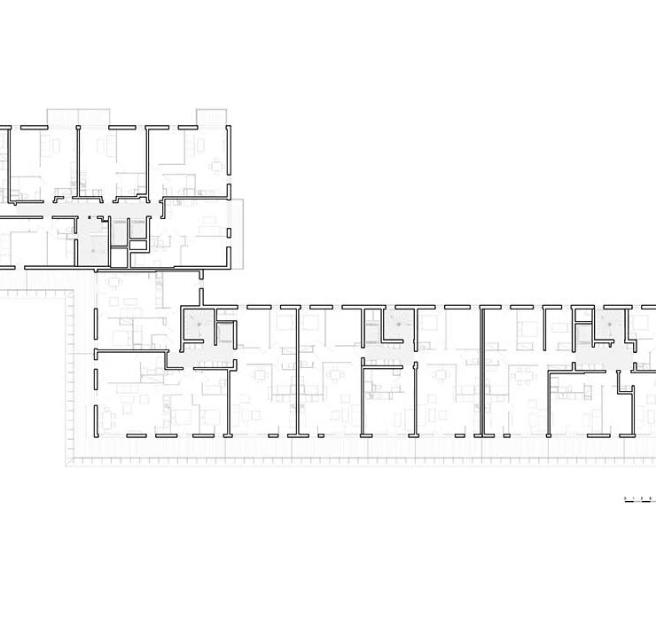
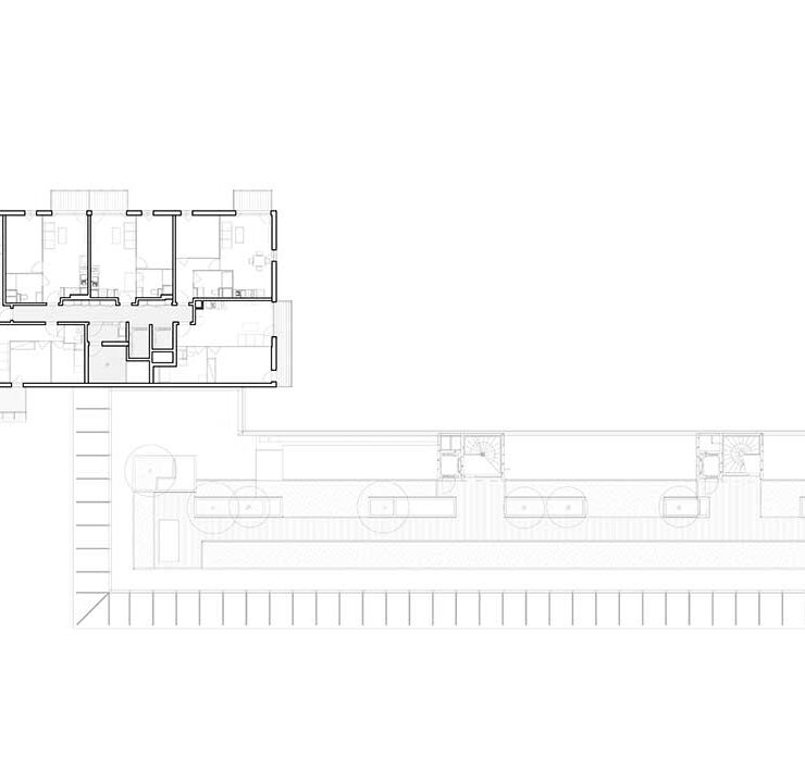
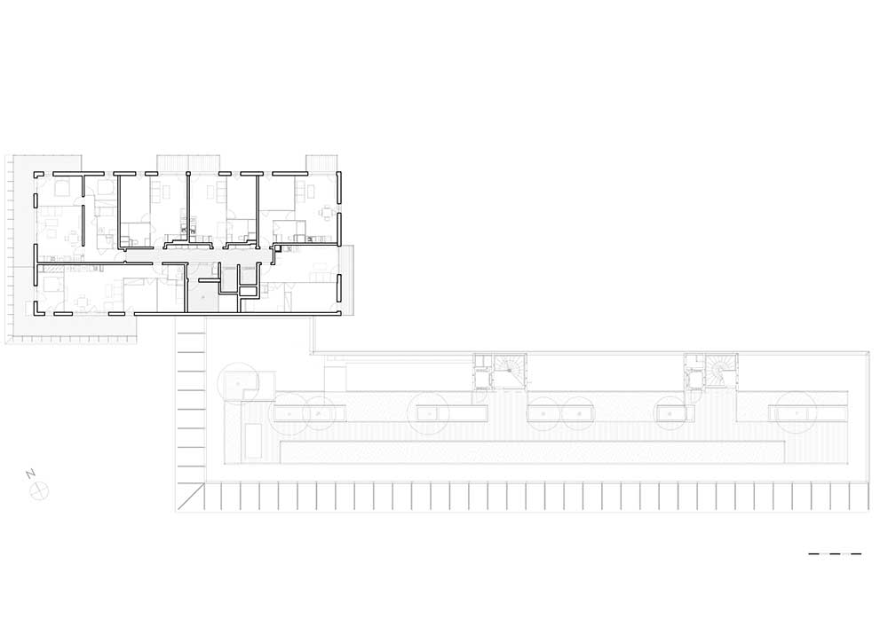
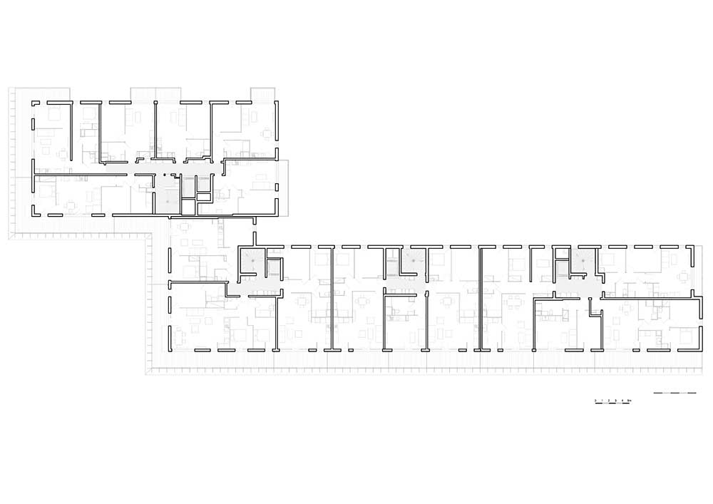
Il complesso, che sorge su un lotto tra la Garonna e un campo di football, si sviluppa in due volumi, un edificio a torre – il ‘belvedere’, di dodici piani fuori terra – e uno orizzontale di cinque piani – il ‘prairie’ – che tra loro accostati creano due corti verdi aperte, una destinata all’ingresso principale, preceduto da un ampio portico, e l’altra che dà accesso alle scale sul retro dell’edificio.

Al piano terra si trovano la club house e ambienti di servizio del vicino campo di calcio e spazi dedicati a un’associazione per la cura di giovani con disabilità, mentre due livelli interrati ospitano i parcheggi dei residenti.
Chiari e luminosi, I due volumi sono caratterizzati da ampie balconate che, oltre a ombreggiare adeguatamente i lati sud e ovest durante l’estate, grazie alla profondità di oltre due metri diventano vivibili estensioni outdoor degli appartamenti. In aggiunta, griglie metalliche svolgono ulteriore funzione di schermatura solare.

Agli ultimi piani, la protezione viene aumentata da un’ulteriore griglia metallica disposta in orizzontale che crea gioch idi ombre come quelli delle foglie di un pergolato.
L’edificio alto – il ‘belvedere’ – è destinato ai tagli più ampi. L’edificio in linea invece ospita appartamenti di diverse dimensioni, con piante che si ripetono uguali per tutti i piani, e sul tetto una terrazza solarium vegetata con decking in legno accessibile a tutti gli abitanti che copre l’intero edificio.
Crediti
- Località Tolosa
- Committente Bouygues Immobilier Toulouse
- Progetto architettonico CoBe Architecture et Paysage
- Ingegneria e impianti Girus GE, PING, Bureau Veritas, SCBA, 3J Technologies (strutture), Pier énergie, Polymétrie (specifiche tecniche),
- Progetto di interni Duo Créativ
- Superficie lorda totale 13.000 mq
- Completamento Marzo 2022
- Investimento 10.200,00 euro


