Pargade Architectes rinnova il centro di neuroscienze del Sainte-Anne di Parigi
Pargade Architectes rinnova il centro di neuroscienze del Sainte-Anne di Parigi
Pargade Architectes rinnova il centro di neuroscienze del Sainte-Anne di Parigi
Pargade Architectes rinnova il centro di neuroscienze del Sainte-Anne di Parigi
Pargade Architectes rinnova il centro di neuroscienze del Sainte-Anne di Parigi
Pargade Architectes rinnova il centro di neuroscienze del Sainte-Anne di Parigi
A Parigi, nel 14° arrondissement, Pargade Architectes ha completato il nuovo centro di neuroscienze del centro ospedaliero Sainte-Anne.
Il progetto getta un ponte tra l’eredità del progetto di Charles Auguste Questel (1807-1888) e la nuova struttura aperta alla città.

Il progetto architettonico di ricostruzione completa del centro universitario di neuroscienze di Sainte-Anne, che fin dalla sua fondazione è stato un laboratorio per la salute mentale, si basa su una geometria semplice.
Grandi piattaforme sovrapposte e scalabili favoriscono la disposizione di diversi servizi organizzati attorno a due ampi patii inondati di luce naturale.

In continuità con l’opera di Questel, la scelta di una forma volumetrica pura, con un vocabolario ridotto di elementi ripetitivi, crea un senso di unità e completezza.

I mattoni in terracotta color calcare modellati a mano di Terreal collegano la struttura con l’ambiente circostante, creando un ponte tra la periferia parigina e il contesto storico e dando vita a una nuova piazza urbana che si inserisce tra la strada e l’interno del sito.

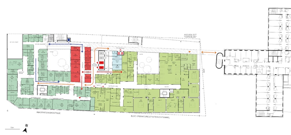
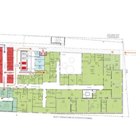
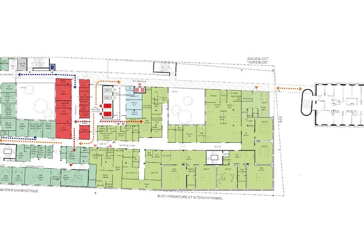
Il progetto dello studio francese, con una vasta esperienza nel mondo della sanità, è scandito da un settore operativo suddiviso in quattro aree, due sale per la terapia elettroconvulsiva, un reparto di diagnostica, 135 posti letto, ambienti da dedicare al day hospital.

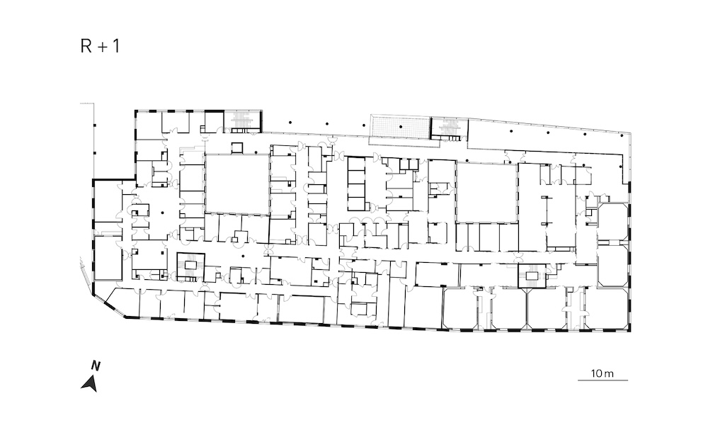
Il centro è organizzato con piani polifunzionali flessibili, adattabili a diverse zone incentrate sui flussi dei pazienti e sulla gestione ottimizzata della circolazione orizzontale e verticale.
Inoltre, obiettivo del programma è stato di creare una forte connessione tra psichiatria e neuroscienze, sviluppando un approccio progettuale che considera l’intero sito di sette ettari, metà del quale dedicato a spazi verdi, che offreno un luogo di benessere per il personale, i visitatori e i pazienti.

Pargade Architectes

Lo studio di Jean-Philippe Pargade e Caroline Rigaldiès lavora negli ambiti della pianificazione urbana e dell’architettura basandosi su una visione sostenibile, umanista ed equa dell’atto di costruire. Con oltre 25 anni di esperienza, è uno dei principali esperti francesi nel settore ospedaliero. L’Hôpital des Armées Bégin di Saint Mandé, il Pôle Santé Sarthe et Loir a Bailleul, l’ospedale privato a Villeneuve d’Ascq, l’ospedale di Mantes-la-Jolie, l’Hôpital Saint Joseph di Parigi e il suo piano generale, nonché l’ampliamento all’Hôpital Saint Joseph di Marsiglia sono tutti progetti firmati dallo studio all’insegna del rigore e dell’innovazione.