Residence de l’Isle, rivisitazione del Moderno americano
Residence de l’Isle, rivisitazione del Moderno americano
Residence de l’Isle, rivisitazione del Moderno americano
Residence de l’Isle, rivisitazione del Moderno americano
Progettato per una coppia e i loro due figli, Residence de l’Isle è una reinterpretazione del Moderno statunitense della metà del XX secolo. L’abitazione, costruita sulle rive di un fiume nella periferia nord di Montreal, appare come il risultato di un intenso dialogo con le idee degli architetti della seconda metà del Novecento.

La posizione della casa, nascosta dietro una fila di pini, permette alla vegetazione naturale di diventare parte integrante del progetto di Chevalier Morales, lo studio canadese fondato da Stephan Chevalier e Sergio Morales, ottimizzando le viste verso l’acqua.

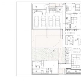
Rivisitando in modo contemporaneo alcuni elementi architettonici chiave del Moderno americano sono stati modellati pavimenti, soffitti, mobili, boiserie e rivestimenti. Il garage, simbolo dell’epoca in cui sobborghi e automobili facevano rima con progresso, è direttamente integrato nella casa, che così forma un perfetto quadrato di 100 piedi (30 metri).

Due cortili rettangolari sono inseriti nel volume, portando la luce naturale nel cuore della residenza. Le aree esterne servono anche a definire e strutturare la geometria dello spazio interno del progetto. Il quadrato di 100 piedi è quindi in contatto con uno spazio esterno ordinato, posto in primo piano nel contesto naturale che rimane intatto oltre i confini della casa.

La distribuzione programmatica degli spazi interni tiene conto del rapporto con la strada e con il fiume, dell’orientamento solare e delle esigenze specifiche degli abitanti.
Sulla facciata anteriore, un grande bovindo e il soggiorno abbassato di alcuni gradini creano un flusso visivo verso la piscina e il fiume. L’asse nord-sud del progetto ospita gli spazi più intimi con necessità di privacy, mentre gli spazi sociali si trovano lungo il fiume, beneficiando così di un forte legame con il paesaggio circostante.

Una tavolozza di materiali, abbinata al colore della corteccia degli alberi, permette di integrare la nuova costruzione tono su tono nell’ambiente circostante. Sono stati privilegiati i materiali naturali, come i mattoni di argilla, il legno e la pietra, cui si aggiungono accenti in ottone e rivestimenti in metallo.

Anche se inizialmente progettata come casa a un piano, è stato poi deciso di installare al livello superiore un padiglione di vetro che varia e articola le esperienze spaziali al suo interno.
L’attenzione generale dedicata al tema della compatibilità ambientale ha portato a scelte di geotermia, con pompe di calore acqua/acqua che forniscono sia il riscaldamento sia il raffrescamento della residenza.










