Completata lo scorso marzo, la nuova biblioteca comunale del quartiere di Sint-Andreis a Bruges è frutto della riqualificazione e dell’ampliamento di un edificio storico realizzato su progetto dello studio Farris Architects, fondato nel 2008 ad Anversa dall’architetto Giuseppe Farris (Cagliari, 1972) e vincitore nel 2012 del concorso pubblico bandito dalla città belga.
Il progetto ha previsto l’ampliamento della biblioteca preesistente – ospitata insieme ad altre funzioni all’interno di un edificio sottoposto a tutela architettonica – su un lotto di ridotte dimensioni situato in un contesto urbano con una superficie d’intervento pari a 555 mq.
.jpg)
.jpg)
L´entrata della nuova biblioteca (foto ©Lumecore/Toon Grobet)
Tra i diversi requisiti richiesti dalla committenza, il progetto ha ben risposto alla volontà della committenza di far “emergere” la nuova biblioteca rendendola ben visibile dalle strade adiacenti e di attribuirle una nuova identità architettonica per distinguerla rispetto agli altri servizi ospitati nell’edificio preesistente.

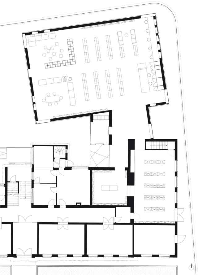
Pianta del piano terra (©Studio Farris)

Sezione (©Studio Farris)
Subordinato al volume principale da un punto di vista dimensionale, l’ampliamento risulta visivamente scollegato da esso anche per quanto riguarda l’aspetto materico: le facciate infatti sono rifinite in pannelli di acciaio Corten che contrastano con i fronti intonacati di bianco dell’edificio storico. Inoltre, la posizione stessa dell’estensione enfatizza la tensione tra l’edificio storico e il nuovo volume, caratterizzato da grandi finestrature collocate agli angoli per garantire alla biblioteca la necessaria visibilità e un certo grado di interazione con l’ambiente urbano circostante.
.jpg)
.jpg)
Particolari del rivestimento in acciaio corten e delle aperture vetrate del nuovo edificio (foto ©Lumecore/Toon Grobet)
Funzioni interne quali postazioni di lettura, aree di lavoro e lo stesso bancone della reception sono state collocate in prossimità di tali aperture vetrate – selezionate secondo tre tipologie differenti – per permettere ai visitatori e al personale della biblioteca di beneficiare dell’apporto di luce naturale durante il corso della giornata e a seconda delle diverse stagioni.
.jpg)
.jpg)
Gli interni della biblioteca sono caratterizzati da grande luminosità, amplificata dall´uso intensivo del bianco (foto ©Lumecore/Toon Grobet)