+4 Ritmo e giochi di luce disegnano le facciate di un edificio residenziale a Murcia
Ritmo e giochi di luce disegnano le facciate di un edificio residenziale a Murcia
Ritmo e giochi di luce disegnano le facciate di un edificio residenziale a Murcia
Ritmo e giochi di luce disegnano le facciate di un edificio residenziale a Murcia
Ritmo e giochi di luce disegnano le facciate di un edificio residenziale a Murcia
Ritmo e giochi di luce disegnano le facciate di un edificio residenziale a Murcia
Ritmo e giochi di luce disegnano le facciate di un edificio residenziale a Murcia
Nel sud-est della Spagna, Murcia è tappa irrinunciabile di quasiasi viaggio di architettura, per visitare la casa municipale (1991-1998) disegnata da Rafael Moneo.
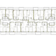
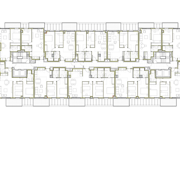
Recentemente, in un’area a nord della città universitaria con una forte pressione abitativa, Manuel Costoya Estudio ha completato due edifici residenziali, ciascuno di 12 piani più un piano attico, per un totale di 138 abitazioni in affitto.

Il progetto si è concentrato sulle facciate est e ovest, trascurando quelle nord e sud, che al termine dello sviluppo risulteranno inserite tra altri edifici.
Peculiarità del progetto il sistema di facciata, che si sviluppa su tre livelli: un primo livello verticale, che corrisponde all’involucro vero e proprio degli edifici; un secondo livello verticale, costituito da un sistema di schermature solari mobili, posto a 1,90 m dal precedente e la cui funzione principale è bloccare la radiazione solare nei momenti in cui presenta una componente orizzontale più marcata, fornendo così una protezione aggiuntiva all’involucro termico.
Infine, un terzo livello orizzontale per ciascuno dei piani, nel quale si alternano parti opache (terrazze) e parti permeabili al passaggio della luce (frangisole), con una duplice funzione: da un lato, filtrare il passaggio della luce e, dall’altro, schermare la visuale tra le terrazze di piani diversi al fine di garantire un maggior livello di privacy.

Un sistema di facciata dinamico, in costante mutamento, basato su due parametri principali: da un lato, la variabilità dell’incidenza solare, che definisce un gioco di luci e ombre che cambia durante il giorno; dall’altro, l’attivazione delle schermature solari verticali da parte degli utenti delle abitazioni, che varia la composizione della facciata.
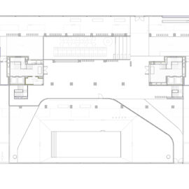
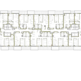
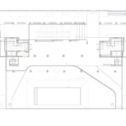
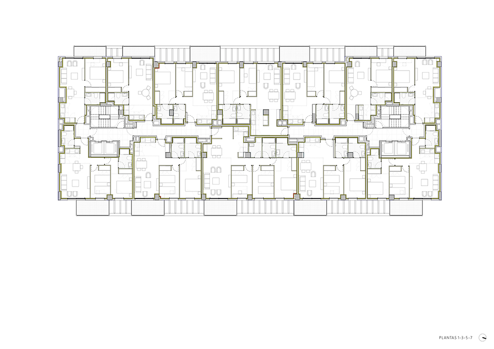
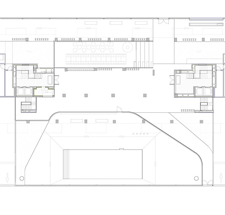
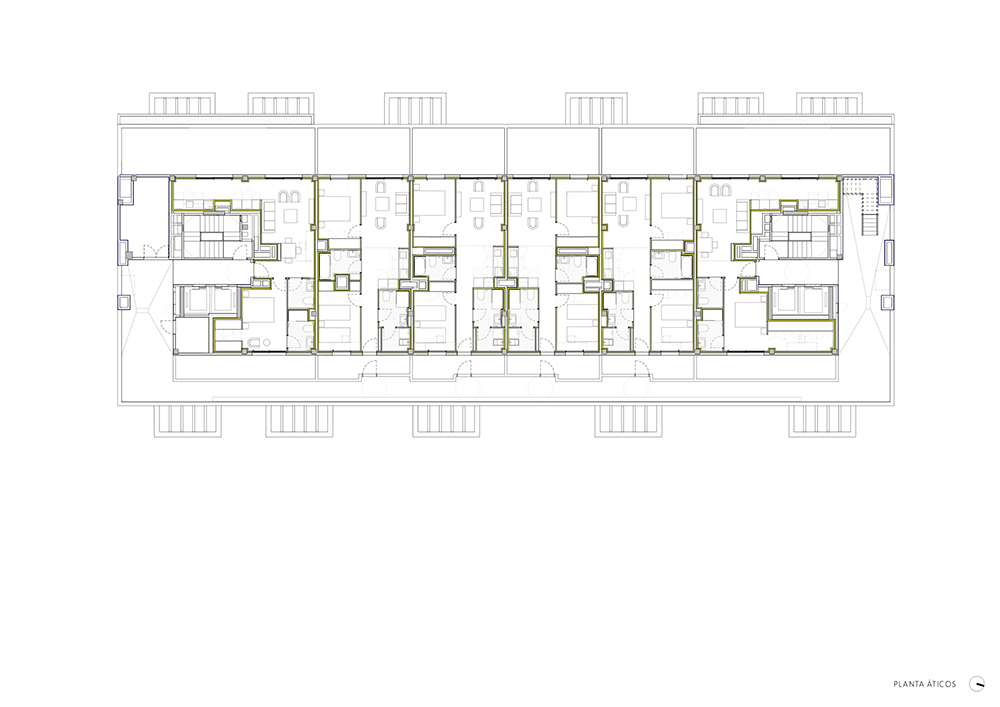
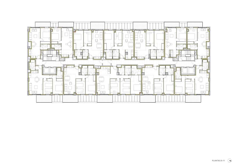
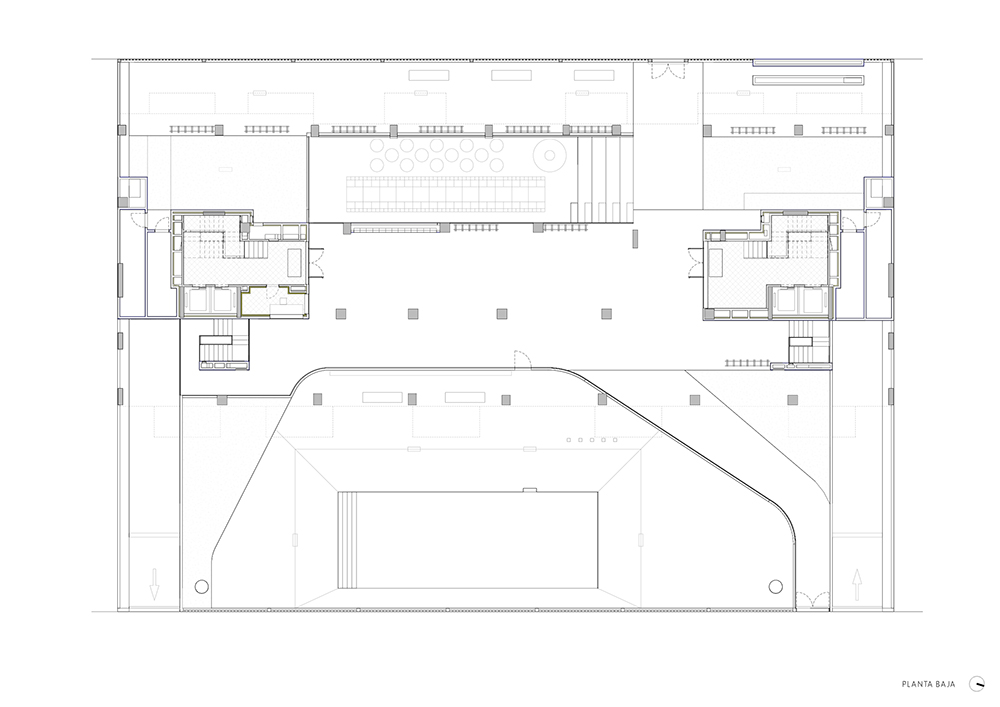
La distribuzione delle abitazioni è ottenuta mediante l’alternanza di tipologie simmetriche ai piani pari e dispari, cercando di ottimizzare la superficie edificata per dotare il complesso di una maggiore superficie di aree e spazi comuni al pianoterra e al seminterrato, che includono spazi come piscina, area sportiva e un’area giochi esterna coperta o area sportiva interna.

I garage e i locali di deposito si trovano nei tre piani interrati dell’edificio.







