A due anni dalla pubblicazione della prima ricostruzione della genesi del Centre Pompidou, giovedì 7 novembre il ricercatore Boris Hamzeian torna a Genova per presentare la sua ultima monografia, Il Centre Pompidou e la sfida del Total Design, una raccolta di saggi che disassemblano questo edificio-macchina nelle sue componenti fondamentali, dalla struttura metallica in acciaio di fusione agli organi tecnici dai colori sgargianti, sino alla sua piazza e al dispositivo museale.
L’incontro – dalle 18 alle 20 – si svolgerà nel Salone del Maggior Consiglio di Palazzo Ducale. Oltre all’autore interverranno Lia Piano, direttrice editoriale della Fondazione Renzo Piano, Shunji Ishida, ex architetto in Piano+Rogers Architects e senior partner di Renzo Piano Building Workshop, Luca Buzzoni di Arup Italia e Tullia Iori, docente e storica dell’ingegneria e delle costruzioni presso l’Università Roma Tor Vergata. L’evento, a ingresso libero e gratuito, è patrocinato dalla Fondazione dell’Ordine degli Architetti di Genova, dalla Fondazione Renzo Piano, dallo studio di ingegneria Arup e dal Centre Pompidou.

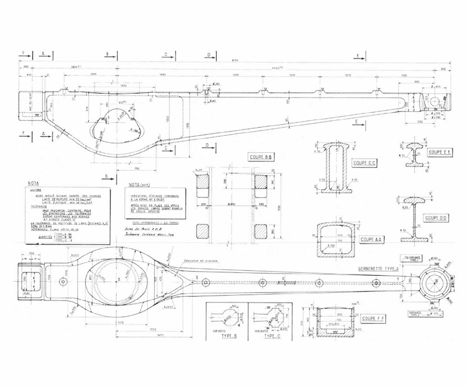
La conferenza genovese sarà l’occasione per analizzare una delle componenti che hanno reso celebre il progetto del Pompidou, la gerberette, quella trave in acciaio di fusione che ha sfidato le capacità tecniche di un’epoca attraverso una sinergia inedita tra le discipline dell’architettura, dell’ingegneria, della metallurgia e dell’aeronautica. Attraverso un percorso inedito tra documenti d’archivio, disegni d’epoca e testimonianze orali, Boris Hamzeian ripropone una storia inedita che va dalle diverse visioni sulla struttura dell’edificio alla sua problematica fabbricazione.

In occasione della presentazione del libro, il giorno dopo la Fondazione Renzo Piano apre le sue porte per due visite guidate – su prenotazione – in compagnia dell’autore e delle archiviste. L’appuntamento è a Villa Nave alle ore 14.30 o alle 16.00.