Il progetto dell’architetto Ralf Dejaco per il nuovo centro acquatico di Canazei, in Val di Fassa, prevedeva la realizzazione di un nuovo corpo vasche a integrazione del centro benessere Eghes, che era rimasto sostanzialmente inalterato dalla sua apertura nel 1999. L’aspetto esteriore del nuovo edificio è caratterizzato da facciate a tutta altezza con vetri a triplo strato e da un rivestimento del tetto e della parte superiore dei fronti in lastre di rame preossidato di diversa lunghezza. La scelta dei materiali è stata fondamentale per evitare un contrasto cromatico troppo marcato rispetto al paesaggio, mentre l’altezza moderata e il tetto marcante a una falda mascherano le dimensioni dell’edificio rispetto alle costruzioni vicine. Posizionato sul lato sud-ovest, uno scivolo esterno comunica immediatamente la funzione della struttura sviluppata su tre livelli. Al piano interrato sono stati disposi l’intero impianto tecnico e di trattamento acque con vari depositi e spogliatoi per il personale. I vani tecnici esistenti sono stati in parte conservati e allestiti con nuovi impianti di climatizzazione, depurazione acque, centrali termiche e cogenerazione.


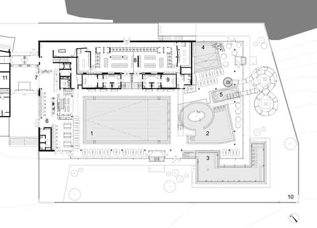
Nella pianta del piano terra e nella sezione, le funzioni dell´edificio: 1.vasca natatoria, 2.vasca fun, 3.vasca esterna acqua salata, 4.vasca ric. bambini, 5.vasca di ammaraggio scivolo, 6.bar/bistro, 7.ingresso/ biglietteria, 8.spogliatoi, 9.servizi igienici/docce, 10.prato, 11.centro benessere esistente, 12.soppalco/zona relax, 15.scivolo, 16.terrazza, 17.vani tecnici
L’ingresso all’area delle piscine è situato all’interno di un corpo sviluppato su un unico piano e inserito tra la nuova costruzione e la struttura preesistente. Il piano terra è composto da un’ampia entrata con foyer e zona casse, un’area ristorazione, dagli spogliatoi per il pubblico con relativi servizi, da un vano destinato ai bagnini e al pronto soccorso e infine dalla vasca semi-olimpionica lunga 25 metri circondata da vasche ricreative. L’area destinata alla balneazione è stata progettata in maniera tale da creare un ambiente unico scandito da pilastri inclinati, elemento ricorrente e caratterizzante in tutti gli interni. Al primo piano sono state disposte zone relax e una tribuna dalla quale è possibile godere della vista sull’intera area balneabile e sul paesaggio naturale. La copertura è stata realizzata con inverdimento estensivo, impianto fotovoltaico e collettori tubolari per il riscaldamento dell’acqua.