La nuova cantina delle Aziende Agricole Planeta Feudo di Mezzo progettata dallo studio Vid´A di Menfi (Santi Albanese e Gaetano Gulino) sorge su una spianata nel mezzo di una sciara lavica del 1800 (il termine “sciara” indica un accumulo di detriti causato da una colata lavica).
Il sito si affaccia sullo splendido paesaggio dell’Etna ed è caratterizzato da una vegetazione variegata, con il giallo vibrante della ginestra selvatica a fare da contrappunto alle scure tonalità della pietra vulcanica.
La cantina s’inserisce all’interno di un impianto viticolo di circa 35 ettari con una capacità produttiva di 2mila ettolitri, a quota 620 metri s.l.m. sul versante nord del vulcano, in un’area caratterizzata da pendenze debolmente accentuate.
Dall’impianto planimetrico, che distribuisce tre corpi di fabbrica – edificio lavorazione, bottaia e magazzino – alla definizione dei materiali, tutto il progetto è stato sviluppato per istituire, attraverso i volumi e i percorsi funzionali alla moderna produzione vinicola, relazioni continue con il sito e il paesaggio circostante.
![]() |
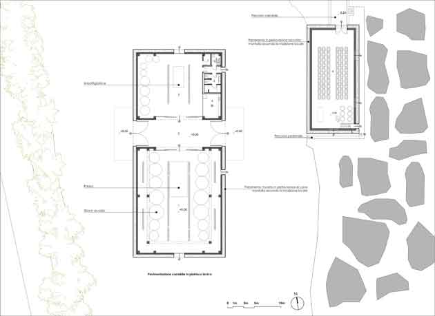
| Cantina Feudo di Mezzo: pianta dei due volumi principali: conferimento-lavorazione e bottaia (a destra nella pianta) |
Il volume principale è costituito dall’edificio di lavorazione e imbottigliamento, un prisma a base rettangolare organizzato su un unico livello e diviso in due parti da una galleria per il conferimento delle uve. Destinato ad accogliere le zone di lavorazione, gli elementi strutturali in c.a.p. sono tamponati esternamente da paramenti murari in pietra lavica di cava dello spessore di 60 cm montati a secco secondo la tradizione locale.
L’interno è diviso in tre zone: la prima, destinata al conferimento delle uve, si trova in posizione quasi centrale, aperta lateralmente e consente l’attraversamento trasversale dell’intero edificio. A sud si trova la zona di stoccaggio e vinificazione, che presenta un’altezza utile interna di circa 5,50 mt e nella quale sono installati i serbatoi in acciaio inox per il vino, mentre nell’area nord è stata disposta la zona destinata all’imbottigliamento con un piccolo laboratorio enologico e i servizi.
Definito da una copertura piana con tetto-giardino, l’edificio si configura come un monolite che si confronta e si integra con l’ambiente circostante indirizzando, tramite il suo orientamento, lo sguardo del visitatore verso il cono del vulcano.
![]() |
| le 4 sezioni della cantina, costruita su una sciara del versante settentrionale dell´Etna |
Pensata come una pietraia, la bottaia presenta una struttura parzialmente interrata. La sezione fuori terra è tamponata da pietra lavica raccolta sul posto e montata a secco, secondo il tradizionale metodo costruttivo delle pietraie dell’Etna. Interrato di circa 2 metri rispetto al piano di campagna, il piano interno di calpestio è raggiungibile mediate una lieve rampa e una scaletta incassata nella pietra, che permettono l’accesso ad un unico, grande ambiente di circa 160 mq destinato alla conservazione del vino nelle botti.
Raggiungibile per mezzo di una scala scavata nella pietra, la copertura è ricoperta da pietrisco lavico e diventa una terrazza dalla quale è possibile ammirare il paesaggio e i vigneti circostanti.
Con funzione di deposito, il terzo volume presenta anch’esso pianta rettangolare ed è realizzato interamente con elementi modulari in c.a.p. rifiniti esternamente con intonaco tradizionale di colore grigio scuro.
L’edificio è circondato da un muro, alto 2 metri circa, che genera un orto concluso.

