Nel 1949, quando Chiang Kai-Shek abbandonò la Cina continentale per trasferire il suo governo sull’isola di Formosa (oggi Taiwan), scelse il quartiere di Shilin come sede del suo governo e per la propria residenza ufficiale.
Da allora questo distretto, piccola città nella città, situata a nord della ‘nuova’ Taipei, ha conservato una vivace impronta multiculturale ed è tuttora l’area preferita dagli expat europei, americani e giapponesi che vivono nella capitale taiwanese.
All’interno del Tianmu Commercial Circle, l’area residenziale high-end di Shilin abitata da funzionari pubblici e diplomatici stranieri e diventata nuova destinazione commerciale per i giovani, sono state completate da poco le Zhishan Residences progettate da Neri&Hu, un edificio di 16 piani che conserva la scala umana del quartiere, lontano dai grattacieli tutto vetro della nuova Taipei.
La strategia di costruzione è stata quella di mantenere un forte spigolo squadrato sull’angolo nord per imporre una presenza decisa dell’edificio lungo la strada, mentre sul prospetto sud profonde logge che riparano dal caldo subtropicale dell’isola sono caratterizzate da balaustre a forma di arco di catenaria.
Il colore rame del metallo si contrappone al grigio chiaro della pietra che riveste le parti opache e che disegna con chiarezza la griglia strutturale di travi e pilastri dell’edificio.

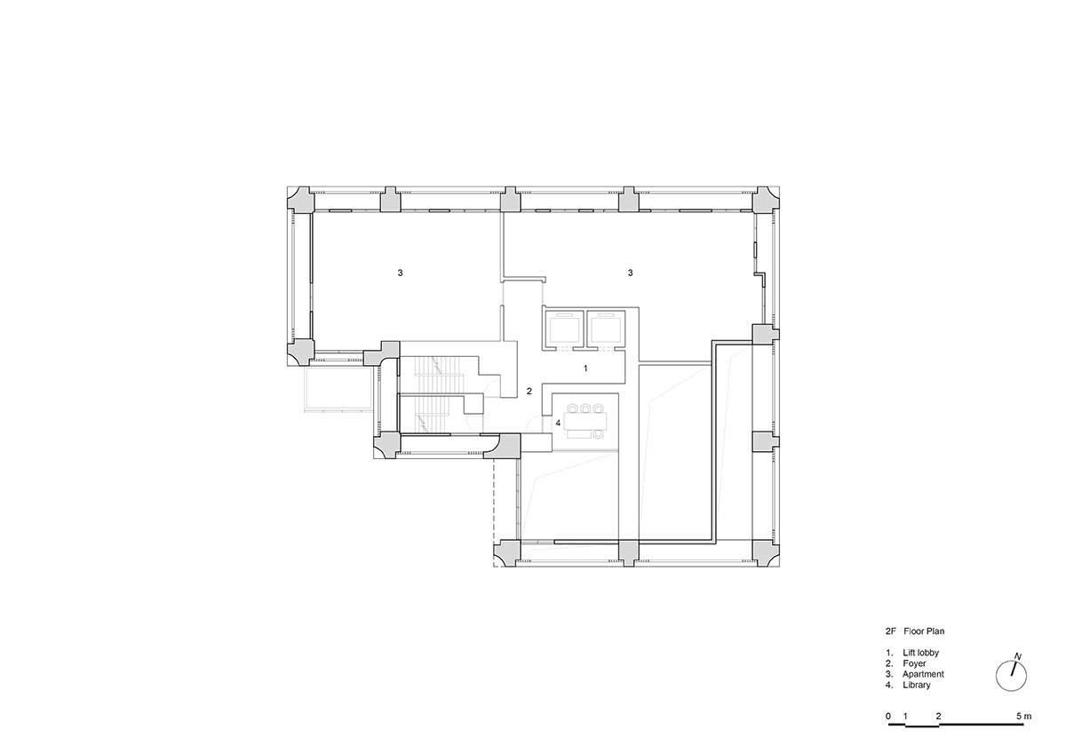
Tendenzialmente quadrata, in un angolo del lotto – per rispondere ai regolamenti edilizi – la pianta arretra due volte così che dalla strada l’edificio appare come tre volumi giustapposti.
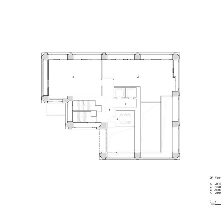
Il progetto degli interni riflette la ricerca dello studio di forme archetipiche e di ricchezza di materiali. L’atrio di ingresso a doppia altezza è rivestito in un terrazzo di colore grigio caldo, al pari delle parti comuni che conducono all’ascensore e all’area lounge.
L’arredo è lussuoso e scenografico, con lampade pendenti in bronzo e vetro soffiato a mano e mobili in legno di noce nero completati da dettagli in bronzo e tessuti neutri.

Dal livello superiore una piccola biblioteca, con un arco che richiama i portici degli edifici storici di Shilin, si affaccia su questo spazio.
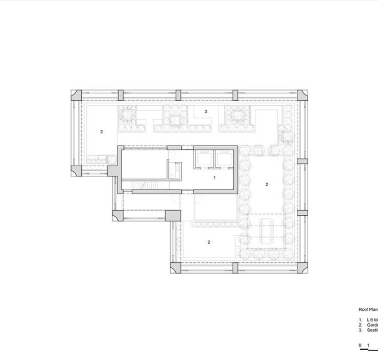
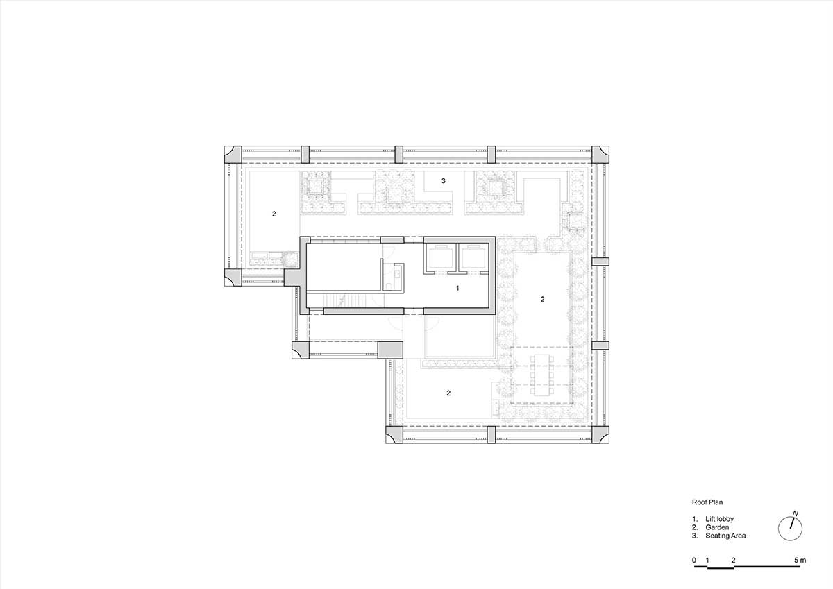
All’ultimo livello, con vista panoramica verso le foreste del parco nazionale Yangmingshan, piante rigogliose delimitano i vari spazi esterni che comprendono un angolo cottura all’aperto e un’area per eventi, piccoli angoli per sedersi, una piattaforma per lo yoga e un’area per gli animali domestici.
Crediti
- Località Shilin District, Taipei
- Committente Continental Development Corporation
- Progetto architettonico e degli interni Neri&Hu Design and Research Office: Lyndon Neri, Rossana Hu (partners-in-charge), Nellie Yang (Associate Director-in-charge)
- Design Team Michael Yang, Rosie Tseng, Yin Sheng, Greg Wu, Ellen Chen, Jerry Guo, Chaofu Yeh, Lili Cheng, Becky Zhang
- FF&E Design Republic
- Local Architect of Record C.T. Chen & Partners
- Consulenti per l’arte The Artling
- Contractor Continental Engineering Corporation
- Superficie del lotto 1.309 mq
- Superficie costruita 8.485 mq
- Completamento Dicembre 2023

