+3 Bořislavka Centre, mixed-use retail e uffici a Praga
Bořislavka Centre, mixed-use retail e uffici a Praga
Bořislavka Centre, mixed-use retail e uffici a Praga
Bořislavka Centre, mixed-use retail e uffici a Praga
Bořislavka Centre, mixed-use retail e uffici a Praga
Bořislavka Centre, mixed-use retail e uffici a Praga
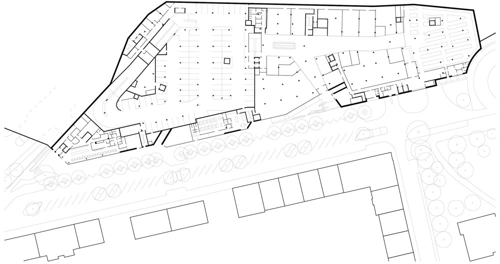
A Praga, sopra una stazione della metropolitana, accanto a una delle principali strade della città, un lotto libero di grandi dimensioni con vista sul castello di Praga è diventato, con il progetto di Aulík Fišer architekti, il punto focale del quartiere Praga 6.

Il sito in lieve dislivello è circondato da uno sviluppo eterogeneo, con un quartiere di abitazioni unifamiliari, edifici di media altezza e un complesso abitativo di epoca socialista. Nel 2012 la società di investimenti Kkcg Reg ha organizzato un workshop internazionale di architettura per trovare una soluzione adeguata per il suo sviluppo che si concluse con il coinvolgimento dello studio Aulík Fišer architekti per la progettazione di un nuovo centro commerciale e uffici.

Il progetto di Jan Aulík e Leoš Horák dà vita a quattro volumi a forma di cristallo che si ergono da un basamento comune a due piani, la cui forma risponde al sito di costruzione stretto e irregolare. Sfruttando la topografia esistente, è stato creato un centro commerciale (di circa 9.000 mq) nella parte sotterranea del progetto cui si sono aggiunti quattro volumi dedicati agli uffici per un totale di circa 26.000.

La portata del progetto è andata oltre l’estetica e la disposizione razionale dei piani: lo spazio intorno e tra gli edifici era altrettanto importante. Immaginando uno stretto legame funzionale tra architettura e spazio pubblico, i percorsi di accesso pedonale, il design urbano e il paesaggio sono stati tutti aspetti fondamentali per l’intervento.

Il nuovo edificio vuole essere una porta di accesso a servizi e infrastrutture e una piazza di incontro con ristoranti, caffè e negozi. Sulla sommità del podio, infatti, i quattro complessi emergenti a forma di diamante sono completati da altrettante zone aperte di transito e sosta, un parco verde ripiantumato, due percorsi con scale e uno senza barriere architettoniche.

La trasparenza contraddistingue entrambe le zone funzionali, sia gli uffici che godono di ampia illuminazione naturale, sia il centro commerciale le cui facciate sono state disegnate con grandi vetrate che offrono una relazione diretta tra gli interni e la città.
Le parti più regolari e verticali della facciata continua in vetro utilizzano un sistema modulare prefabbricato, mentre le parti più complesse, angolari e tridimensionali utilizzano una facciata con sistema a montanti in acciaio. Durante lo sviluppo del progetto, sono stati realizzati modelli stampati in 3D in scala reale per testare alcuni degli elementi strutturali più complessi.
Una parte considerevole dell’involucro dell’edificio è costituita da un soffitto di vetro che si estende tra gli edifici I e II.

Fin dall’inizio, gli architetti hanno immaginato diversi interventi artistici come parti integranti del progetto: alcuni sono stati installati in luoghi prestabiliti, come nella piazzetta, di fronte all’ingresso principale o in specifiche posizioni interne.
Un secondo gruppo di interventi artistici continuerà a essere commissionato e installato nello spazio aperto pubblico dopo il completamento dell’edificio. Gli interventi saranno selezionati e posizionati contestualmente alle opere d’arte esistenti.







