Nel centro storico del villaggio di Ansião in Portogallo, Bruno Dias Arquitectura ha progettato Casa Âmago: una residenza in cemento a un piano con un patio centrale aperto che dona luce e spaziosità all’intera abitazione, che ricorda la sua precedente Casa Gloma.

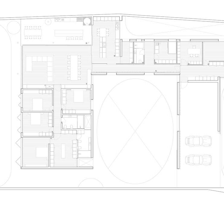
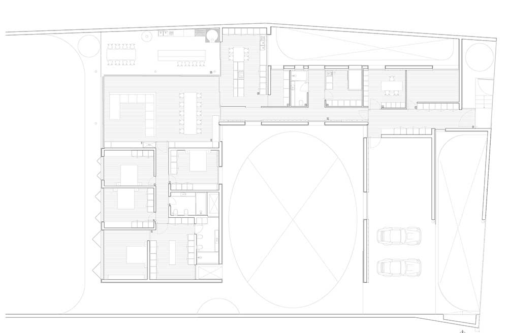
Su un terreno in leggera pendenza, dove in precedenza si trovavano due piccole costruzioni in rovina, l’edificio è organizzato intorno a un cortile centrale, il nucleo dal quale si dispiegano tutti gli spazi. Âmago significa infatti midollo, centro, nucleo, punto focale. Posizionato sotto un’ampia apertura circolare, il patio è caratterizzato da un rigoglioso giardino che funge da punto di collegamento di tutte le aree pubbliche della casa.

L’ingresso principale introduce alle aree sociali, situate sul lato ovest: il soggiorno, la cucina, l’area barbecue all’aperto. Lungo questo asse si trovano le aree tecniche e di servizio, come la palestra, lo studio, la lavanderia, un bagno e un ripostiglio. Tutti questi spazi conducono a un patio sul lato nord, che consente di ottenere luce e ventilazione naturali.
L’area più privata dell’abitazione comprende diverse camere da letto con bagno: due si affacciano sul giardino a ovest, le altre sul cortile centrale.

In tutta la casa, le grandi finestre a tutta altezza forniscono luce in abbondanza. Gli interni sono ordinati e semplici, con una tavolozza di colori tenui e materiali naturali negli arredi fissi, nelle pareti e nei pavimenti. Il legno aggiunge un accento caldo, creando un ulteriore legame con la bellezza naturale del giardino.


