Budapest, la trasformazione di una scuola dell’infanzia di epoca sovietica
Budapest, la trasformazione di una scuola dell’infanzia di epoca sovietica
Budapest, la trasformazione di una scuola dell’infanzia di epoca sovietica
Budapest, la trasformazione di una scuola dell’infanzia di epoca sovietica
Budapest, la trasformazione di una scuola dell’infanzia di epoca sovietica
A Budapest, nel quartiere XIII, Archikon Architects ha trasformato un asilo prefabbricato degli anni Settanta. Il progetto ne conserva l’impronta, ma lo ripensa radicalmente: l’aggiunta di un piano e di spazi di connessione a doppia altezza introduce una nuova verticalità e connessioni visive.

L’intervento ha ribaltato il concetto originario di prefabbricazione, alleggerendo la massa compatta e introversa in favore di volumi permeabili alla luce e in dialogo con il verde circostante.
Il contesto è quello di un quartiere residenziale costruito negli anni Settanta composto da edifici di dieci piani di altezza che si affacciano su una promenade alberata.

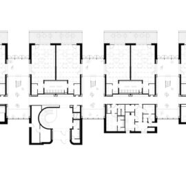
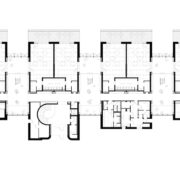
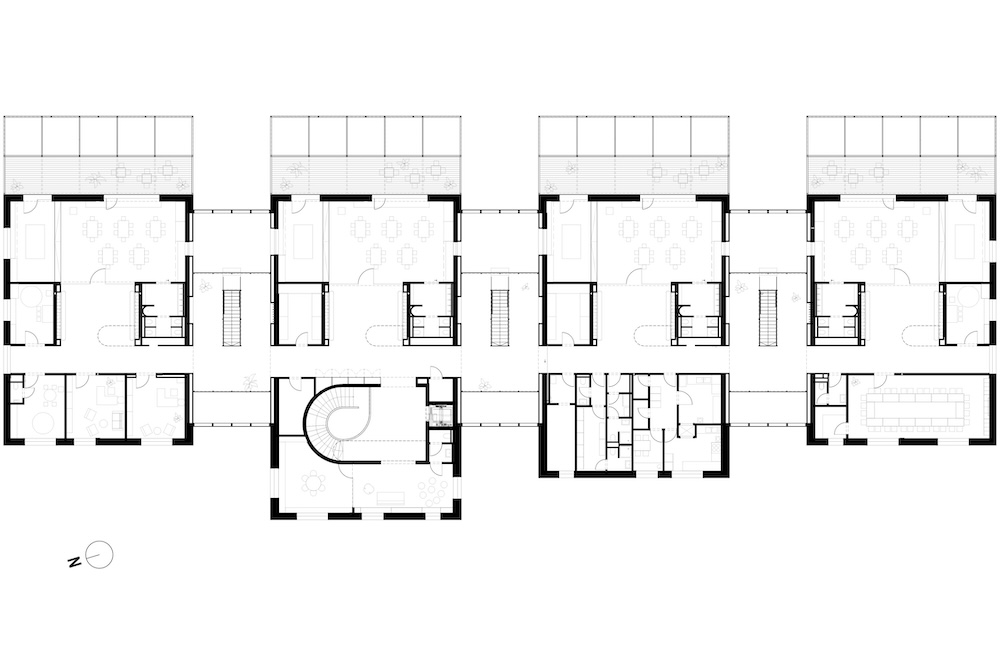
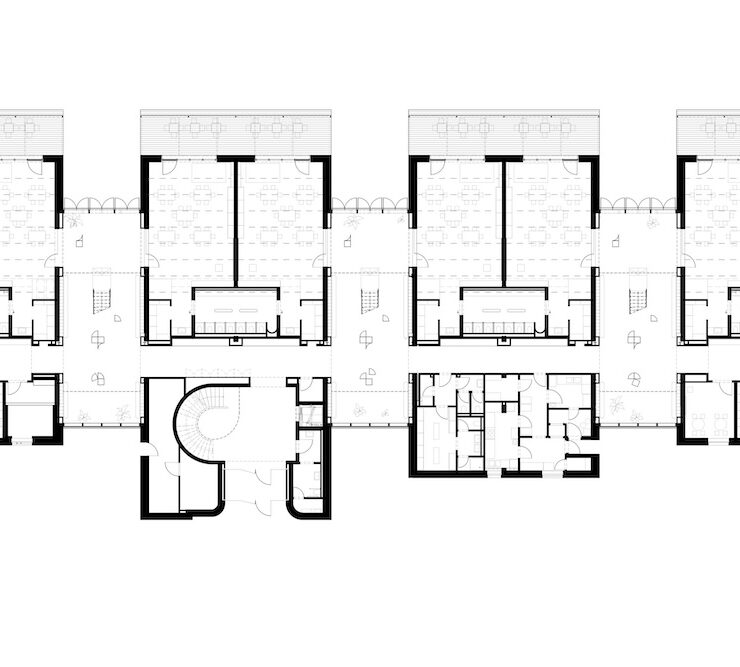
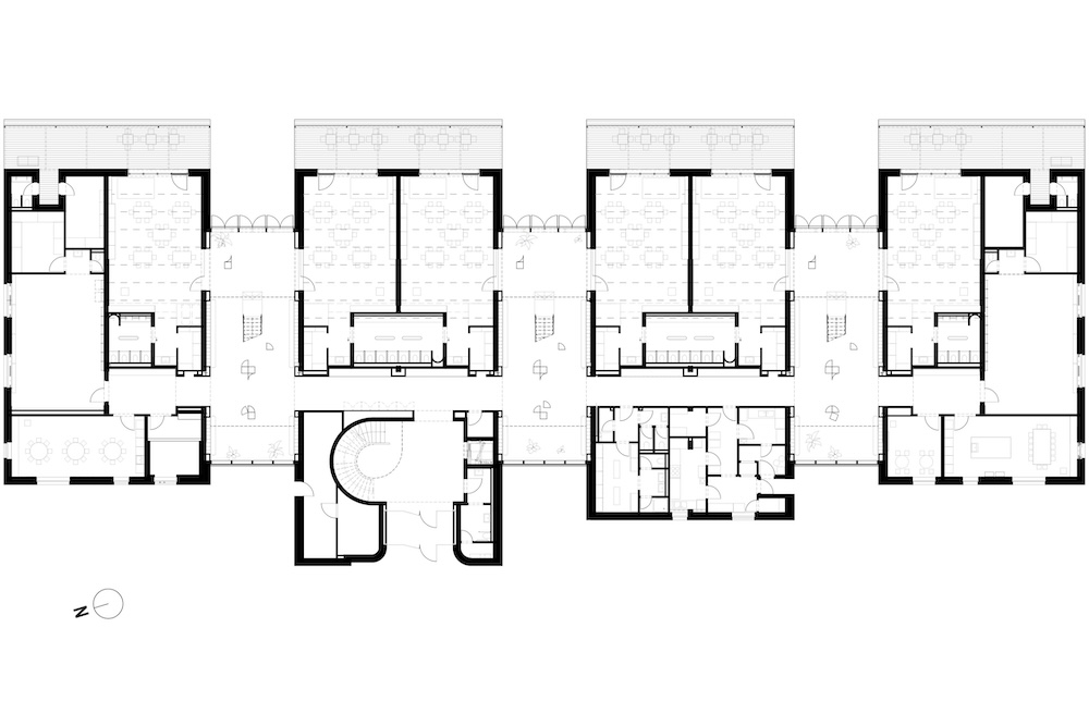
L’edificio originario a un solo piano, costruito in prefabbricazione pesante negli anni Settanta, versava in condizioni di degrado. Il progetto ha dato una risposta ai problemi funzionali, agli ambienti interni ridotti, alla mancanza di spazi comuni e collegati tra loro, alla scarsa organizzazione della circolazione, oltre alla necessità di modernizzazione energetica e accessibilità.

Oltre alle dieci aule, trovano posto ambienti per attività motorie, creative e culinarie, pensati per sviluppare abilità individuali e sociali.
Gli affacci verso il cortile e gli arredi ludici ispirati a forme geometriche rendono l’insieme parte di un paesaggio educativo in continuità con il parco.

Le ampie aperture e l’uso calibrato della luce naturale contribuiscono a dissolvere il peso materico dell’edificio originario, restituendo un’immagine contemporanea e accogliente.
La facciata principale è arricchita da un’opera d’arte smaltata a fuoco.

Completata nel 2024, la nuova Gyöngyszem Kindergarten occupa 2.860 metri quadrati e dimostra la possibilità di riqualificare strutture obsolete, trasformandole in spazi funzionali e luminosi senza cancellarne la memoria costruttiva.
Arkiton Architects
Fondato a Budapest nel 1989, Archikon Architects è oggi uno degli studi di riferimento in Ungheria per la capacità di reinterpretare edifici esistenti, unendo rispetto per la struttura originaria e linguaggio contemporaneo.
Guidato da Csaba Nagy e Károly Pólus, lo studio lavora su edifici pubblici, sociali, educativi, residenziali e a uso misto, in ambito sia privato sia pubblico.
La ricerca progettuale è orientata verso soluzioni innovative per comunità e spazi collettivi, con particolare attenzione alla sostenibilità e alla qualità della vita urbana.
Tra le realizzazioni recenti si distinguono il restauro della Paris Court, le scuole Gyöngyszem e Vizafogó, oltre a interventi in corso su edifici storici di Budapest come l’hotel Gellért, il mercato di Hunyadi Square e il palazzo di Giustizia e ministero dell’Agricoltura.