+4 Casa EC, la residenza modulare di Alfredo Vanotti ai piedi delle Alpi
Alfredo Vanotti (Atelier EV+A lab) ha completato un edificio residenziale ai margini di un piccolo comune ai piedi delle Alpi Retiche, in un’area circondata da prati e boschi: un’abitazione unifamiliare in grado di valorizzare appieno le caratteristiche del terreno, in particolare la vista sul fondovalle e sul paesaggio montano.

Il progetto prevedeva la demolizione di un piccolo magazzino in pessimo stato di conservazione e la realizzazione di uno nuovo edificio a uso residenza unifamiliare. La normativa imponeva la parziale sovrapposizione del nuovo fabbricato sul sedime esistente, e l’esigenza era quella di collocare il più possibile al centro del terreno la nuova residenza per sfruttare al meglio il giardino e il panorama, allontanandosi nel contempo dalla strada comunale.

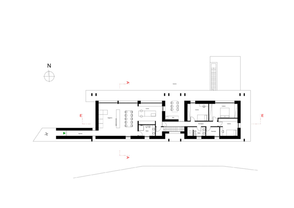
Per questo Alfredo Vanotti ha scelto di sviluppare il progetto suddividendo i 150 metri quadrati dello sviluppo in quattro blocchi secondo una ripetizione A-B-A-B: un tunnel di ingresso, un corpo di fabbrica adibito a zona giorno, un tunnel di collegamento tra zona giorno e notte, un corpo di fabbrica adibito a zona notte.

La modulazione A-B-A-B ha permesso di rendere l’edificio più centrale rispetto al lotto e di dare un ordine alla composizione architettonica. I tunnel di ingresso e collegamento a tetto piano hanno le medesime volumetrie, così come i corpi di fabbrica realizzati con copertura a un solo spiovente.
I diversi tipi di copertura esprimono una netta distinzione tra spazi vivibili e spazi di servizio/passaggio.

Nel primo volume costruito si trova la zona giorno costituita da soggiorno, cucina, pranzo e bagno mentre nel secondo è collocata la zona notte costituita da tre camere, studio e bagno.
In entrambi, grandi aperture inquadrano il paesaggio circostante e permettono di goderne il cambiamento nel corso delle ore e delle stagioni.

Per disporre di aperture più alte adatte a inquadrare il paesaggio è stata prevista, per gli spazi abitativi, una copertura a un solo spiovente appoggiata su pilastri in cls armato a vista. Le colonne sono alleggerite da elementi di carpenteria che, in particolari condizioni di luce, fanno percepire la copertura quasi sospesa nell’aria.








