Un foglio di carta ripiegato su se stesso. È da questo (a prima vista) semplice spunto progettuale che lo studio torinese Archicura è partito per definire l’intervento di riqualificazione e ampliamento de L’Artigiana, ormai storica azienda grafica sorta ad Alba nel 1971 come piccolo laboratorio tipografico. Il nuovo edificio amministrativo, che sostituisce alcuni box prefabbricati in metallo anteposti all´edificio industriale della tipografia realizzato in lastre di c.a. prefabbricato, è definito da un involucro “a guscio” rivestito da laminati in zinco-titanio Rheinzink.


Nelle immagini, l’ingresso vetrato e il fianco del nuovo edificio degli uffici tecnico-amministrativi della società tipografica L’Artigiana. Le superfici esterne del volume sono rivestite da lastre Rheinzink in zinco-titanio (foto ©Pepe Fotografia).
Il disegno obliquo delle pareti opache è interrotto da squarci trasparenti che lasciano intravedere gli ambiti di lavoro interni disposti su tre livelli, oltre a un piano interrato destinato a magazzino. Disposte in posizione arretrata rispetto alle pareti dell’involucro per ridurre l’irraggiamento solare diretto, le superfici vetrate sono fisse e senza telai di bordo ad eccezione di alcune sezioni apribili necessarie per la ventilazione diretta degli interni. Le superfici trasparenti sono realizzate con vetri a carattere basso emissivo con stratificazione di sicurezza ottenuta mediante l’interposizione di fogli in PVB da 0,75 mm trasparenti, che assicurano protezione in caso di caduta a seguito di eventuali incidenti.



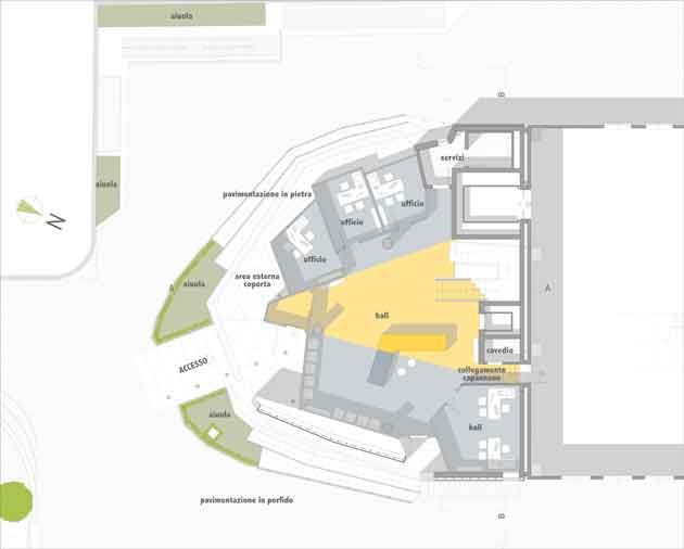
Dall´alto, pianta del piano terra, prospetto est e sezione dell´edificio
Il rivestimento metallico dell’involucro esterno, di colore grigio intenso e che varia secondo le condizioni di luce, è realizzato con strisce di diversa altezza disposte a correre con graffature continue e schiacciate per seguire perfettamente la modellatura delle superfici perimetrali. Raggiungibile attraverso un ascensore estradosso, la copertura piana è rivestita da piastrelle galleggianti a graniglia bianca con impermeabilizzazione a tetto rovescio ed è delimitata da parapetti opachi e da ringhiere metalliche con fili sottili a trefolo. Le pavimentazioni esterne al piano terra sono in porfido e si riallacciano visivamente alle tonalità fredde del rivestimento in zinco, mentre per gli interni sono stati scelti pavimenti in materiale plastico nelle tonalità blu intenso e rosso ruggine che accentuano la qualità grafica degli ambienti.

La hall d’ingresso al piano terra (foto ©Pepe Fotografia).