Comillas House, la storia continua
Comillas House, la storia continua
Comillas House, la storia continua
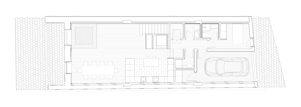
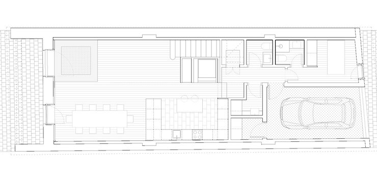
A Comillas, sulla costa settentrionale della Spagna, è stato recentemente completato il restauro di un edificio storico, la Comillas House, a opera dell’architetto Jacobo García-Germán e del suo studio GarciaGerman Arquitectos.
La località è stata, dalla fine del XIX secolo, un importante centro di villeggiatura per l’aristocrazia spagnola, passato che ha arricchito la cittadina di edifici di pregio architettonico. Il più noto dei quali è El Capricho o Villa Quijano, progettato nel 1883 da Antoni Gaudí e ora museo aperto al pubblico. Non lontana, e in parte legata a questo testimone del passato della città, è la residenza baronale Comillas House. La casa, costruita alla fine del XIX secolo, è infatti appartenuta ad Antonio Bona, il capomastro italiano che seguì i lavori di costruzione di El Capricho.

Nel progetto di ristrutturazione della residenza, García-Germán ha reinterpretato il rapporto con la preesistenza, adattando la casa alle nuove esigenze dei committenti, una famiglia numerosa. Valorizzando la pianta caratteristica e tipica di questi lotti, nati originariamente per scopi rurali, l’architetto ha organizzato le funzioni della casa distribuendole lungo i quattro piani dell’edificio in modo inusuale.

L’inversione nella distribuzione delle funzioni della casa ha permesso anche di organizzare in modo giocoso gli spazi. La cucina con zona pranzo è al pianoterra e al livello intermedio sono le camere da letto. Infine, al livello superiore, l’architetto ha progettato il soggiorno a doppia altezza che gode di studiate e ricercate vedute panoramiche verso le montagne della catena del Picos de Europa e verso il mar Cantábrico.

In questo modo la parte più chiusa della casa, con le pareti in pietra, corrisponde agli ambienti che necessitano di maggior privacy. All’interno l’architetto contrappone ai toni scuri e alla matericità delle pareti in pietra, le finiture e i rivestimenti più leggeri in legno naturale e toni pastello.
Sono stati inoltre recuperati e ricollocati in situ alcuni pezzi originali tra cui le piastrelle smaltate provenienti da El Capricho. Insieme al progetto dei nuovi camini, Jacobo García-Germán ha usato questi elementi per rafforzare il legame con la memoria storica del luogo.

GarciaGerman Arquitectos

Fondato nel 2003 da Jacobo García-Germán lo studio, con sedi a Madrid e Santander, opera una stretta connessione tra l’attività di studio e di ricerca e la pratica della costruzione, nella convinzione che l’architettura sia in primo luogo un’attività culturale il cui fine è di aggiungere valore all’ambiente costruito e alle persone che lo vivono.
Ad oggi lo studio ha sviluppato 45 progetti alle diverse scale e ricevuto 22 premi in concorsi nazionali e internazionali di architettura. Tra i committenti, il Ministerio de Fomento, Ministerio de Hacienda y Administraciones Públicas, le ambasciate di Spagna a Lubjana e Sofia, l’ambasciata d’Italia in Spagna, l’assessorato alla casa e al territorio di Madrid, la Universidad Politécnica de Madrid, la Diputación de Cantabria, Excmo.
Dal 2005 Jacobo García-Germán, laureato in architettura nel 2000 al Politecnico Etsam di Madrid, master all’AA nel 2003 e nel 2010 European PhD architect Cum Laude, insegna all’Etsam dopo essere stato visiting professor in numerose università europee e americane.
Prima di fondare GarciaGerman Arquitectos ha lavorato presso lo studio di Rafael Moneo. È stato membro del comitato scientifico del padiglione spagnolo alla XV Biennale di Architettura di Venezia, premiato nel 2016 con il Leone d’Oro.
Dal 2017 è co-direttore di Arquitectura-COAM, il periodico ufficiale dell’Associazione degli Architetti di Madrid