Con il Cohen Quad Alison Brooks reinventa la tipologia del college inglese
Con il Cohen Quad Alison Brooks reinventa la tipologia del college inglese
Con il Cohen Quad Alison Brooks reinventa la tipologia del college inglese
Con il Cohen Quad Alison Brooks reinventa la tipologia del college inglese
Con il Cohen Quad Alison Brooks reinventa la tipologia del college inglese
Con il Cohen Quad Alison Brooks reinventa la tipologia del college inglese
Con il Cohen Quad Alison Brooks reinventa la tipologia del college inglese
Con il Cohen Quad Alison Brooks reinventa la tipologia del college inglese
Con il Cohen Quad Alison Brooks reinventa la tipologia del college inglese
Con il Cohen Quad Alison Brooks reinventa la tipologia del college inglese
L’ampliamento dell’Exeter College a Oxford, progettato dallo studio di Alison Brooks – per inciso, è la prima volta in 700 anni che un college di Oxford viene progettato da un architetto donna – dà vita a un luogo di apprendimento e di residenza studentesca luminoso, spazioso e dove è piacevole condividere momenti di studio e di socialità. È anche la prima volta che studio e residenza convivono, integrati nel medesimo edificio.

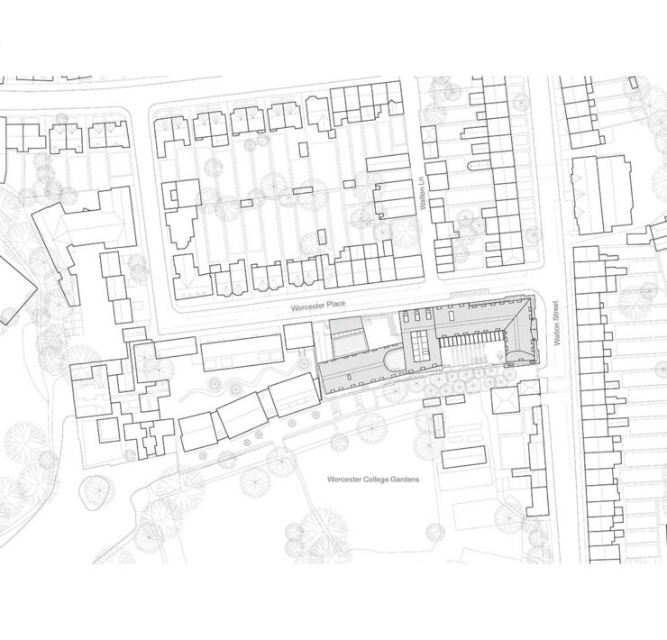
Al contrario della rigida logica a corte dei college inglesi, ereditata dai conventi medievali, il ‘Cohen Quad’ di Alison Brooks Architects si sviluppa con una pianta a S che dà luogo a due cortili, da una parte per la necessità di seguire la forma stretta e allungata del lotto e dall’altra per aprire gli spazi dell’edificio alla luce e alla città.
L’estensione ingloba la facciata tutelata (Grade II) del vecchio Ruskin College, risalente al 1913, che assume la copertura curva in scaglie romboidali di acciaio inossidabile anodizzato Rimex che come un mantello diventa elemento unificante l’intero edificio, e la cui tecnica di costruzione trae ispirazione dal movimento Arts and Crafts guidato da William Morris, che all’Exeter College si era laureato.

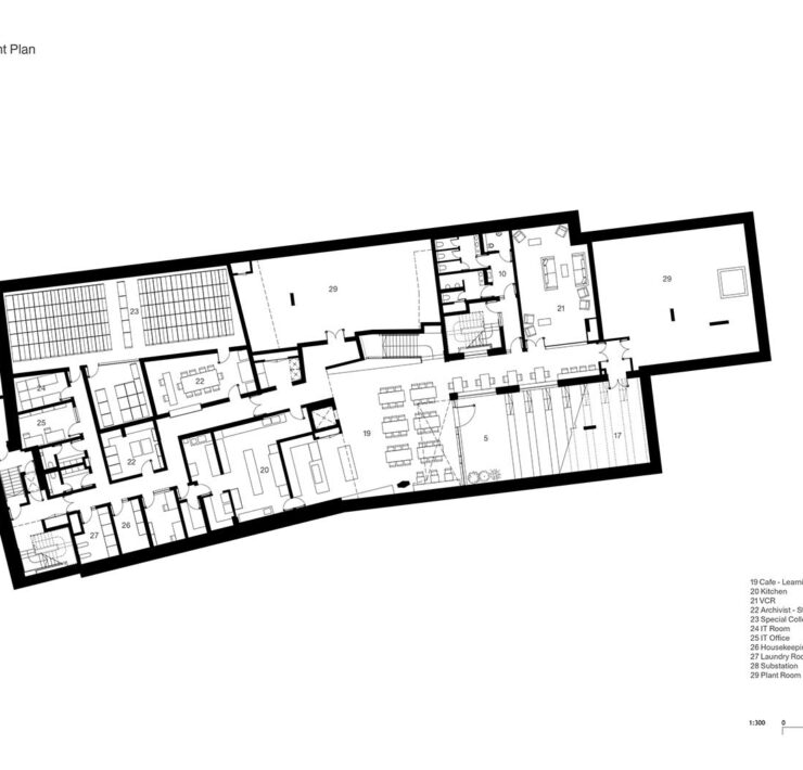
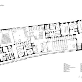
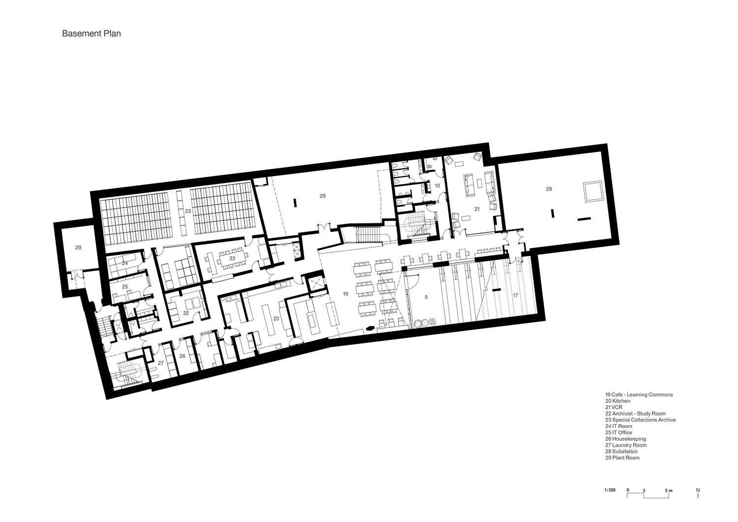
All’ingresso del vecchio Ruskin College, su Walton Street, studenti e visitatori vengono accolti da una sorta di moderno chiostro definito da una successione di archi in legno che li conduce al Learning Commons, luogo di accoglienza e di studio collettivo provvisto di una caffetteria a doppia altezza, un luminoso angolo rivolto verso l’anfiteatro all’aperto e una scala a spirale che collega i quattro piani.

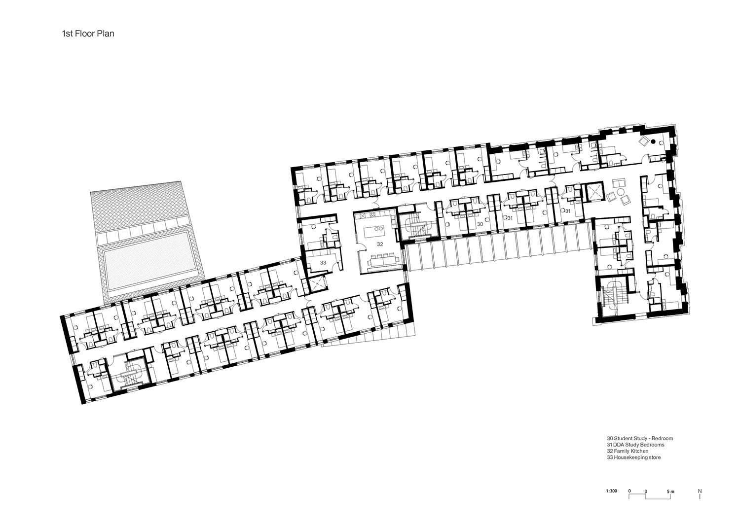
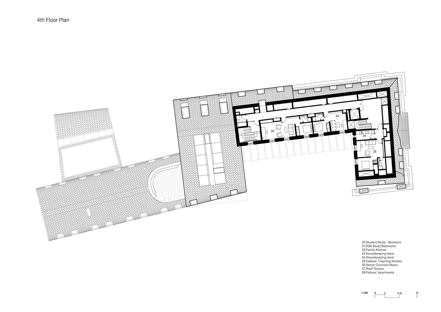
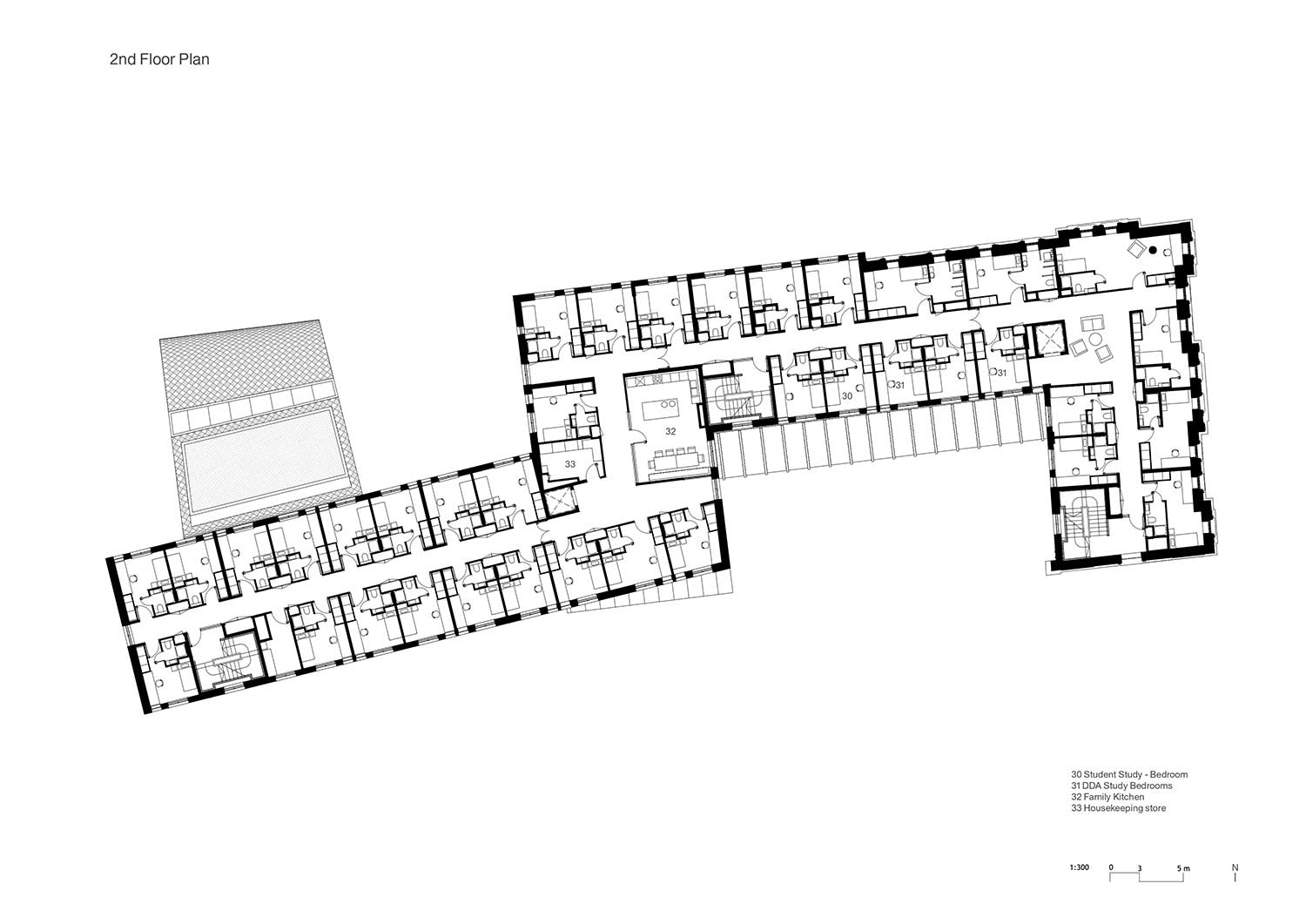
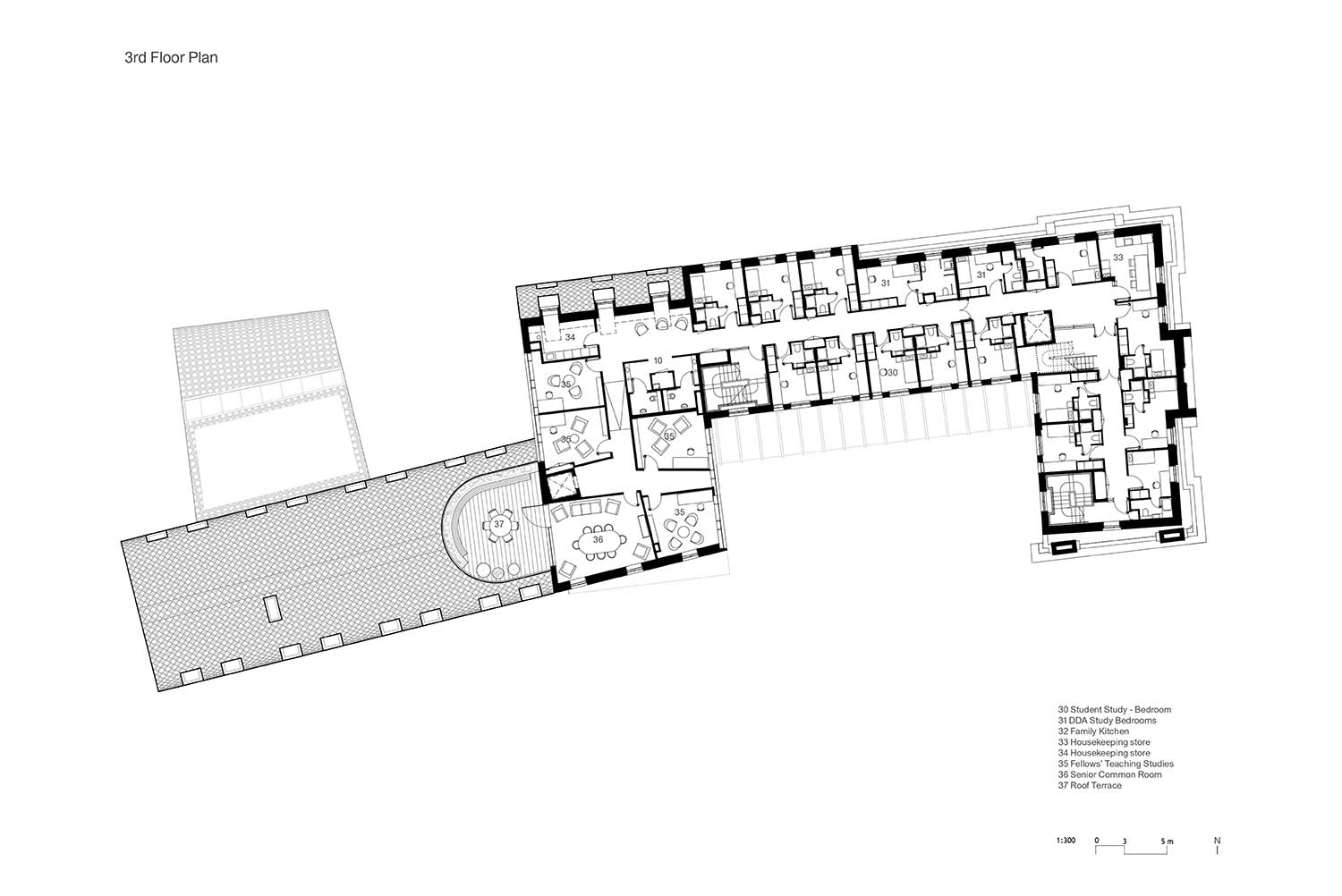
Virtualmente autosufficiente, l’edificio offre una varietà di spazi pubblici e privati, tra cui aule per seminari, uffici, una lavanderia e cucine a isola con tavoli da pranzo per 16 persone ad ognuno dei quattro piani occupati dalle residenze per un totale di 90 studenti e docenti.

Le camere sono progettate con arredi integrati in legno di ciliegio, luce naturale, armadiature e bagni compatti. Quelle più ampie, con una porta accessibile anche con sedia a rotelle, occupano una posizione privilegiata all’angolo, con finestre che si affacciamo su Worcester Place, mentre gli studi dei borsisti sono collocati in spazi soppalcati sotto il tetto curvo.

Al terzo piano, cinque aule per la ricerca e l’insegnamento sono raggruppate intorno a una luminosa Senior Common Room che si apre su una terrazza esposta a sud formata da un taglio sinuoso praticato nel tetto.

All’angolo nord-ovest del piano terra, il Fitzhugh Auditorium, un luminoso spazio polifunzionale da 110 persone con un tetto curvo in legno lamellare che riceve luce da sud, si affaccia sulla strada pubblica.

Per assicurare longevità e per migliorare la compatibilità ambientale dell’edificio lo studio Alison Brooks Architects ha scelto di fare ricorso a pochi materiali: cemento a vista a ridotta impronta di carbonio e pannelli di cemento rinforzato; pietra arenaria locale (analoga a quella degli edifici circostanti), legno di ciliegio, pavimenti in Jatoba e ferramenta in ottone. I portali del chiostro e la copertura dell’auditorium sono in legno lamellare di abete rosso.
L’approccio “fabric first” dello studio ha inoltre portato a realizzare un involucro altamente performante, con perdite di calore minime, mentre le dimensioni degli spazi, l’altezza del piano terra e finestre ad apertura manuale favoriscono la ventilazione naturale degli ambienti, limitando il ricorso all’aria condizionata, presente solo nell’auditorium e nello spazio del Learning Commons.
Dotato anche di pannelli solari per la produzione di acqua calda sanitaria, il Cohen Quad è Classe B dell’Uk Energy Performance Certificate.
L’edificio, di quasi 6.000 metri quadrati, è stato completato nel 2020 con un investimento di 29,5 milioni di sterline interamente finanziato con il programma di fundraising dell’Exeter College.

Crediti
- Località Oxford
- Committente Exeter College, Oxford
- Progetto architettonico Alison Brooks Architects
- Progetto strutture Civic
- Progetto impianti Max Fordham
- Landscape design Dan Pearson Studio
- Lighting Design Arup Lighting/Alison Brooks Architects
- Conservazione e restauro Richard Griffiths Architects
- Consulente per il patrimonio culturale Asset Heritage Consultant
- Contractor Mace
- Fornitore arredi Twentytwentyone
- Slp 5.500 mq
- Completamento 2020
Alison Brooks Architects

Fondato nel 1996 da Alison Brooks, che lo guida, lo studio di Londra ritiene che la ricerca culturale sia il primo strumento per dare vita a nuove espressioni architettoniche. A tutte le scale e funzioni, le opere dello studio si caratterizzano per un linguaggio progettuale scultoreo.
Alison Brooks è diventata una voce ascoltata nel dibattito intorno alla professione, al ruolo delle donne in architettura, al ritorno a pratiche di artigianato nelle costruzioni e al valore del legno come materiale per progetti a ridotta impronta ambientale.
Attualmente Alison è Gensler Visiting Critic presso la Cornell’s Architecture Art Planning School di Ithaca (Usa) e ha ricevuto il Bethune Award dall’Università di Buffalo. Tiene conferenze a livello internazionale e fa parte di giurie di concorsi internazionali di design.
Alison Brooks considera l’architettura come un’arte sociale e un dialogo culturale creativo che offre nuove forme di identità civica.
Ciò ha portato a oltre settanta riconoscimenti per la qualità del design, tra cui Dezeen Architect of the Year 2020 e BD Housing Architect of the Year 2020.
Alison Brooks Architects è l’unico studio del Regno Unito ad aver vinto sia il RIBA Stirling Prize (con Feilden Clegg Bradley Studios e Maccreanor Lavington) sia la Manser Medal e lo Stephen Lawrence Prize.