Il centro conferenze di Ji Jia Dun, tra interno ed esterno
Il centro conferenze di Ji Jia Dun, tra interno ed esterno
Il centro conferenze di Ji Jia Dun, tra interno ed esterno
Il centro conferenze di Ji Jia Dun, tra interno ed esterno
Il centro conferenze di Ji Jia Dun, tra interno ed esterno
Il centro conferenze di Ji Jia Dun, tra interno ed esterno
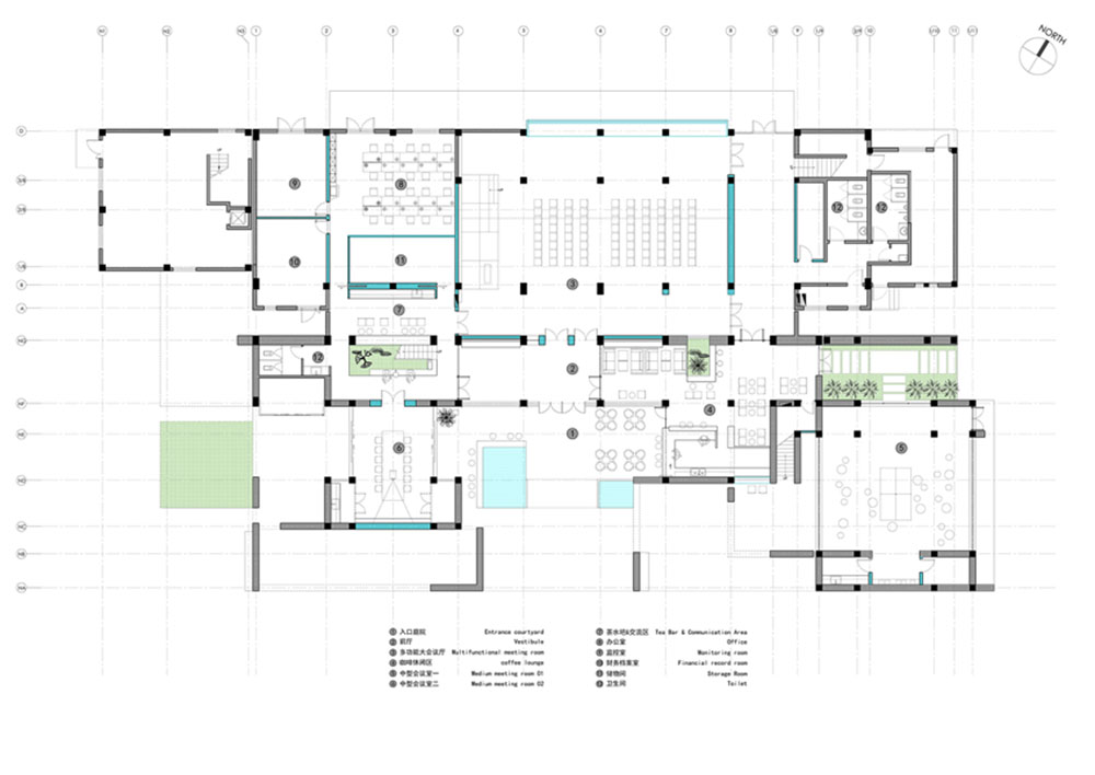
Nel villaggio di Ji Jia Dun nei pressi di Kunshan, a 70 chilometri da Shanghai, quella che era la sede degli uffici del comitato cittadino del popolo è stata trasformata da y.ad studio in un moderno centro conferenze.

L’intenzione del committente, la Kunshan Xband Jijiadun Cultural Development Co, è stata fin da subito quella di ottenere un radicale aggiornamento funzionale ed estetico pur limitando le demolizioni e massimizzando il riutilizzo dei materiali e delle pareti.
Durante l’indagine del sito, gli architetti di y.ad studio sono stati colpiti dall’armoniosa fusione tra spazi interni ed esterni, architettura e natura. Di conseguenza, il team ha deciso di mantenere il più possibile la forma originale dell’edificio, concentrandosi sullo spazio esistente dell’atrio che confonde i confini tra interno ed esterno.

Il primo passo è stato quello di ridefinire l’ingresso eliminando i confini tra spazi interni ed esterni, in modo che si potesse entrare nell’edificio da qualsiasi direzione.
In secondo luogo, lo spazio di 2.200 metri quadrati e i percorsi di circolazione sono stati ridistribuiti. Al secondo piano, il ristorante esistente è stato conservato e le sale conferenze di varie dimensioni sono state riconfigurate.
Sul lato nord, il corridoio originale semi-esterno è stato incorporato all’interno per formare un grande spazio conferenze multifunzionale.

Lo studio ha voluto creare più connessioni tra la sala conferenze multifunzionale e l’atrio. Nel muro che separa i due ambienti con uno spessore di 60 cm sono state ritagliate aperture verticali e orizzontali per creare cornici con diversi angoli di visuale, con l’obiettivo di creare un effetto visivo di ‘vedere ed essere visti’ nello spazio. In questo modo, gli spazi diventano più fluidi e interconnessi.
Le passerelle interne ed esterne e la corte esterna sono stati trasformati in spazi di transizione in cui interni ed esterni si intrecciano, così che l’architettura si fonda con la natura.

Inizialmente era previsto che le colonne di cemento grezzo della sala conferenze venissero demolite. Sono state invece mantenute perché creano un impatto visivo piacevole e inaspettato.
Il progetto quindi valorizza i materiali preesistenti: cemento, pavimentazione a ‘terrazzo’, legno di quercia, e aggiunge l’alluminio perforato utilizzato per i pannelli fonoassorbenti nella zona ristorazione.

y.ad studio

Fondato da Yan Yang (foto) nel 2017, lo studio di Shanghai y.ad studio lavora per offrire soluzioni integrate a tutte le scale, dal product design alla pianificazione urbana, con una particolare attenzione al settore della riqualificaizone urbana e della trasformazione di complessi esistenti.
L’analisi dei luoghi e l’attività di riflessione e ricercca dello studio sono finalizzati a rompere gli stereotipi esistenti per promuovere l’armonica coesistenza di architettura, ambiente e individui.







