La nuova architettura cinese valorizza la storia e la memoria. Y.ad studio a Bishan
La nuova architettura cinese valorizza la storia e la memoria. Y.ad studio a Bishan
La nuova architettura cinese valorizza la storia e la memoria. Y.ad studio a Bishan
La nuova architettura cinese valorizza la storia e la memoria. Y.ad studio a Bishan
La nuova architettura cinese valorizza la storia e la memoria. Y.ad studio a Bishan
La nuova architettura cinese valorizza la storia e la memoria. Y.ad studio a Bishan
La nuova architettura cinese valorizza la storia e la memoria. Y.ad studio a Bishan
La nuova architettura cinese valorizza la storia e la memoria. Y.ad studio a Bishan
La nuova architettura cinese valorizza la storia e la memoria. Y.ad studio a Bishan
La nuova architettura cinese valorizza la storia e la memoria. Y.ad studio a Bishan
La nuova architettura cinese valorizza la storia e la memoria. Y.ad studio a Bishan
La nuova architettura cinese valorizza la storia e la memoria. Y.ad studio a Bishan
A Bishan, nella contea di Yi, nel sud-est della provincia cinese di Anhui, y.ad studio ha progettato un hotel che valorizza, riordinandola e integrandola con funzionalità moderne, la tradizionale architettura Hui.
Il Bishan Hotel sorge al centro di un villaggio ricco di storia e cultura. Il sito è circondato dai tradizionali edifici in stile Anhui: una miscela di vecchio e nuovo, alcune costruite secoli fa durante le dinastie Ming e Qing, altre costruite di recente.

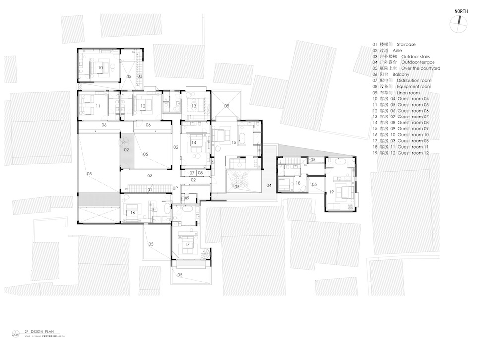
Per raggiungerlo è necessario percorrere le vie strette e tortuose di Bishan. Privo di accesso veicolare, disposto su un terreno irregolare, con spazio limitato e visuali ristrette, il progetto ha trasformato questi vincoli nell’opportunità di creare ambienti appartati e introversi, trasportando all’interno, con corti e patii, il tessuto urbano tradizionale e chiudendo il complesso verso l’esterno per assicurare privacy e tranquillità agli ospiti.

Mentre il progetto iniziale era quello di creare un edificio moderno in netto contrasto con le costruzioni circostanti, le autorità locali hanno chiesto di incorporare elementi architettonici in stile Hui per preservare lo stile e le caratteristiche del villaggio.
È stato quindi concepito un edificio che eredita il nucleo spirituale dell’architettura in stile Hui, integrando elementi architettonici tradizionali con forme e stili di vita moderni.

Considerando la loro versatilità e compatibilità, i mattoni grigi sono stati utilizzati come materiale da costruzione principale per fondersi con gli edifici tradizionali circostanti, integrati da mattoni di vetro che portano luce e leggerezza agli ambienti.
Alcuni elementi pre-esistenti – un albero di magnolia di 200 anni e un antico pozzo – sono stati conservati, inserendo patii in ciascun blocco edilizio e tra di essi. Questo approccio consente una transizione senza soluzione di continuità tra l’interno e l’esterno degli edifici e una connessione armoniosa con la natura che, data la collocazione urbana, è stata portata all’interno del complesso.

Considerata come materia dell’architettura, la luce gioca un ruolo cruciale nel modellare lo spazio e nell’evocare un senso del tempo con il suo costante mutamento nel corso del giorno e delle stagioni.
Cortili e patii sono parte integrante dell’hotel, garantendo un’ampia illuminazione interna. Oltre alle pareti di vetro-mattone, lucernari e griglie di varia forma contribuiscono alla creazione di diverse atmosfere spaziali.

Nella zona di Huangshan, tetti e timpani a gradoni sono onnipresenti e simboleggiano l’architettura in stile Hui, e anche se Yan Yang, a capo di y.ad studio, afferma di non essere propenso a incorporare elementi storici nei nuovi edifici «perché ci si dovrebbe concentrare sull’adozi0ne di metodi contemporanei piuttosto che sulla replica delle pratiche del passato», in questo caso, cogliendo il fascino del villaggio, con le chiacchiere degli abitanti, il profumo del cibo e l’odore dei forni a legna, ha modellato lo spazio utilizzando il linguaggio e la forma contemporanei per entrare in simbiosi con il patrimonio culturale esistente.

Una singolarità del progetto è rappresentata dall’area della reception, posta al centro del complesso anziché all’ingresso. Stimolando in questo modo un senso di curiosità tra gli ospiti che, appena giunti, si trovano ad attraversare spazi differenti lungo un percorso che, seppur breve, con svolte e transizioni si rivela sorprendente e consente loro di acquistare subito familiarità con la struttura e percepire la diversità e la ricchezza degli spazi.
Negli interni, per garantire la necessaria tranquillità e riservatezza, è stato progettato un layout introverso che isola l’edificio dal mondo esterno. E così ogni camera mantiene una relativa indipendenza, e per i momenti di tranquillità è stata progettata una serra sul tetto, silenziosa e appartata.