Il nuovo Kunsthaus Zürich di David Chipperfield Architects
Con la nuova estensione progettata dallo studio berlinese di David Chipperfield e da poco completata, il Kunsthaus di Zurigo diventa il maggiore museo d’arte svizzero.
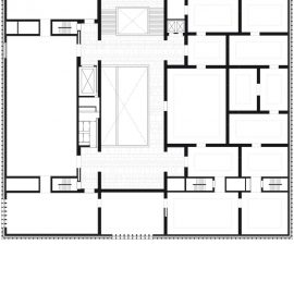
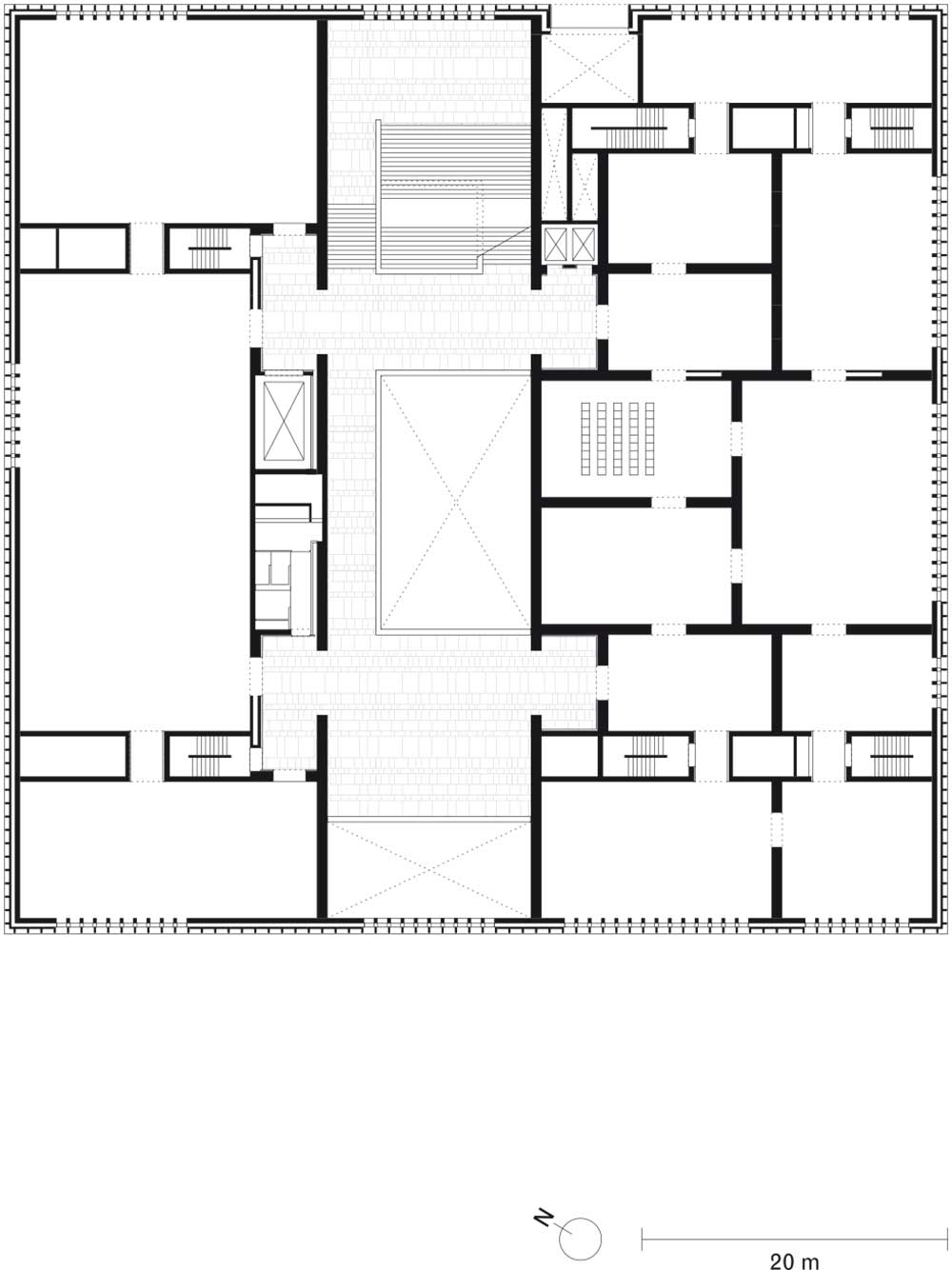
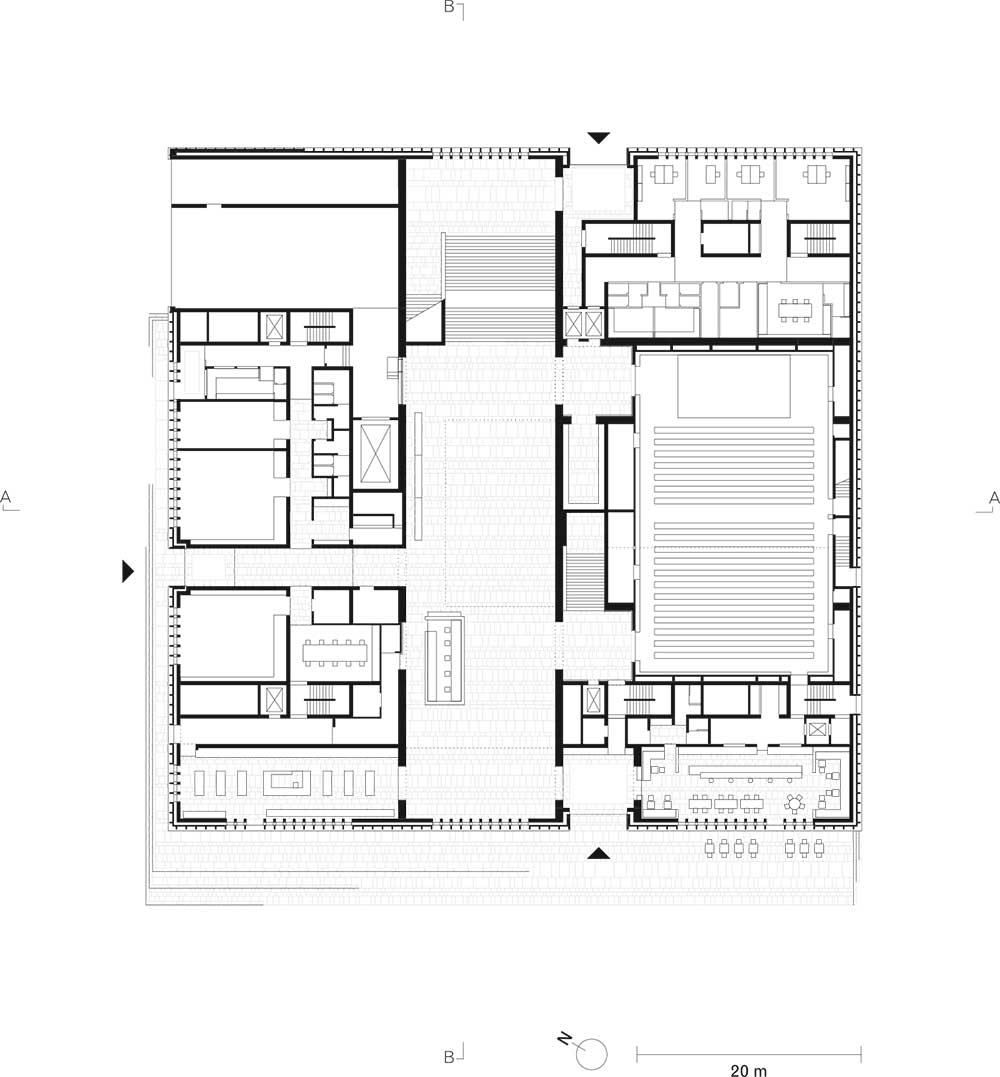
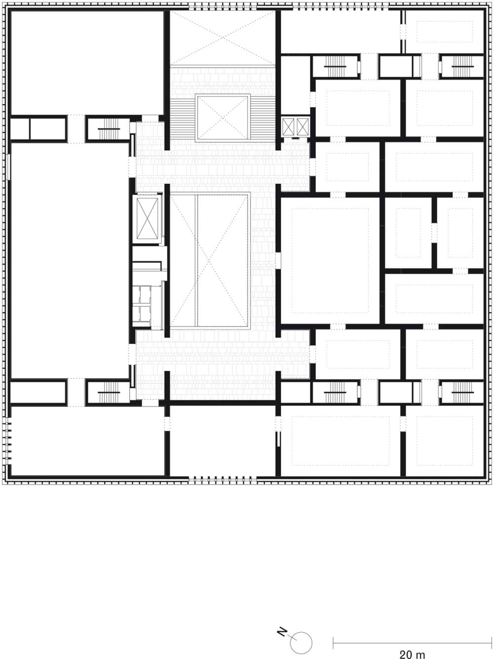
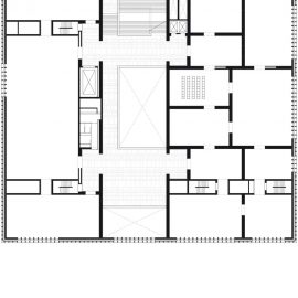
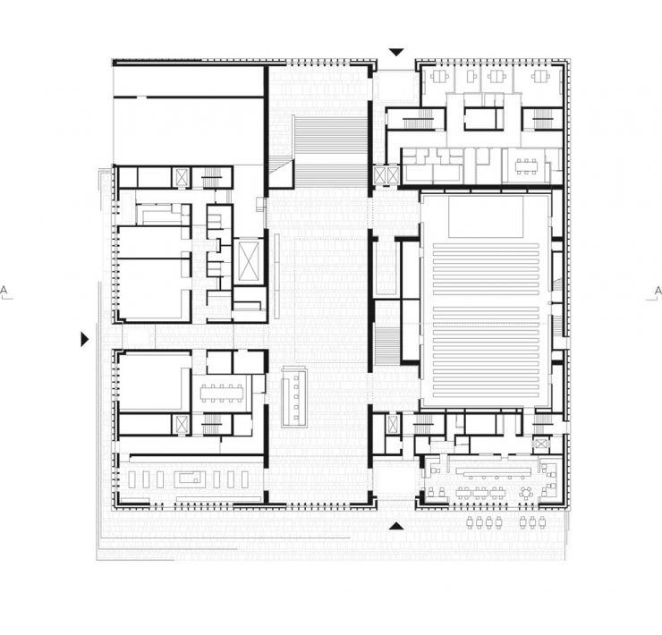
Il preciso volume geometrico – 64 metri di lato – che si eleva nella Heimplatz a nord del complesso attuale – ospiterà la collezione del moderno classico, la collezione E.G. Bührle, arte dagli anni Sessanta a oggi e mostre temporanee.

La nuova architettura trae ispirazione dalla vecchia scuola cantonale del 1842 collocata a nord del sito, che con la sua chiarezza architettonica definisce la cornice urbana del perimetro. Il masterplan – approvato nel 2007 – definisce due nuovi spazi pubblici: una piazza urbana verso sud, di fronte al museo esistente e alla Schauspielhaus, e il nuovo Giardino dell’Arte a nord come ambiente aperto e naturale.
Un percorso sotterraneo aperto ai visitatori collega il nuovo edificio al complesso esistente, dando luogo a un’unica entità museale.

L’identità architettonica è modellata da prospetti in pietra analoghi a quelli del museo esistente e di molti edifici pubblici di Zurigo, ed esprime perciò una cultura costruttiva caratteristica dell’illuminata società civile della città.
D’altra parte, l’innovazione si esprime nelle esili lame verticali in arenaria locale tagliate a sega che scandiscono la facciata, inserendo in maniera contemporanea l’edificio nel contesto urbano e culturale del luogo.

L’organizzazione interna si basa sul concetto di ‘stanze da abitare’ e si esprime nel design differente degli ambienti in termini di dimensioni, orientamento, materialità e luce, dando a ognuno un proprio carattere e creando una sequenza diversificata di spazi.



L’edificio rimarrà aperto al pubblico per tutto il mese di maggio prima di essere chiuso di nuovo per i lavori di allestimento.
L’apertura ufficiale dei nuovi spazi espositivi è fissata per ottobre.