Il progetto di EXiT e Squared di restauro e riuso di un palazzo del Cinquecento
Il progetto di EXiT e Squared di restauro e riuso di un palazzo del Cinquecento
Il progetto di EXiT e Squared di restauro e riuso di un palazzo del Cinquecento
Il progetto di EXiT e Squared di restauro e riuso di un palazzo del Cinquecento
La riconversione a co-working di un palazzo cinquecentesco del centro di Treviso, costruito nel Cinquecento come abitazione di un capitano di ventura vassallo del re di Francia, è stata per EXiT l’occasione per approfondire la storia centenaria di una parte di città. Già residenza di nobili famiglie l’edificio divenne in seguito magazzino, palazzotto, casa e bottega fino a essere distrutto da un bombardamento nel 1944. Ricostruito nel dopoguerra, fu destinato per decenni a centro di formazione scolastica, poi a ufficio igiene, e infine a patronato.

Il primo passo del progetto dello studio di Treviso ha risposto alle esigenze di eliminare le integrazioni incoerenti con la storia dell’edificio, di consolidare la struttura originale, di darne una lettura più chiara e di riscoprire alcuni antichi affreschi sulla facciata principale, secondo lo spirito della città, detta anche Urbs picta per i suoi numerosi edifici affrescati.

Il tetto, elemento strutturale di grande rilevanza grazie alla sua particolare costruzione a croce, rappresenta un unicum nel territorio per l’ampiezza e la lunghezza delle travature. Il recupero dei dipinti delle facciate è stato affidato a una referenziata società di restauri storici e conservativi che li ha riportati al loro pregio originale.

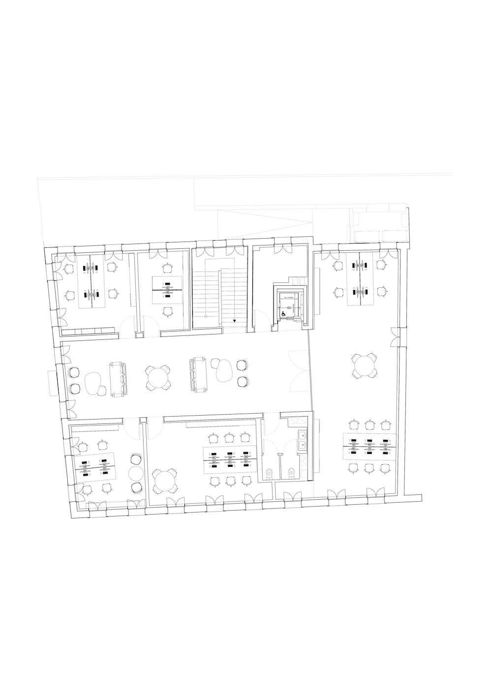
Il nuovo nome attribuito all’edificio, Palazzo della Luce, ne sottolinea la vocazione pubblica. Nella forma d’uso totalmente rinnovata l’architettura e la spazialità originaria si incontrano con la contemporaneità legata alla destinazione di co-working nel progetto degli interni, curato dallo studio inglese Squared Architects.

All’interno, il piano terra è dedicato ad ampie sale per formazione ed eventi. Il primo e secondo piano sono adibiti a uffici arredati, postazioni, sale meeting. Al primo livello si trova infine una caffetteria.

Crediti di progetto
Località Treviso
Committente Infinite Srl
Progetto architettonico EXiT
Team di progetto Francesco Loschi, Giuseppe Pagano, Paolo Panetto
Collaboratori Shutong Fan, Emily Manias, Hans Ye
Direzione lavori Francesco Loschi
Strutture Giorgio Basso, Giovanni Lazzaro
Progettazione impianti Alessio Borgo, Daniele Piccolo
Progetto restauro della facciata Rossella Riscica
Interior design Squared Architects
Lighting design Stingers
Acustica Lorenzo Soligo
Contractor Costruzioni Bordignon
Cronologia 2019-2021




