Il progetto di Jahn per i nuovi archivi del museo di storia militare Pritzker
Il progetto di Jahn per i nuovi archivi del museo di storia militare Pritzker
Il progetto di Jahn per i nuovi archivi del museo di storia militare Pritzker
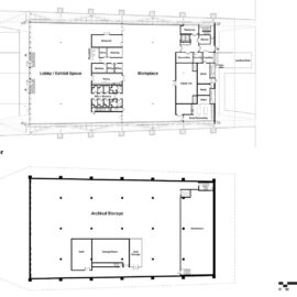
La crescita del materiale di archivio del Pritzker Military Museum & Library rendeva necessario il suo trasferimento in un nuovo edificio. Per realizzarlo si è scelto un terreno di 7 ettari entro i confini di un piccolo villaggio del Wisconsin, tra Milwaukee e Chicago, dove invece hanno sede il museo e la biblioteca.
La griglia strutturale dell’edificio è di 36 piedi (10,97 metri). Su di essa poggiano capriate longitudinali lunghe 119 metri che reggono la copertura.

L’architettura è caratterizzata da un grande spazio espositivo all’aperto, che precede l’ingresso ed è protetto da una copertura leggera sorretta da pilastri in acciaio.
La forma, che si ispira a quella dei mezzi da sbarco impiegati nella Seconda Guerra Mondiale, e il colore rosso vivo dell’acciaio a vista della intera struttura sono di forte impatto visivo nel paesaggio delle terre umide circostanti.

Insieme allo studio Jahn hanno lavorato al progetto, avviato nel 2020 e concluso a maggio, i canadesi di O2 Design per il paesaggio, Wsp per i calcoli strutturali, Cosentini per gli impianti e la protezione al fuoco, Terra Engineering per l’ingegneria civile, Reed Burkett Lighting per il progetto illuminotecnico, Threshold Acoustics per l’acustica, Cyclone Energy Group per gli aspetti energetici (un parco fotovoltaico da 50.561 kWh fornisce tutta l’energia elettrica necessaria per il funzionamento del centro.
General contractor Pepper-Riley Construction.

Jahn
Fondata 60 anni fa a Chicago da Helmut Jahn (1940-2021), la società di progettazione Jahn opera a livello internazionale nei settori commerciale, residenziale, governativo e delle infrastrutture di trasporto.
Oggi guidata dal presidente Evan Jahn e dagli amministratori delegati Philip Castillo, Steven Cook e Scott Seyer, Jahn risponde con competenza interdisciplinare e esperienza alle richieste di identità architettoniche distintive che riceve dai clienti. Tra le opere realizzate, il 50 West Street a Manhattan, la Joe and Rika Mansueto Library dell’Università di Chicago, il terminal dell’aeroporto Suvarnabhumi a Bangkok, la sede centrale della Bayer a Leverkusen, le Veer Towers a Las Vegas e il Sony Center a Berlino.



