In Finlandia un rifugio con sauna sul lago
In Finlandia un rifugio con sauna sul lago
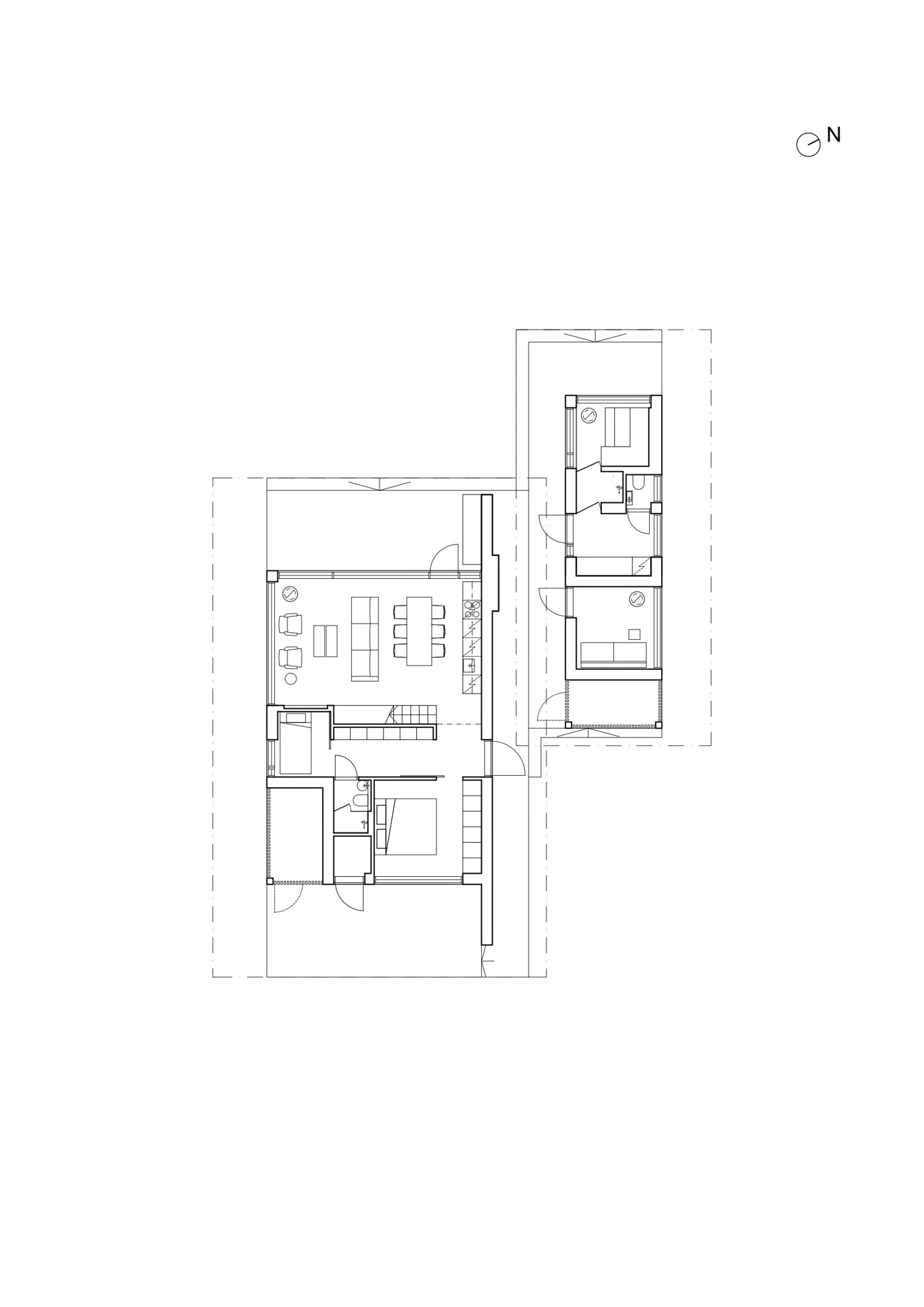
Lo studio Saukkonen + Partners ha ideato una casa di vacanza su un’isola remota della Finlandia lacustre. Il rifugio è stato progettato attraverso due distinti edifici collegati tra loro dalla sovrapposizione delle falde del tetto: il cottage adibito ad abitazione e una struttura più piccola dedicata alla sauna.

Lo studio di Helsinki fondato nel 2008 da Teemu Saukkonen si è occupato della progettazione architettonica e degli interni degli edifici, nonché del design di un piccolo ponte privato che conduce alla proprietà.

Il progetto si è basato sul rispetto della natura circostante: l’obiettivo è stato da subito quello di inserire gli edifici nel paesaggio nel modo più naturale possibile, pensati per adattarsi al mutare delle stagioni e della luce.

Nel dettaglio, sfruttando efficacemente i regolamenti e i conseguenti permessi di costruire, è stata realizzata una struttura pratica e il più possibile esente da manutenzione. Dal punto di vista tecnico, gli edifici sono stati progettati per essere ecologici e a basso consumo energetico.
I materiali e la combinazione di colori sono stati scelti per armonizzarsi con la natura e per essere il più possibile durevoli.

Saukkonen + Partners

Basato a Helsinki, lo studio è stato fondato nel 2008 da Teemu Saukkonen (nella foto) dopo la laurea all’ University of Art and Design Helsinki. Da allora lo studio ha progettato numerosi spazi di qualità e lontani dalle mode per clienti pubblici e privati.
Lo studio lavora alle diverse scale, dagli edifici commerciali e per uffici alle abitazioni private indipendenti agli appartamenti. Saukkonen + Partners opera nella convinzione che l’architettura abbia sempre due genitori, il progettista e il committente, e che i risultati migliori si ottengono quando quest’ultimo apprezza e condivide il gusto per la qualità, lo stile e la cura dei dettagli del progetto.