Kuopio Museum, l’addizione e il restauro di Architects Davidsson Tarkela
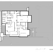
A Kuopio la nuova estensione progettata dallo studio finlandese Architects Davidsson Tarkela collega funzionalmente e programmaticamente l’esistente museo di storia, il museo di storia naturale e la biblioteca.
Il progetto è il risultato della riflessione compiuta da Aki Davidsson e Jaana Tarkela sui temi dell’inserimento nel paesaggio urbano, della conservazione e della funzionalità dell’edificio.

Progettato da J. V. Strömberg, il museo di Kuopio venne completato nel 1907. Oltre all’ampliamento, lo scopo della attuale ristrutturazione è stato quello di riportare il museo al suo carattere originale smantellando le estensioni compiute negli anni Sessanta.
Per esempio, sono state accuratamente restaurate le finestre di legno originali dell’edificio storico.

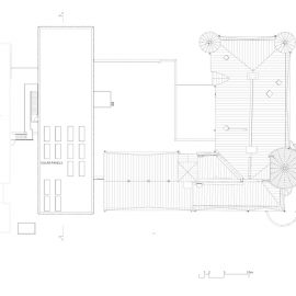
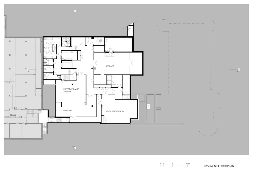
Il telaio strutturale dell’estensione e i pavimenti degli spazi espositivi sono tutti realizzati in calcestruzzo gettato in opera, trattato a vista negli interni.
Nel paesaggio urbano, l’estensione si presenta come un pezzo indipendente di architettura in un blocco storicamente stratificato. Il nuovo blocco espositivo sorge tra l’architettura sontuosa dell’inizio del Ventesimo secolo e l’architettura urbana, rigida e disciplinata, degli anni Sessanta.
Le facciate bianche e reticolari dell’edificio espositivo, che si librano sul pavimento in vetro dell’ingresso, conferiscono una forte impronta contemporanea e creano una sensazione di leggerezza.

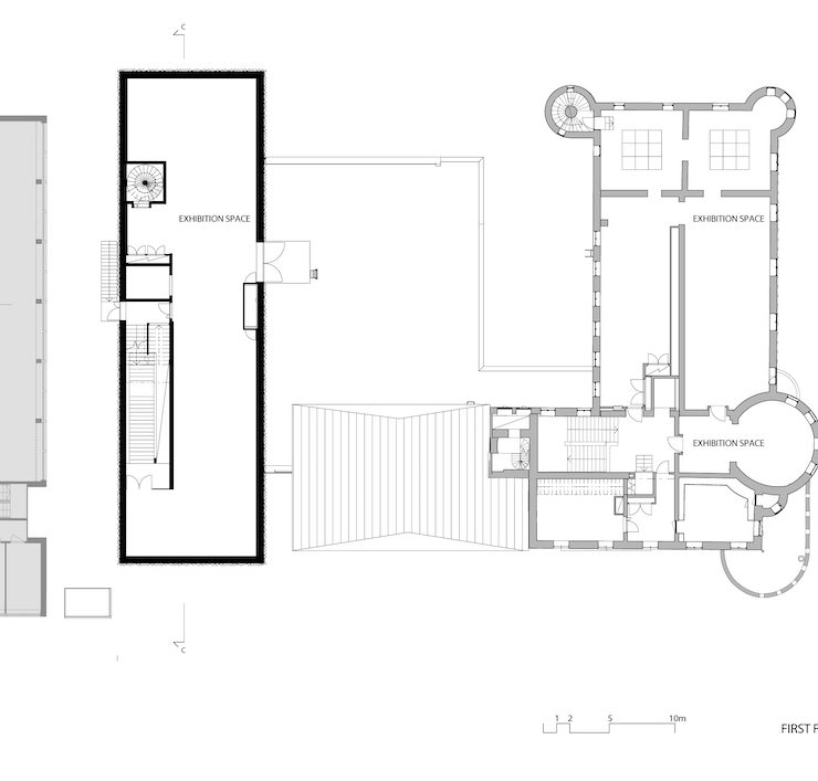
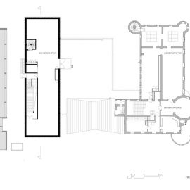
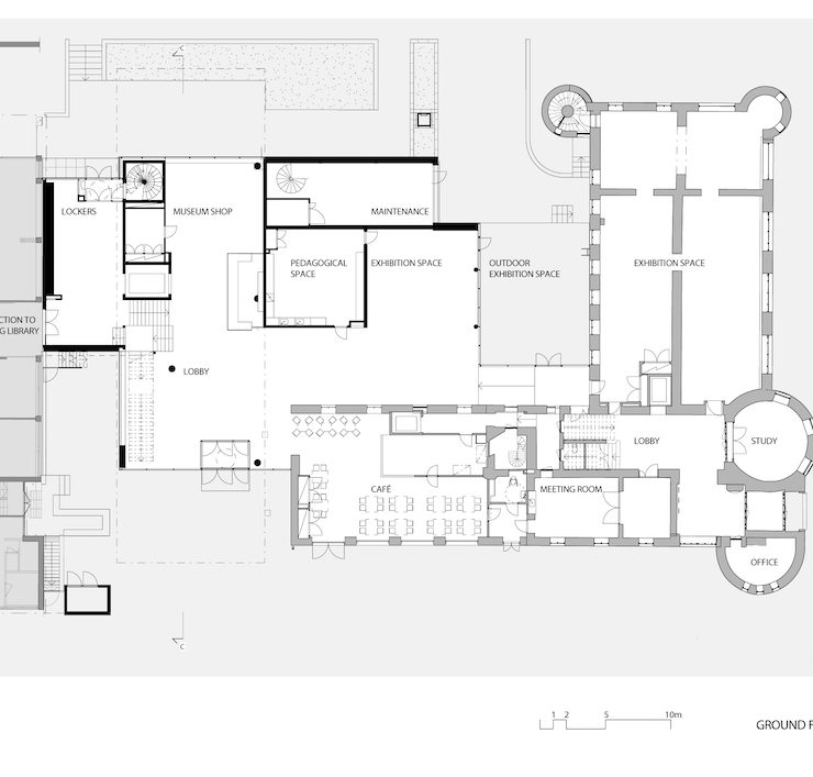
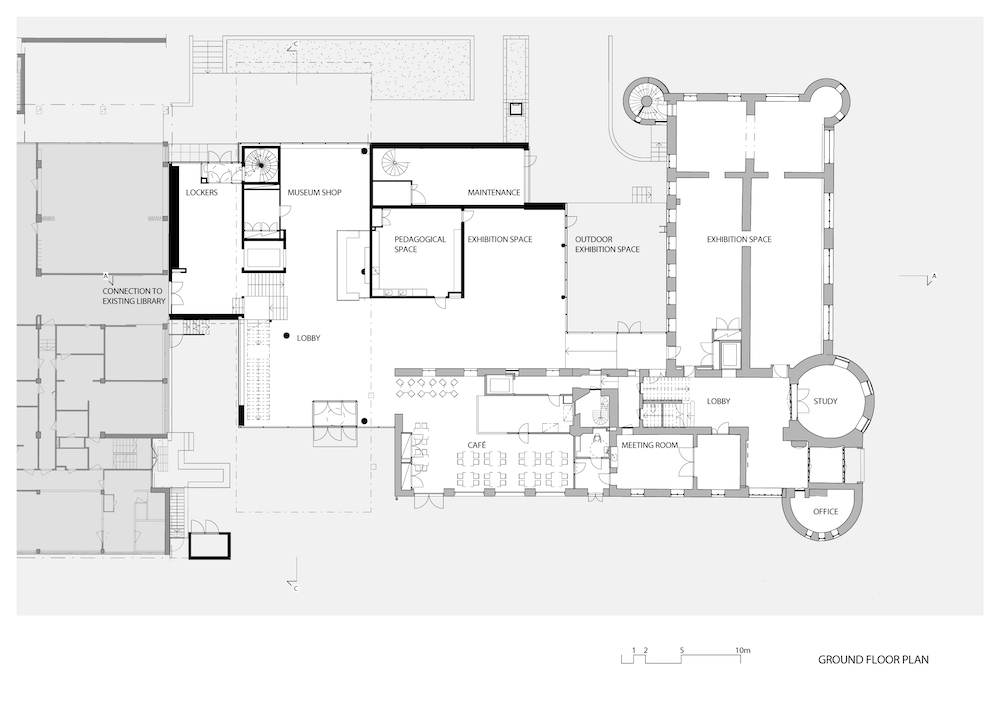
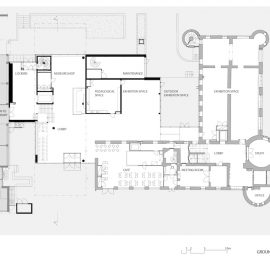
L’ingresso di nuova costruzione si collega agli spazi espositivi principali del museo originale, all’adiacente edificio della biblioteca (progetto del 1967 di Matti Hakala) e a un nuovo spazio per mostre temporanee. L’aggiunta rimuove il confine esistente tra il museo e la biblioteca.
In connessione con l’atrio, sono stati aggiunti elementi di servizio come lo shop, spazi educativi e una caffetteria sul sito di una precedente sala attrezzi di una stazione dei pompieri.
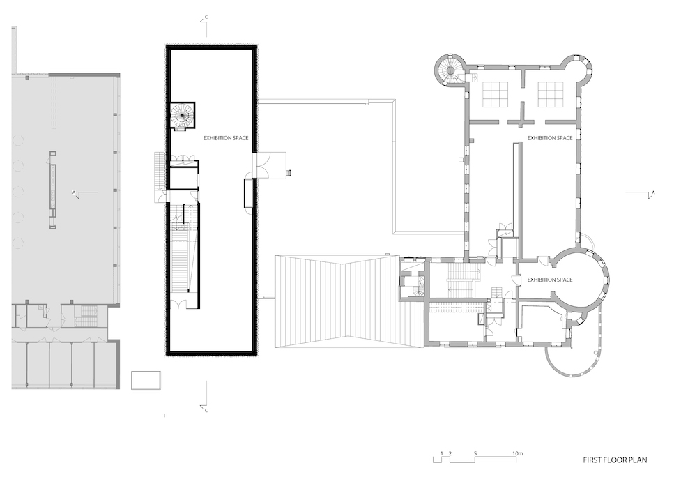
Lo spazio espositivo temporaneo, situato nell’estensione immediatamente sopra l’ingresso, può essere separato dagli altri ambienti secondo necessità.
