Sulle colline aretine, Villa N, una residenza non convenzionale è definita da piani ortogonali e spazi multilivello organizzati, funzionalmente e visivamente, intorno a una corte centrale.
Il progetto degli architetti Alessandro e Leonardo Matassoni per questa residenza monofamiliare sulle colline di Bucine, in provincia di Arezzo, si basa sull’assunto che la ricchezza dell’architettura dipenda dalle relazioni tra gli spazi e dalla loro esperienza dinamica. Di conseguenza, l’unità abitativa è stata organizzata attorno a un patio centrale, che diventa il fulcro funzionale e visivo della vita domestica. Questa logica compositiva consente una certa reciprocità tra i vari ambienti diurni creando scorci e percorsi inattesi intorno al nucleo-cavedio.
![]() |
![]() |
![]() |
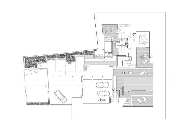
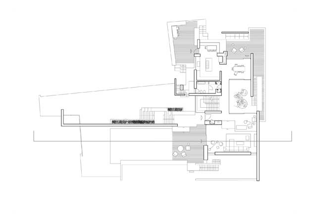
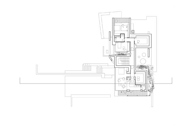
| Piante dei livelli inferiore, intermedio e superiore ©Architettura Matassoni |
La zona cucina-pranzo e lo spazio living con le aree necessarie alla circolazione sono stati messi in contatto diretto con l’esterno ricorrendo a una notevole permeabilità visiva, filtrata solo parzialmente dalla massa fogliare delle canne di bambù piantate al centro del patio, generando un tutt’uno privo di destinazioni funzionali eccessivamente rigide.
![]() |
| Il solarium sul quale si apre la piscina coperta foto©Architettura Matassoni |
![]() |
| Il patio centrale foto©Architettura Matassoni |
La funzione baricentrica del cortile è in parte contraddetta dalle aperture perimetrali enfatizzate dalla proiezione centrifuga di alcuni elementi architettonici, spinti fino ai limiti estremi dell’area disponibile, di superficie molto limitata rispetto al volume edificabile consentito.
![]() |
![]() |
| foto©Architettura Matassoni |
Gli architetti hanno lavorato sulla consistenza e sulla massa del costruito destrutturandola gradatamente e cercando di raggiungere un’architettura che potesse slanciarsi verso l’esterno, con elementi via via più leggeri a cui sono stati affidati importanti ruoli funzionali – come il setto che segna l’asse dell’ingresso principale diventando una lunga trave sospesa in corrispondenza dell’accesso pedonale su strada.
La zona notte al primo piano è contraddistinta da una disposizione più privata e una connotazione “atmosferica” dovuta alle variazioni della luce naturale che filtra attraverso tagli lineari ricavati in copertura.
![]() |
| Vista ovest della villa foto©Architettura Matassoni |
In generale, il linguaggio espressivo di questa architettura è stato condizionato fin dalla fase progettuale dalla predilezione della committenza per angoli retti e superfici piane, che ha spinto i progettisti a cercare di superare la staticità connaturata a questa impostazione iniziale attraverso la disarticolazione strategica dei volumi, ottenuta mediante l’utilizzo di masse sospese e piani slittati gli uni rispetto agli altri.
![]() |
![]() |
| foto©Architettura Matassoni |
In fase di costruzione, altre considerazioni della stessa natura hanno spinto verso l’adozione di un effetto total white e una progressiva semplificazione dei materiali utilizzati: semplice intonaco per tutte le superfici verticali, con l’eccezione di alcuni setti rivestiti con pannelli metallici – pareti ventilate realizzate con pannelli laminati di alluminio – e travertino abbinato a superfici flottanti in legno di accoya per le superfici orizzontali esterne. Anche dal punto di vista energetico, le soluzioni di carattere tecnologico, come impianti solari e radianti, sono state ridotte al minimo a vantaggio di sistemi passivi e low tech che garantiscono il controllo del microclima interno attraverso i flussi naturali d’aria fresca provenienti dalle zone verdi esterne.
![]() |
| Cancello e corte carrabile foto©Archietttura Matassoni |










