Nominato per il Mies Van Der Rohe Award 2015, il teatro Shakespeariano di Danzica progettato dall’architetto Renato Rizzi rilegge in chiave tecnologica l’impianto originale costruito agli inizi del XVII secolo ed è il primo al mondo con tetto apribile a libro.
Vincitore di un concorso internazionale indetto nel 2004, lo stesso anno in cui la Polonia entra a far parte dell’Unione Europea, il progetto dell’architetto Renato Rizzi condensa due presupposti fondamentali, il primo di natura storica, il secondo politico-culturale. Il nuovo teatro di Danzica infatti è stato ideato a partire dalle tracce archeologiche dell’impianto ligneo seicentesco rinvenute in situ e intende rappresentare un punto di svolta simbolico nel panorama urbano e culturale della città baltica.
![]() |
![]() |
Il teatro con le “ali” del tetto chiuse e, a destra, aperte visto dalla torre del municipio di Danzica (foto ©Matteo Piazza)
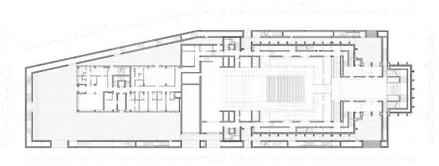
Il complesso si articola formalmente e funzionalmente in tre parti principali: un sistema perimetrale di percorsi pubblici, iI teatro vero e proprio e l’area amministrativa. L’insieme dei camminamenti che cinge l’impianto teatrale eleva l’orizzonte urbano a una quota di +6 metri rispetto al piano stradale e offre un nuovo punto di vista sulla città storica. Dal punto di vista funzionale, i parapetti dei percorsi assicurano le vie d’uscita di sicurezza della sala teatrale e i collegamenti pedonali con tutti i livelli del complesso, compreso il basamento interrato a quota – 4,00 metri.

Pianta del livello +3.20 m.
La sagoma dell’edificio è caratterizzata da tre elementi: i volumi, il tetto apribile, le nervature murarie. Dal profilo del complesso emergono due ambiti distinti, il primo relativo alla sala teatrale dall’impianto elisabettiano che raggiunge quota +12 metri, il secondo corrispondente alla torre scenica del teatro all’italiana dalla quale si può osservare anche la cavea interna attraverso il tetto apribile. Rivestito esternamente in rame e definito all’interno da una griglia romboidale, questo elemento altamente tecnologico è stato concepito per assumere una valenza al contempo funzionale e simbolica.

Disegni di sezione trasversale del teatro con la configurazione italiana (a sinistra) ed elisabettiana (a destra)

Vista interna dell´auditorium con i tre livelli di palchi lignei e l´ala del tetto aperta (foto ©Matteo Piazza)
Si tratta di una copertura formata da due grandi “ali” in grado di ruotare di 90° grazie a un sistema a cerniera posto sul lato più lungo del tetto e amplificando verso l’alto il volume dell’auditorium. Una volta aperti, i piani mobili raggiungono una quota di +24 metri concludendo la progressione verticale dei diversi livelli dell’edificio posti rispettivamente a quota 6, 12, 18 e 24 metri. Infine, le nervature murarie esterne mostrano la progressione ritmica della struttura modulare interna del teatro e fungono da contrafforte alle ali di copertura che, una volta aperte, scaricano sulle murature sottostanti la pressione esercitata dai venti.

Modelli del teatro.


Il podio del palcoscenico italiano con, in primo piano, il cosidetto Tiring House, elemento fondamentale del teatro Elisabettiano (foto ©Matteo Piazza)
In pianta, il complesso assume la forma di un diapason con l’asse maggiore disposto secondo l’orientamento est-ovest. La posizione baricentrica della torre scenica separa trasversalmente l’ambito teatrale da quello amministrativo. All’interno del perimetro della pianta, profondo 3,60 metri, sono stati collocati tutti i camminamenti orizzontali e verticali della sala teatrale, ambito autonomo e separato dal sistema dei bordi pedonali esterni.


L´edificio amministrativo visto dal versante nord del complesso teatrale che è percorso in copertura da una serie di camminamenti pubblici (foto ©Matteo Piazza)
L’ingresso è posto a quota -1.20 metri. Alla gravità e alla compattezza dell’involucro murario esterno in mattoni scuri è contrapposta la leggerezza materica e la luminosità del legno chiaro con cui sono stati realizzati la platea del teatro elisabettiano e il volume sospeso sopra il foyer. La platea è stata ricostruita secondo il modello tipologico originario – 2,80×2,80×2,80 metri – emerso dagli scavi archeologici, con una pianta a C che presenta sei moduli sui due lati lunghi e cinque su quello frontale per un totale di 51 moduli capaci di ospitare circa 600 spettatori. La struttura portante in acciaio è rivestita da colonne lignee che definiscono il pattern modulare della cavea. Per rispondere alle diverse configurazioni e necessità teatrali, i due palcoscenici di tipo elisabettiano (circondati dal pubblico su tre lati) e italiano (in posizione arretrata rispetto alla platea) sono regolati da movimentazioni meccaniche poste nel basamento.
L’area amministrativa accoglie invece tutte le funzioni di supporto al teatro – uffici, camerini, sala prove, ristorante, spazi di sorveglianza – mentre il livello interrato è destinato a ospitare un’area museale. Il volume a due piani è coronato da un tetto a terrazza, posto alla stessa quota dei camminamenti esterni, che diventa piazza pubblica e palco all’aperto definito dalla torre scenica.
![]() |
![]() |
Vista dal basso del tetto dell´auditorium chiuso e, a destra, aperto (foto ©Matteo Piazza)

Disegni di dettagli strutturali del tetto apribile.




