Lo spirito del luogo in una casa nella campagna intorno a Gent
Lo spirito del luogo in una casa nella campagna intorno a Gent
La villa disegnata da Oyo Architects per una famiglia numerosa nei dintorni di Gent è il risultato della sostituzione di una costruzione rurale abbandonata e dal recupero dei mattoni provenienti dalla demolizione, impiegati per costruire un secondo livello che conserva, reinterpretandolo, lo spirito del luogo.

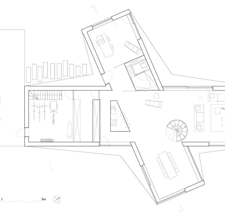
L’edificio è definito da un’impronta a X i cui numerosi spigoli danno luogo a punti di vista differenti sul paesaggio e nello stesso tempo a piccole corti esterne usate dai tre figli della coppia per giocare all’aperto.

Il piano terra è aperto, caratterizzato da ampie vetrate e costruito in calcestruzzo faccia-a-vista, ingentilito da una scala scultorea in legno che aggiunge calore e carattere all’ambiente.

Poggiato su questo basamento in calcestruzzo, il secondo livello, il cui involucro è costruito con i mattoni recuperati dalla demolizione, riprende la semplice forma rettangolare del preesistente fienile e accoglie le camere dei bambini con un layout ludico che i ragazzi stessi possono facilmente riconfigurare secondo i propri desideri. La zona notte dei genitori, con un bagno en-suite e viste privilegiate sul paesaggio circostante, è collocata sull’altro lato dello sbarco scala per garantire tranquillità.
Caratterizzano il progetto l’attenzione ai dettagli, l’impiego responsabile di pochi materiali – cemento a vista, legno, mattoni di recupero – l’eliminazione di rivestimenti superflui e la flessibilità del layout degli interni.
Come afferma Xander Denduyver di Oyo Architects, capo-progetto e coordinatore dell’intervento, «le scelte dei materiali creano un interessante contrasto tra industriale e artigianale, rustico e austero».

Crediti
- Località Drongen, Belgio
- Progetto architettonico Oyo Architects
- Capo progetto Xander Denduyver
- Design team Xander Denduyver, Bea Sierra, Koen Maertens, Ana Correa, Luca Morosetti
- Construction manager Immohuys Ingenieros Estructurales, Lime Diseñador
- Paesaggio Buro Bossaert
- Superficie costruita 369 mq
- Cronologia 2017-2020
Oyo Architects

Fondato nel 2011 da Nigel Jooren, Eddy Soete, Veroniek Vanhaecke, Lies Willaert e Ferran Massip, Oyo Architects è uno studio collaborativo con sedi in Belgio (Gent) e Catalogna (Barcellona) e un team multidisciplinare di architetti, designer, urbanisti e architetti di interni.
Progettisti e costruttori, nel proprio lavoro i membri di Oyo ricercano un equilibrio tra la bellezza e il pragmatismo, nella convinzione che una progettazione accurata può ispirare cambiamenti positivi per le persone e per il pianeta. Secondo Oyo un atteggiamento responsabile verso l’ambiente non è solo un obiettivo da raggiungere ma un principio fondamentale da incorporare nell’anima stessa di ogni progetto.