Daniel Joseph Chenin, studio di progettazione statunitense che promuove un approccio all’architettura che autodefinisce integrato e cinematografico, ha completato la residenza Fort 137, che sembra un’oasi fortificata nel deserto della valle di Las Vegas.
Lo studio è stato incaricato di dare vita a un’architettura contemporanea e calda, in armonia con l’aspra bellezza dell’ambiente naturale.
Oltre agli ampi ambienti interni, la costruzione, durata 15 mesi, ha dato priorità alla parte esterna con vista sul paesaggio circostante del Red Rock Canyon e confinante con terreni protetti dal governo.

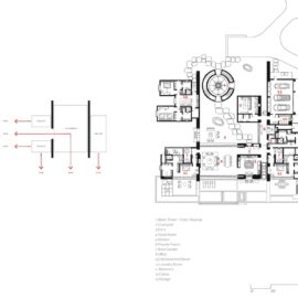
La rotonda d’ingresso di Fort 137 èun’interpretazione moderna delle strutture dei vecchi forti dei primi insediamenti che un tempo punteggiavano questo paesaggio desertico. Alta 8 metri, funge da transizione tra il caldo del deserto e l’interno più fresco, con una forma che contrasta con le linee rette del resto dell’architettura.
All’ingresso della rotonda, il suono dell’acqua che scorre dalla fontana in pietra del livello inferiore trasforma il caldo arido del deserto in un miraggio rinfrescante.
Una scala a chiocciola fornisce l’accesso a una sala sul tetto dotata di un focolare e di ampie viste sul deserto.

«La ricerca di un’architettura che affronta il clima caldo e arido del sud-ovest ci ha riportato ad alcune delle strutture insediative dei pionieri dell’Ottocento. L’idea di una struttura rocciosa simile ai forti progettati dai coloni dell’epoca ha avuto davvero risonanza nel nostro progetto», ha spiegato Chenin.

La transizione dal deserto all’interno della residenza prosegue poi con il cortile ombreggiato e completamente recintato, ideale per cene conviviali e riunioni di famiglia, su uno sfondo che include un masso di 75 tonnellate ritrovato nel sito.
All’interno della proprietà, due muri laterali corrono da nord a sud, fornendo protezione dagli elementi esterni e definendo anche i confini della planimetria.
Nella parte baricentrica si trovano il living, la sala da pranzo, la cucina, lo studio e la sala cinema, mentre gli spazi più intimi, comprese le camere da letto, si trovano sui lati esterni delle pareti.

Gli spazi abitativi di Fort 137 sono così disposti in tre volumi complementari, ciascuno progettato per massimizzare il comfort e l’efficienza energetica. All’interno di una struttura in acciaio e pareti in pietra, ampie pareti scorrevoli vetrate offrono viste panoramiche dalle facciate nord e sud.
Gli interni moderni sono incorniciati da pavimenti in travertino, soffitti in stucco e pannelli verticali impiallacciati in legno ricostituito, che forniscono un caldo abbraccio agli arredi curati e alle selezioni artistiche di Daniel Joseph Chenin.
Numerosi i dettagli in pietra, legno e ottone, comprese le maniglie delle porte.

Fort 137 è stato costruito con un limitato impatto ambientale: sono state adottate numerose strategie di progettazione per compensare l’impronta di carbonio della casa e ridurre la sua dipendenza dalla rete, tra cui un’infrastruttura di pannelli fotovoltaici.
I rivestimenti sono in legno ricostituito derivato dal sottoprodotto e dagli scarti di una segheria, i materiali sono di provenienza locale e le rocce e la terra estratte dal cantiere sono state riutilizzate nella costruzione.
Inoltre, materiali come il travertino sono stati scelti per la loro capacità di invecchiare e acquisire nel tempo una patina simile alla sabbia del deserto, aggiungendo ulteriore colore e consistenza a un ambiente costruito destinato a integrarsi ancora più profondamente nel suo ambiente naturale.
