Torino, piazza della Repubblica. Il vecchio Mercato dell´abbigliamento non c´è più. Al suo posto dal 25 marzo c´è Palatino, un centro commerciale disegnato da Massimiliano Fuksas, scelto alla fine degli anni Novanta, in una gara pubblica a capo di un raggruppamento con l´architetto Carlo Novara, Ai Engineering e Ai Studio. In particolare, Ai Engineering e la consociata Ai Studio si sono occupate delle opere strutturali sotto la responsabilitá dell´ingegner Adriano Venturini, delle opere impiantistiche, curate dall´ingegner Stefano Cremo, del coordinamento per la sicurezza in fase di progettazione ed esecuzione delle opere e della direzione lavori generale.
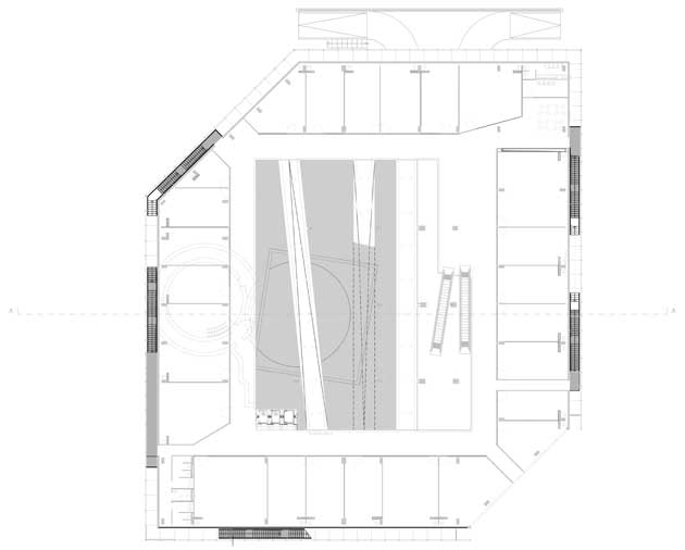
Per il Palatino, un edificio composto da cinque piani di cui due interrati, sono stati adottati i più innovativi sistemi tecnologici di gestione delle differenti attività previste. L´area commerciale è organizzata lungo il perimetro dell´edificio cosí da disegnare una piazza interna nella parte centrale, in corrispondenza di due ghiacciaie del ´600 riportate alla luce e che un tempo consentivano la conservazione del cibo e la produzione di ghiaccio, oggi utilizzate come spazi per l´allestimento di mostre temporanee. Il primo e il secondo piano sono organizzati con superfici commerciali lungo il perimetro, un bar, un blocco servizi per commercianti nell´angolo sud-ovest, un percorso a ballatoio anulare e un sistema di rampe che attraversando il vuoto centrale collegano i diversi piani dell´edificio.
![]() |
| sezione del nuovo centro commerciale. Si nota il volume delle antiche ghiacciaie, conservate e incorporate nel progetto |
![]() |
| La corte centrale al piano terra e le passerelle in metallo che collegano i vari piani |
![]() |
| Pianta del piano terra |
![]() |
| Lo spazio aperto sulle ghiacciaie di altra epoca |
![]() |
| pompe geotermiche per l´impianto di climatizzazione del complesso |
![]() |
| Sporto della copertura |
![]() |
|
|
| L´edificio inserito nel contesto urbano torinese |
Segno distintivo dell´intervento dal punto di vista strutturale è la corte centrale al piano terra, intercalata da 11 pilastri prismatici pluripiano attrezzati con mensole metalliche incastrate, destinate a sostenere il carico di tre passerelle metalliche che collegano i vari piani. I medesimi pilastri sostengono in sommità la struttura di copertura, costituita da un graticcio di travature metalliche articolate nello spazio a formare un percorso continuo di falde inclinate. La copertura è enfatizzata da un rivestimento in zinco e ripropone il disegno dei percorsi che hanno generato lo spazio sottostante, permettendo la penetrazione della luce naturale attraverso piani vetrati verticali e orizzontali. Una porzione di edificio sovrasta le cupole ipogee appoggiando indirettamente su un impalcato costituito da travi in C.a.p. e soletta collaborante.
Sotto l´aspetto energetico e impiantistico, l´intervento è caratterizzato da un sistema geotermico a ciclo aperto. L´impianto del tipo ad anello liquido e volano termico é in grado di fornire l´energia termica e frigorifera per il fabbricato utilizzando come fonte primaria di energia l´acqua di prima falda e come volano termico la vasca di accumulo dell´acqua antincendio. Ogni singola unità commerciale è climatizzata con una pompa di calore ad elevata efficienza, collegata all´anello liquido. Questo tipo di impianto consente di evitare l´impiego di generatori di calore nel fabbricato, con l´azzeramento dell´inquinamento atmosferico e l´eliminazione dei rischi connessi all´utilizzo del combustibile. Lo scambio geotermico consente un´elevata efficienza energetica e un abbattimento dei costi per il riscaldamento e il raffrescamento dei locali. La tipologia d´impianto semplifica l´installazione degli impianti in cantiere durante le fasi di costruzione (eliminazione della centrale termica e frigorifera), mentre le pompe di calore installate nei singoli ambienti sono macchine di provata affidabilità, simili ai normali condizionatori autonomi, completamente assemblate e collaudate in fabbrica.
Le zone comuni, e in particolare la piazza coperta, beneficiano dello stesso tipo di impianto grazie a pannelli radianti alimentati sia in estate sia in inverno dall´acqua fredda o calda prodotta da pompe di calore di tipo centralizzato. I negozi sono inoltre dotati di estrazione d´aria a parete dedicata.







