Holy Rosary Catholic Church Complex
La piccola comunità di St. Amant in Louisiana necessitava di un progetto per il nuovo complesso che avrebbe ospitato le funzioni religiose. Alle ragioni del culto in America si uniscono spesso quelle educative e di semplice aggregazione, affinché la solitudine imposta dalle grandi distanze sia ridotta dall´avvicinamento delle persone nello svolgimento delle attività di interesse collettivo.

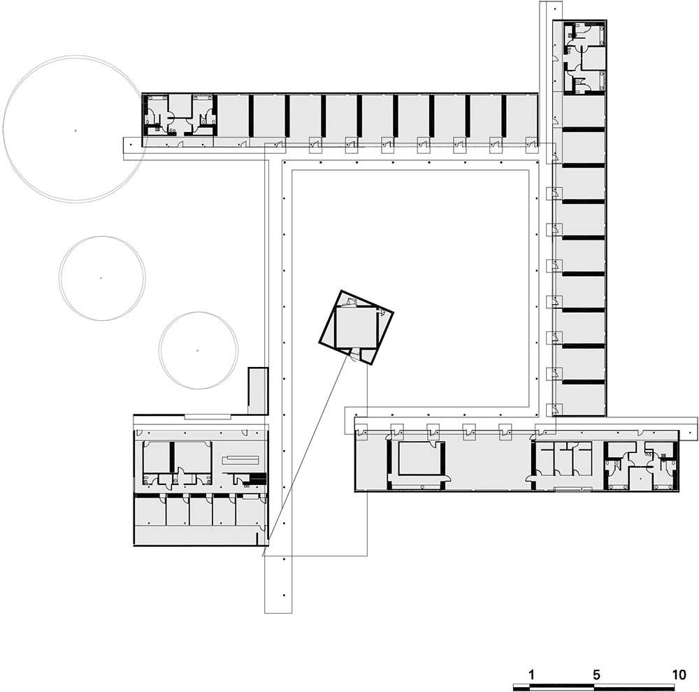
La nuova struttura religiosa progettata da Trahan Architects ha previsto quindi sia una sede per le meditazioni spirituali sia un centro di educazione, realizzando infine un luogo di aggregazione con precisi riferimenti compositivi. La piccola cappella, fulcro dell´intero complesso, presenta sulla sommità lucernari appuntiti che, da lontano, impreziosiscono il cubo in cemento di cui è costituita come una corona.
Attorno a essa e allo spazio di rispetto adibito a giardino per assemblee all´aperto, é eretto l´edificio che ospita aule per la didattica e l´educazione religiosa e uffici amministrativi: come un chiostro, verso l´interno é caratterizzato dal portico di deambulazione, mentre verso l´esterno il muro di calcestruzzo si interrompe solo in corrispondenza dell´ingresso, segnato proprio dall´inizio del portico.
All’ingresso, un marciapiede di forma trapezoidale guida direttamente alla porta della cappella realizzata con una spessa lastra di vetro, unica apertura che interrompe il compatto cubo in calcestruzzo. I suoi muri hanno una sezione triangolare, poiché ricavati da un offset della pianta con certo angolo di rotazione.
All´interno di queste pareti in forte spessore sono stati disegnati cunicoli che dai lucernari di copertura giungono fino all´interno della cappella per illuminare l´ambiente a pianta quadrata, il cui orientamento é dato dalla grande Croce posta sul lato Est.
L´edificio riservato alle attività temporali presenta invece muri interrotti da vetrate a tutta altezza e finestre con tagli, grazie ai quali la luce si poggia severa sul calcestruzzo levigato, schiarendone il colore, definendo e qualificando i contorni degli ambienti, resi indistinti dall´uso dello stesso materiale da costruzione. Spazio di filtro tra le due destinazioni, il portico svetta sull´edificio con una copertura disegnata per alleggerire anche visivamente il peso che grava sulle colonne sottili.
L´impiego massiccio del calcestruzzo nelle parti strutturali, nella pavimentazione, nella copertura e anche nelle grandi mensole che inglobano i lavamani delle aree comuni, va a sfruttare una risorsa locale a costo moderato e diventa ulteriore scelta espressiva distintiva all´interno dell´area urbana.
| Progetto | Trahan Architects, Baton Rouge (USA) |
| Strutture | Schrenk & Peterson Consulting Engineers |
| Impianti | Apex Engineering Corporation |
| Ubicazione | St. Amant, Louisiana (USA) |
| Superficie totale | 4.538 mq |
| Materiali strutturali | Calcestruzzo e vetro strutturale |
| Ditte costruttrici | Sorrento Lumber Co. Inc., Architectural Glass & Metal Inc. |
| Forniture | Cutler Hammer, Benchworks, Werco |
