Un cilindro di cedro sospeso a 2.800 metri di quota
Un cilindro di cedro sospeso a 2.800 metri di quota
Un cilindro di cedro sospeso a 2.800 metri di quota
Un cilindro di cedro sospeso a 2.800 metri di quota
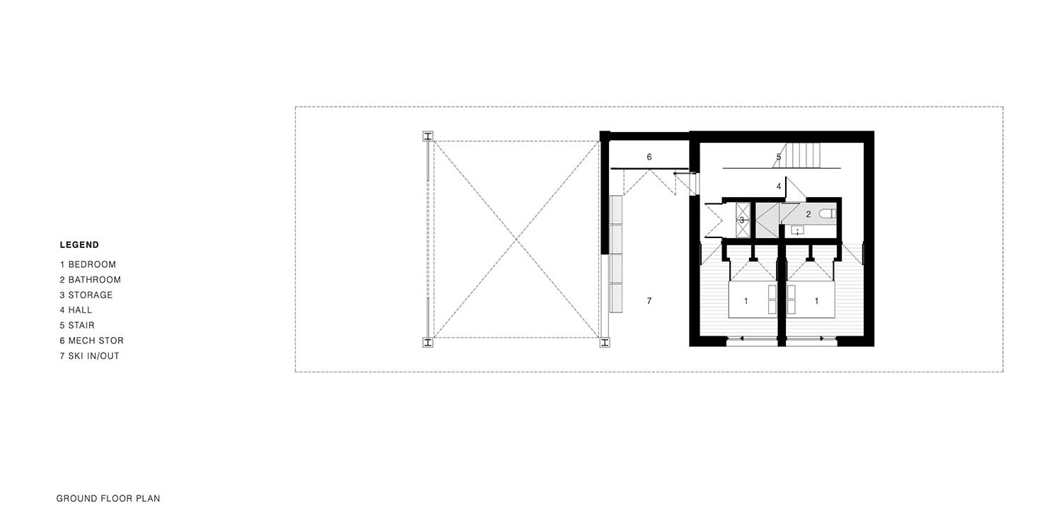
Nell’Intermountain Region degli Stati Uniti cadono fino a 12 metri di neve all’anno e la temperatura scende a -30. Condizioni estreme alle quali si aggiunge la forte pendenza (30%) del lotto dove, anziché un rifugio per alpinisti esperti, lo studio di Halifax (Canada) MacKay-Lyons Sweetapple Architects ha costruito questa abitazione di 400 metri quadrati oltre al garage e agli ambienti di servizio che non rinuncia al tipo della villa singola nord-americana, con tanto di corte di ingresso carrabile che qui si è tradotta in una passerella grigliata sul lato nord che scende verso il garage e l’ingresso principale.
L’orientamento e l’involucro rispondono alle condizioni climatiche con l’esposizione principale a sud e un rivestimento esterno e interno in legno di cedro rosso, mentre la pendenza e gli accumuli di neve sono stati affrontati sospendendo su alte colonne in acciaio il corpo principale della casa, retta al centro da un nucleo in cemento armato.
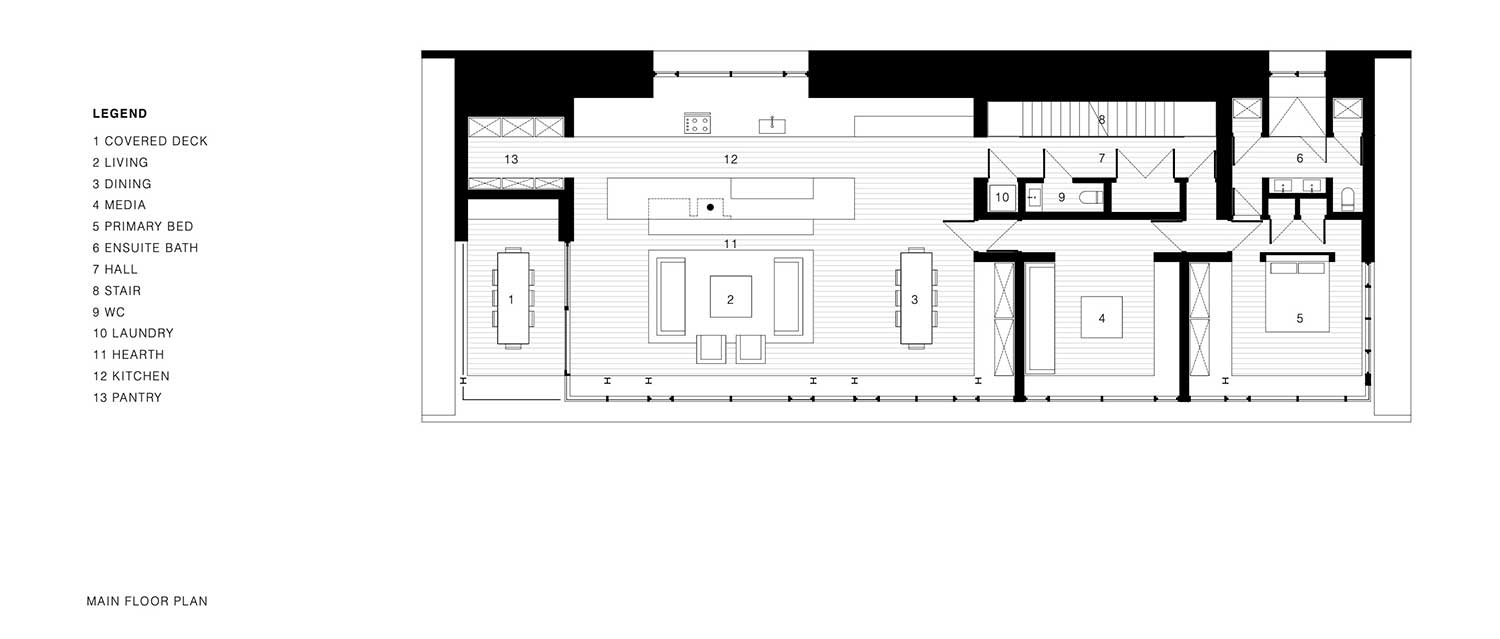
Dall’ingresso una scala – che riceve luce zenitale da un lucernario – attraversa il blocco di servizio, dove depositare gli sci, per scendere verso l’ampia zona giorno, con un grande living esposto a sud.
Lungo le finestre corre una panca di legno lunga 27 metri che incornicia la spettacolare vista a sud e approfitta dell’apporto dei raggi solari, vantaggiosi anche in inverno, quando si riflettono sulla coltre nevosa, per aumentare il comfort interno. Una altrettanto ampia cucina/pranzo lunga 8,5 metri con un focolare in pietra ollare si apre sul living, mentre a ovest un terrazzo coperto nella bella stagione favorisce le conversazioni all’aperto.
All’estremità est sono disposte invece tre camere da letto, e altre due camere sono ricavate nel blocco centrale in cemento armato, anch’esso con finestre che si aprono a sud, al piano inferiore, la sola parte della casa che tocca il suolo.
Tutti i pavimenti della villa sono in frassino chiaro.

Crediti
- Progetto architettonico Mackay-Lyons Sweetapple Architects
- Design Lead Brian Mackay-Lyons
- Project Manager Matthew Bishop
- Project Team Izak Bridgman, Alastair Bird, Isaac Fresia, Ben Fuglevand, Sawa Rostkowska, Diana Carl, Jesse Martyn, Lucas McDowell, Jennifer Esposito
- Progetto strutturale Blackwell Structural Engineers
- Mep Harris Dudley Co; BNA Consulting
- Ingegneria civile Talisman Civil Consultants
- Geotech Intermountain Geoenvironmental Services Inc
- Contractor Edge Builders
- Photography Nic Lehoux
- Sketches Brian Mackay-Lyons
- Artworks Matthew Bishop
MacKay-Lyons Sweetapple Architects
Con sede a Halifax e uffici a Lunenburg, Denver e Portland, MacKay-Lyons Sweetapple Architects, guidato dai soci Brian MacKay-Lyons, Talbot Sweetapple, Melanie Hayne e Shane Andrews, lavora a livello locale e internazionale fornendo servizi completi di architettura, progettazione urbana e interior design.
In 40 anni di lavoro, lo studio ha guadagnato una reputazione internazionale per la qualità dei servizi di progettazione, confermata da oltre 150 premi tra cui il Global Award for Sustainable Architecture nel 2017.
Sia Brian MacKay-Lyons che Talbot Sweetapple sono Fellow del Royal Architectural Institute of Canada. Brian MacKay-Lyons è anche membro della Royal Canadian Academy of Arts. Nel 2001 è stato nominato Honorary international Fellow dell’American Institute of Architects (Hon.int. Faia) e nel 2016 International Fellow dal Royal Institute of British Architects (Int. Friba).
Sia Brian MacKay-Lyons che Talbot Sweetapple hanno affiancato alla professione l’attività accademica, Brian come professore ordinario e membro per 37 anni della facoltà di architettura presso la Dalhousie University, e Talbot, come professore aggiunto dal 1997 e dal 2013 docente con cattedra. Insieme, hanno ricoperto 18 cattedre accademiche e di visiting professor presso importanti università di tutto il mondo.



