Una casa di vetro sulle colline del Biellese
Una casa di vetro sulle colline del Biellese
Una casa di vetro sulle colline del Biellese
Avevamo visto il progetto due anni fa a Palazzo Mora, alla mostra “Time Space Existence” in concomitanza con la 16. Biennale di Architettura di Venezia. Oggi quel progetto di Federico Delrosso – la trasformazione di un piccolo rustico in un edificio completamente trasparente – è stato completato e inaugurato.

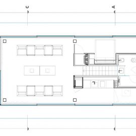
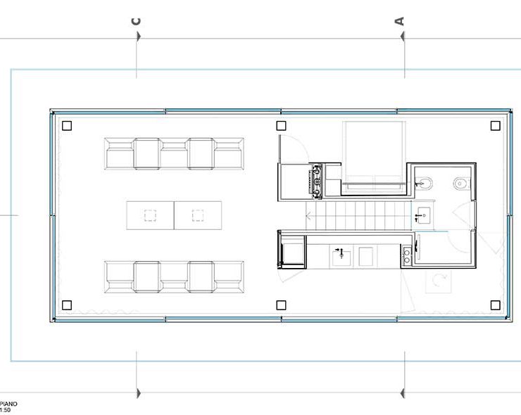
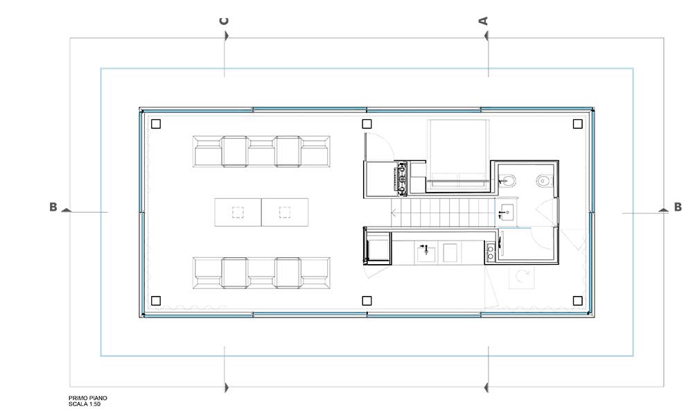
L’edificio, con vista panoramica sulle colline del Biellese, possiede quattro pareti vetrate scorrevoli che, completamente aperte, estendono di 50 metri quadrati la superficie chiusa di 80.
Risultato dell’amicizia professionale tra Delrosso e il committente Alberto Savio, imprenditore tessile della zona, lo spazio potrà assumere diverse funzioni: luogo di riunioni e incontri di lavoro, rifugio intimo per la lettura o lo yoga, foresteria per ospiti occasionali della vicina proprietà padronale.

«In questo progetto la Teca custodisce l’uomo e le sue emozioni. Un punto di vista privilegiato e poetico, una totale immersione nella natura, quasi come se il fruitore fosse sospeso nel vuoto. Contestualmente essa lavora in negativo: lo sguardo è infatti rivolto dall’interno verso l’esterno» spiega Federico Delrosso.
Il rapporto tra passato e presente e tra l’opera e il contesto viene bilanciato senza alterare gli equilibri dimensionali del luogo, esaltandone la valenza ambientale e divenendo punto di riferimento visivo. L’impianto murario rurale diventa il basamento, la connessione con il territorio dal quale nasce il nuovo intervento, leggero e trasparente: una struttura in calcestruzzo che si apre verso il paesaggio con due grandi ali orizzontali e una pelle di vetro completamente apribile che ne racchiude il volume.

L’impianto architettonico, che si sviluppa su due piani e un interrato, dato dal vecchio basamento, nasce con l’intento di favorire i corretti apporti solari, con i grandi sporti dei solai che proteggono dall’irraggiamento solare estivo, lasciando invece entrare i raggi diretti in inverno, quando il sole è basso all’orizzonte.
Oltre al recupero della pietra originale proveniente dal rustico, sono stati impiegati materiali lasciati a grezzo, come il calcestruzzo per struttura e pavimenti e il multistrato di betulla per arredi e rivestimenti.
Le soluzioni architettoniche e strutturali adottate hanno permesso di correggere i ponti termici, tendenzialmente eliminati.
L’impiantistica e gli interventi di isolamento portano l’edificio in classe energetica A4. La realizzazione di un impianto di climatizzazione mono energia in pompa di calore aria/aria abbinato a sistemi radianti a pavimento, e ventilconvettori, il sistema Vmc e un impianto fotovoltaico ad alte prestazioni assicurano un elevato grado di comfort ambientale in tutti i mesi dell’anno e il migliore contenimento dei consumi energetici.

«Quando ho acquistato il piccolo rudere e il terreno in cui ora sorge Teca House, non avevo idea di cosa sarebbe potuto diventare – racconta Alberto Savio. Il confronto con Federico Delrosso, a cui mi lega un sincero rapporto professionale e di amicizia, e la sua visione dell’architettura mi ha persuaso circa l’opportunità che questo luogo mi stava offrendo: poter lasciare un segno che rimanesse al di là del tempo mio e della mia famiglia.
Con questa consapevolezza ho accolto le proposte progettuali. È stata una sfida accompagnare il processo creativo di Federico: dietro ogni dettaglio ci sono disegni, pensieri, soluzioni scartate in favore di ciò che poi si è realizzato. Un approccio corretto, onesto e di buon senso. Un’attenzione assoluta al paesaggio, agli spazi, ai materiali e alle finiture. Un segno diventato un sogno».

Crediti
- Località Biella
- Proprietà Teti Srl
- Destinazione residenziale e spazio eventi
- Progetto architettonico Federico Delrosso Architects
- Progetto del verde Anna Scaravella
- Ingegneria AI Progetti
- Mechanicals Studio Bonomi
- Costruzione Panuccio Costruzioni
Interni
Gli arredi su misura sono progettati da Federico Delrosso
- Mobili e imbottiti Henrytimi
- Cucina e elementi in metal Niva Architectural Elements
- Lighting Davidegroppi
- Rubinetteria Cea Design
Partners
Panuccio Costruzioni, Niva Architectural Elements, Davide Groppi, Cea Design, Sitis, Costa ImpiantiElettrici,HenryTimi,Tecnicem,IdealWork
Federico Delrosso

Federico Delrosso, architetto e designer di origini biellesi, opera a livello internazionale dal 2001 nel suo studio di Milano Federico Delrosso Architects, occupandosi di architettura, interior e product design.
Nell’ambito del design firma importanti collezioni di arredo e illuminazione per brand come Davide Groppi e Henry Timi. La lampada da parete Mima (2007, per Davide Groppi) riceve la segnalazione per il XXI Compasso d’Oro 2008 ed entra a far parte della collezione permanente dell’ADI (Associazione per il Disegno Industriale). La lampada da terra Hashi, progettata per Davide Groppi, è stata selezionata per l’ADI Index 2019 e concorrerà per il Compasso d’Oro 2020. Hashi ha anche vinto il premio Excellence In Lombardia 2019.
Nel 2012 Delrosso entra nella rosa dei finalisti del Best of Year Award, organizzato dalla rivista Interior Design (USA), con il progetto del Ristorante Notime a Montecarlo, analogo riconoscimento ricevuto nel 2016 per la categoria kitchen con la Cucina Trapezio, oltre a numerose altre menzioni legate al settore product.